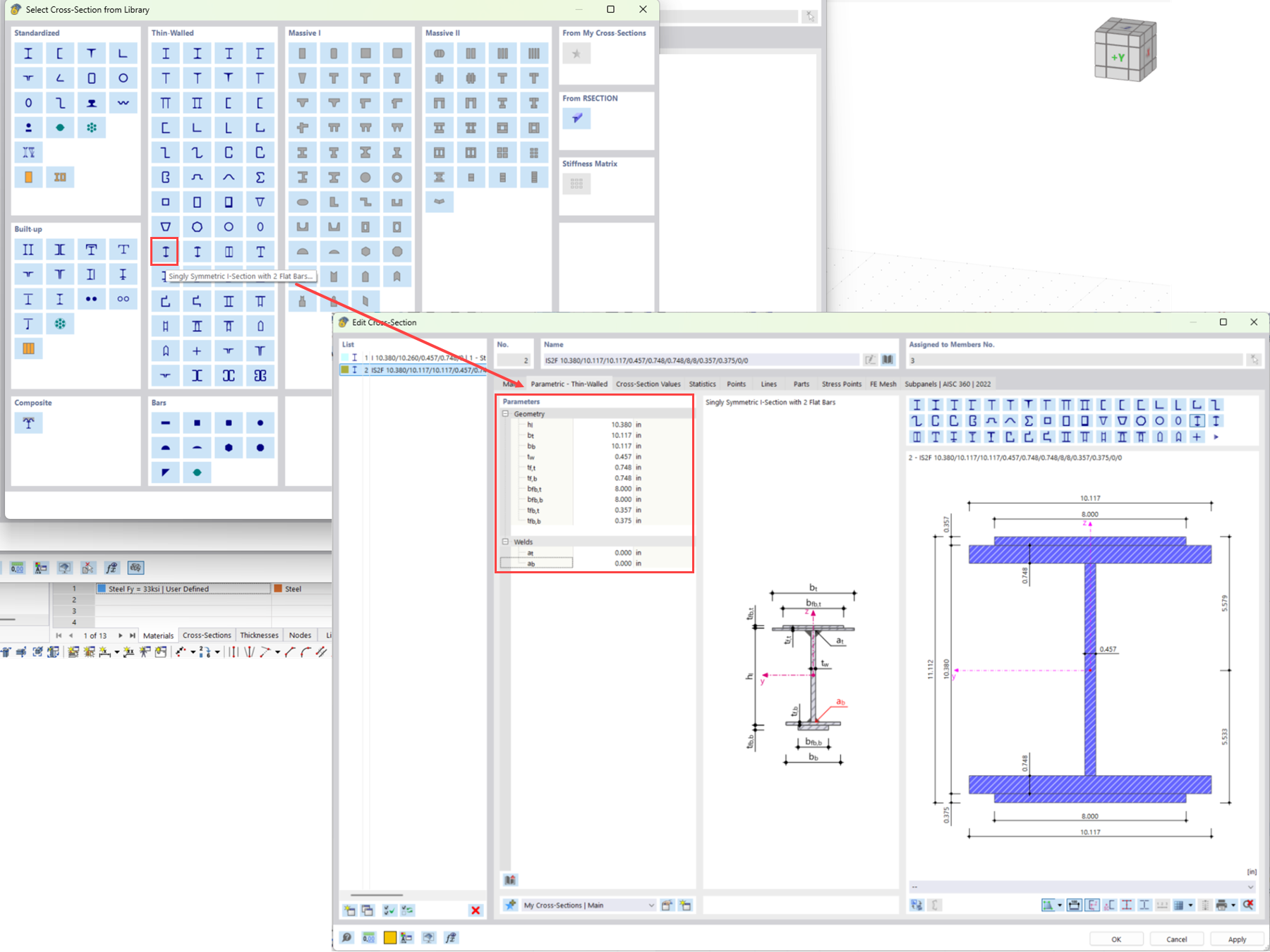
Secção definida pelo utilizador de pilar de W10X66 reforçada
Secção definida pelo utilizador de pilar de W10X66 reforçada
2026-02-02
061259
  • RFEM 6

Secção definida pelo utilizador de pilar reforçado W10X66

Secção definida pelo utilizador de pilar de W10X66 reforçada

  • AISC
  • AISC 360-16
  • Coluna
  • Pilar reforçado
Utilizado em
  • Armadura do pilar existente no RFEM segundo o AISC Design Guide 15
Partilhar