Часто задаваемые вопросы 005629 | Как проанализировать реакции опор в линейных опорах поверхностей? Полезны ли срезы результатов?
Часто задаваемые вопросы 005629 | Как проанализировать реакции опор в линейных опорах поверхностей? Полезны ли срезы результатов?
2024-11-24
054089
  • RFEM 6
  • Расчёт и проектирование конструкций
  • Расчёт по методу конечных элементов

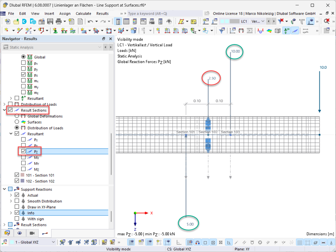
Распределение нагрузок в сечениях 101–103

Часто задаваемые вопросы 005629 | Как проанализировать реакции опор в линейных опорах поверхностей? Полезны ли срезы результатов?

  • Линия опоры
  • Реакция опоры
  • Результирующая
  • Сила опоры
  • Результирующий срез
  • Срез
  • Таблица результатов
  • Плоскостная модель
  • Анализ реакции опоры
  • Перепад поперечной силы
  • Линия опоры
  • Точечная опора
  • Процесс результата
  • Постоянное сглаживание
  • Информационное окно
  • Возможность анализа
  • Стабильное конструктивное сооружение
  • Контроль моделирования
  • Однопольная балка
  • Консоль
  • Труба
  • Поперечное сечение трубы
Поделиться