RF-/JOINTS Steel DSTV中的注释
  • 3D 查看器
  • 3D Viewer | Babylon
  • 虚拟现实
RF-/JOINTS Steel DSTV中的注释
2024-05-30
019084
  • 节点 - 钢结构 | DSTV 8
  • RF-JOINTS Steel | DSTV 5
  • 钢结构
    • 钢结构节点连接
    • Eurocode 3

RF-/JOINTS Steel DSTV中的注释

用于
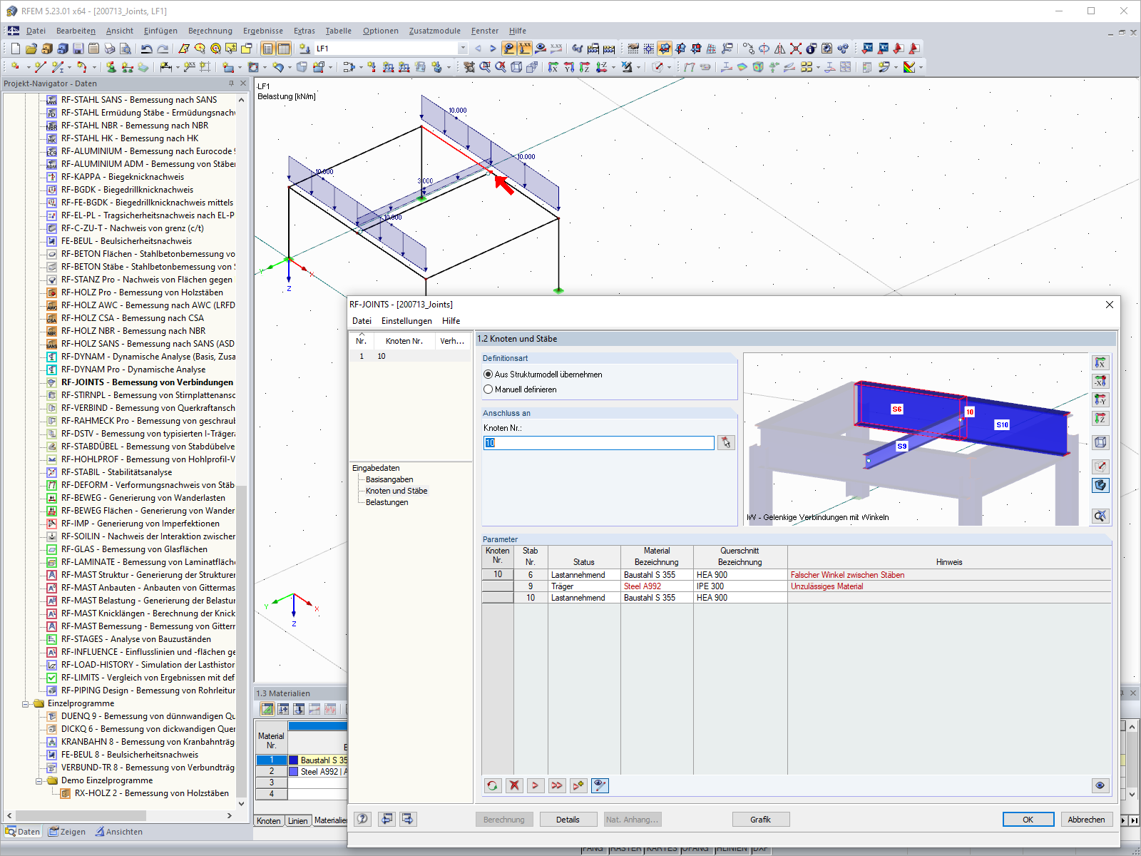
  • RF-/JOINTS Steel - DSTV中的错误信息“错误的几何形状”和“无效的材料”
3D 模型
更多关于 3D 模型
  • T 形梁
详细说明
节点数目: 9
线的数目 12
杆件数目: 2
面的数目: 4
实体数目 0
荷载工况数目 1
荷载组合数目 0
结果组合数目 0
总重量 85,500 t
翘曲区域尺寸 15,000 x 0,000 x 12,000 m
分享