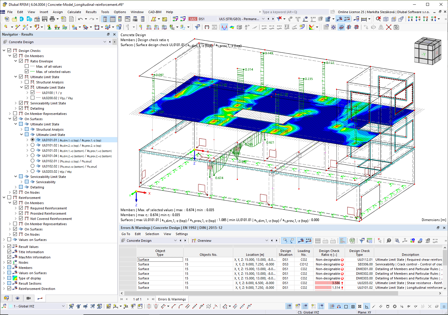
表格和图形中的混凝土设计结果
表格和图形中的混凝土设计结果
2024-03-10
040894
  • RFEM 6

表格和图形中的混凝土设计结果

分享