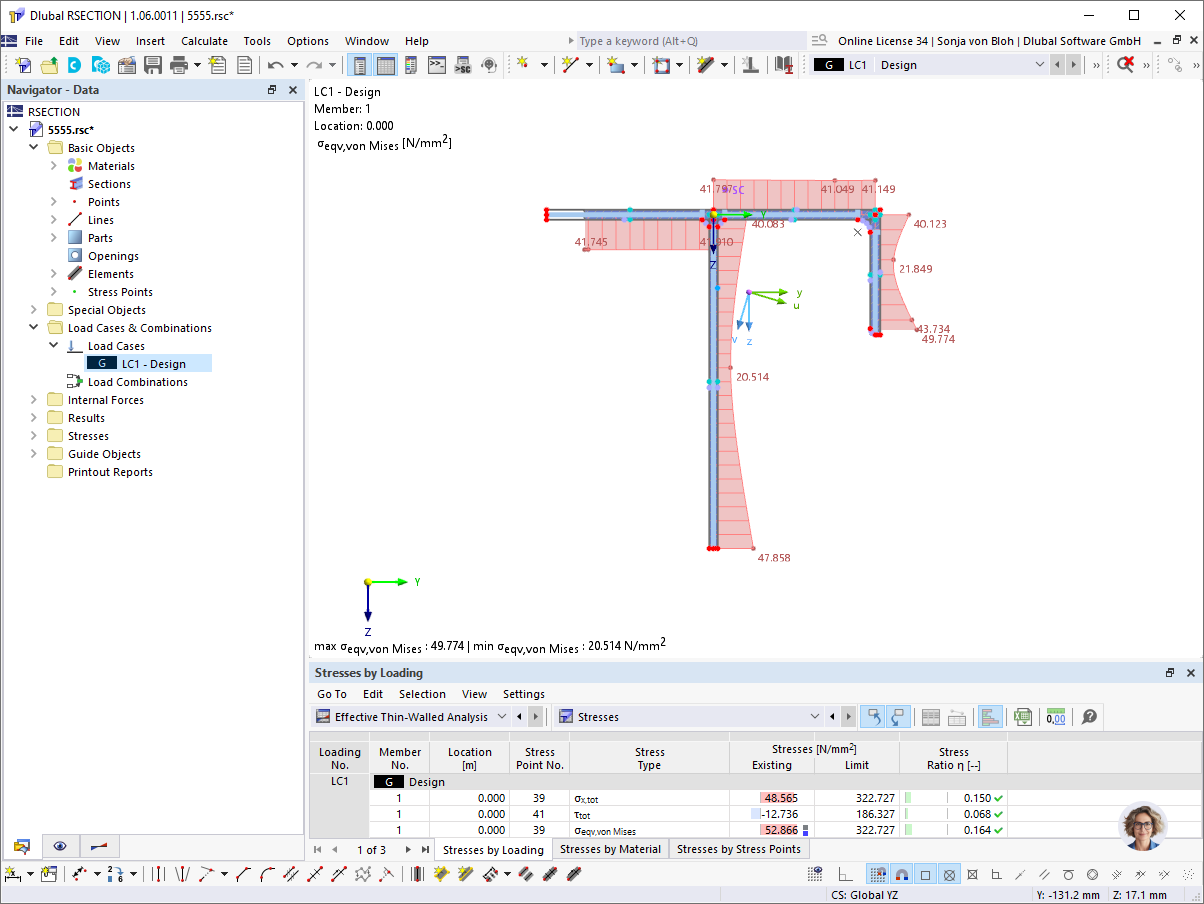
有效截面应力
有效截面应力
2024-06-21
051136
  • RSECTION 1
  • 钢结构
  • 应力分析与计算
    • 稳定性分析
    • Eurocode 3

有效截面应力

分享