界面展示使用Dlubal软件的混凝土设计输入数据
界面展示使用Dlubal软件的混凝土设计输入数据
2024-11-21
054023
  • RFEM 6

混凝土设计:输入数据

界面展示使用Dlubal软件的混凝土设计输入数据

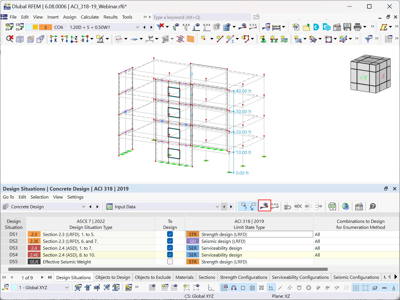
该图像展示了Dlubal软件的一个界面,专注于混凝土设计输入数据。Dlubal软件帮助结构工程师有效管理和分析混凝土设计参数。该特定界面为用户提供输入和调整关键设计数据的能力,这些数据对于进行混凝土结构的全面分析是必要的。通过使用该软件,工程师可以高效解决设计挑战,确保符合相关标准并提高整体结构安全性。其全面的功能支持各种工程任务,简化项目工作流程并优化设计成果。
  • 混凝土设计
  • 结构工程
  • Dlubal 软件
  • 工程软件
  • 土木工程工具
用于
  • RFEM 6 中的混凝土剪力墙设计: 分步指南
分享