结构结果的图形和表格表示
结构结果的图形和表格表示
2024-11-21
054024
  • RFEM 6

结果:图形和表格展示

结构结果的图形和表格表示

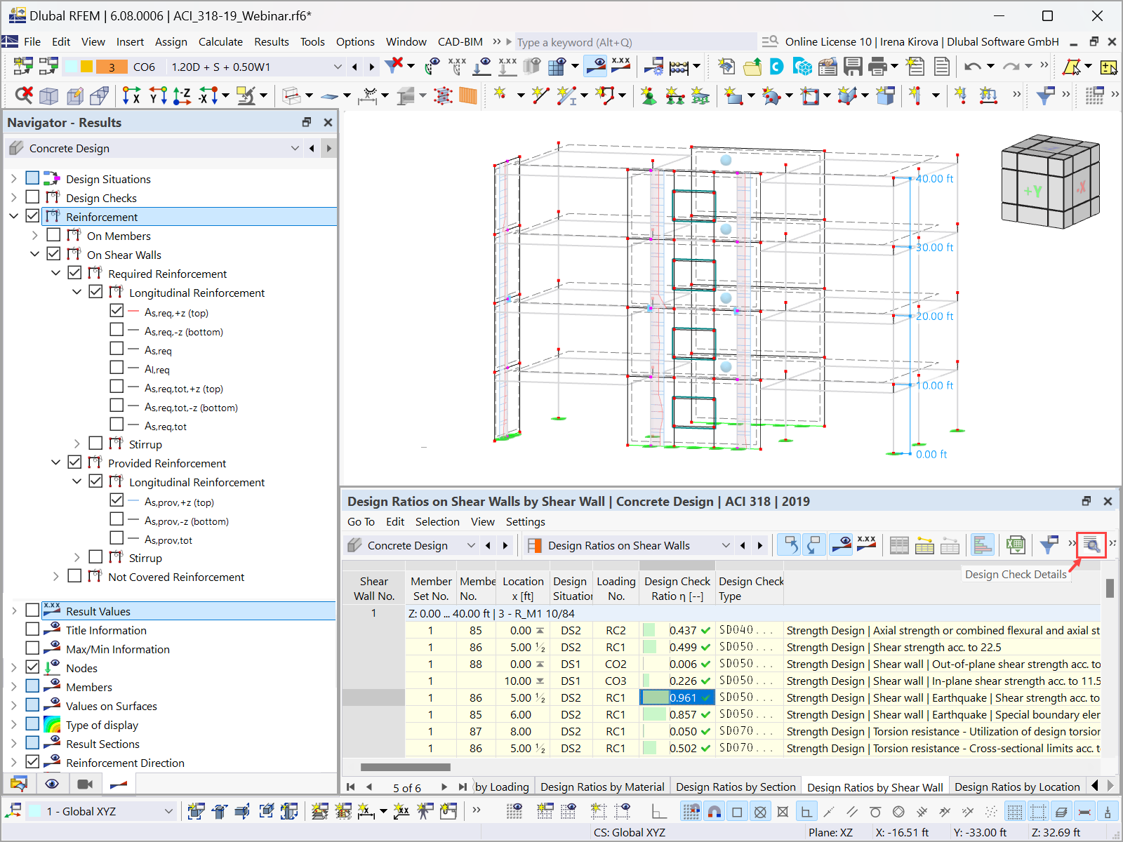
这张图片展示了Dlubal软件的功能,突出显示了结构分析结果的图形和表格表示。工程师可以通过详细的图形和表格可视化复杂的数据,从而促进对结构项目的更好理解和决策。这些表示有助于高效评估各种参数,确保在设计阶段能够识别和解决潜在问题。Dlubal软件中的工具允许图形数据与表格信息无缝集成,提供全面的分析结果视图。此功能对于希望优化结构设计的工程师至关重要,并确保结果输出的准确性。
  • 结构分析
  • Dlubal 软件
  • 图形表示
  • 表格数据
  • 土木工程
用于
  • RFEM 6 中的混凝土剪力墙设计: 分步指南
分享