常见问题005629 | 如何分析平面线支座的支座反应?结果切割有帮助吗?
常见问题005629 | 如何分析平面线支座的支座反应?结果切割有帮助吗?
2024-11-24
054089
  • RFEM 6
  • 结构分析与设计
  • 有限元分析

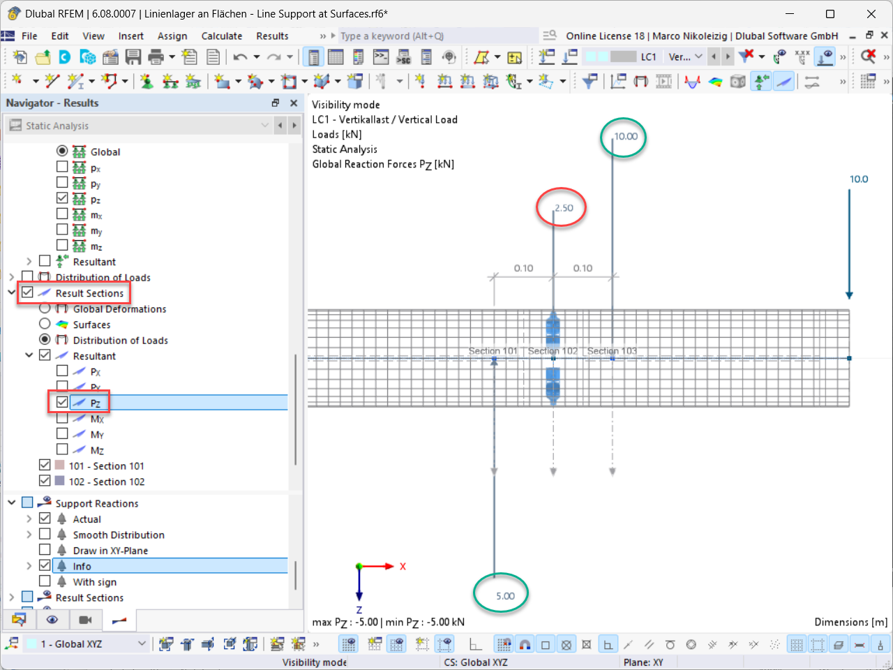
101至103号截面中结果荷载分布显示

常见问题005629 | 如何分析平面线支座的支座反应?结果切割有帮助吗?

  • 线支座
  • 支座反应
  • 合力
  • 支座力
  • 结果切面
  • 切面
  • 结果表
  • 面模型
  • 支座反应分析
  • 剪力跳跃
  • 支座线
  • 点支座
  • 结果变化
  • 常量平滑
  • 信息框
  • 分析方法
  • 杆结构
  • 模型检查
  • 单跨梁
  • 悬臂
  • 管道
  • 管道截面
分享