安科纳 INAIL 总部的可持续设计与现代水疗空间翻新。
  • 3D 查看器
  • 3D Viewer | Babylon
  • 虚拟现实
安科纳 INAIL 总部的可持续设计与现代水疗空间翻新。
2025-02-28
055594
  • RFEM 6
  • 混凝土结构
  • 钢结构
    • 结构分析与设计
    • 应力分析与计算
    • 有限元分析

安科纳 INAIL 总部

安科纳 INAIL 总部的可持续设计与现代水疗空间翻新。

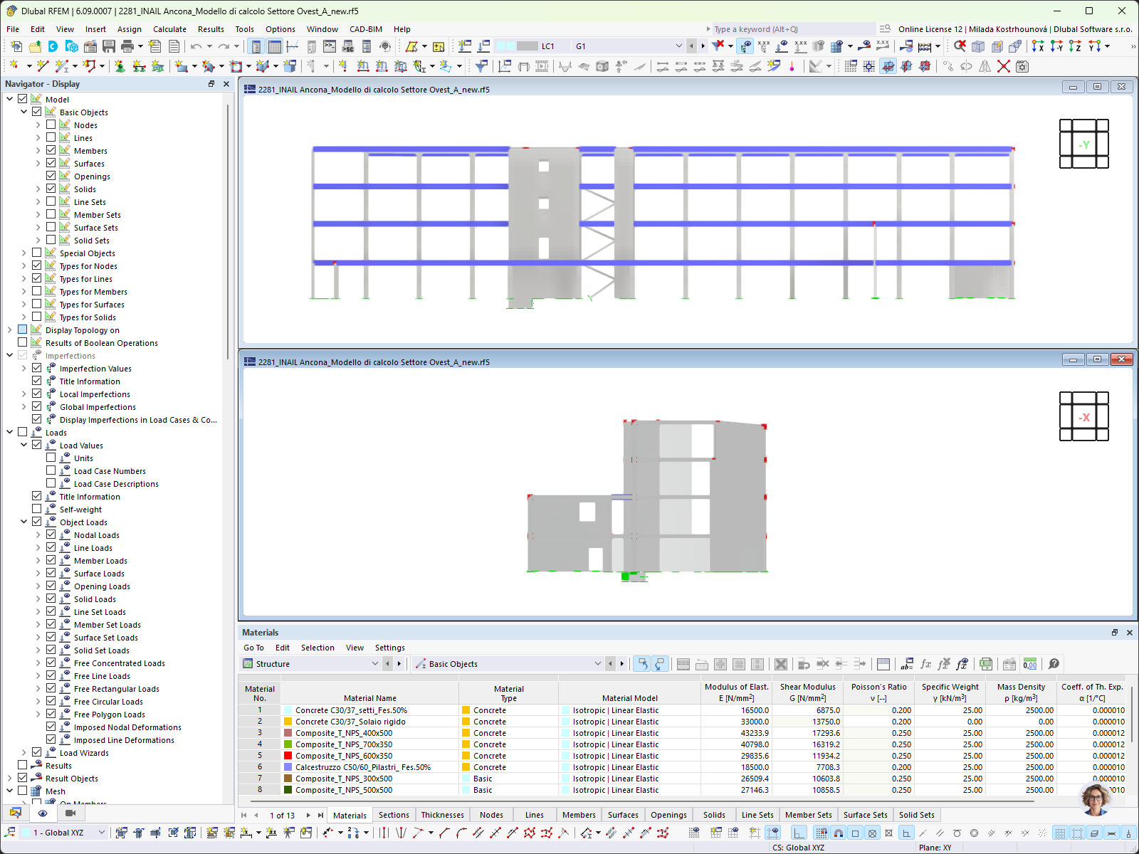
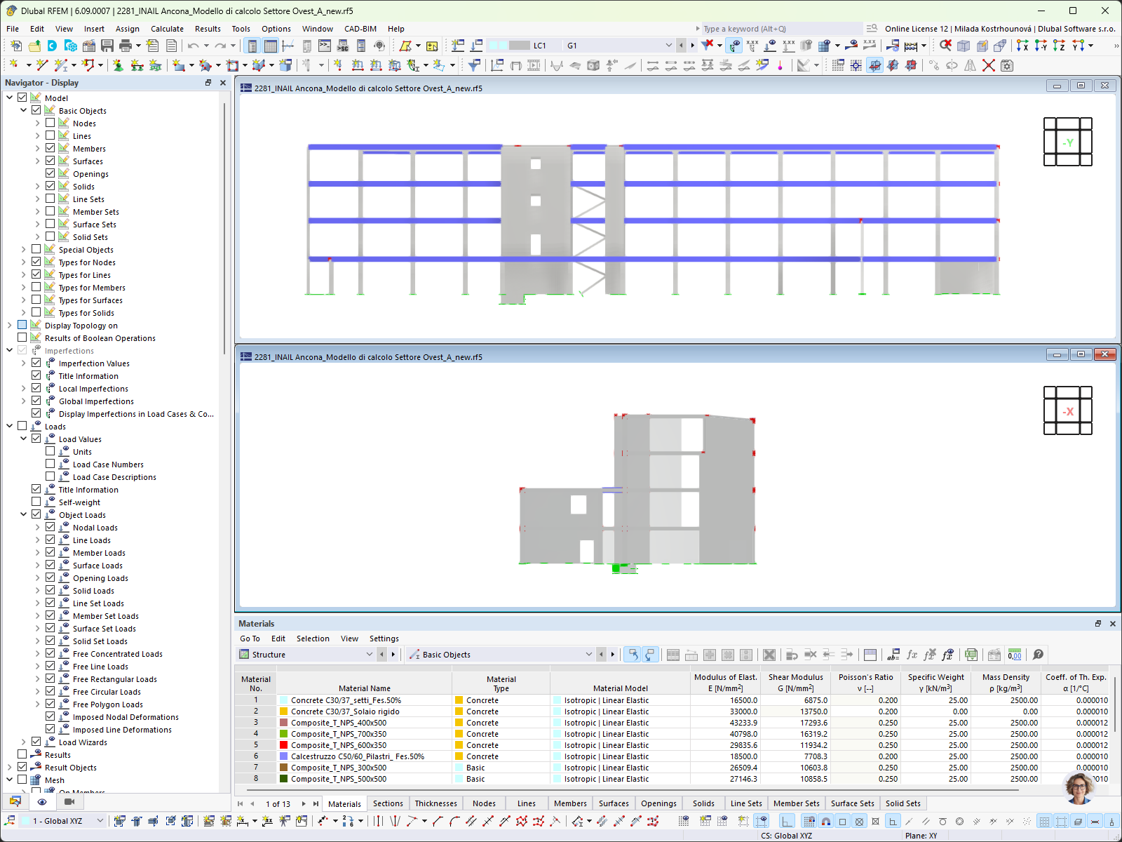
图片详细展示了意大利安科纳市将前 IPSIA 高中改建为新 INAIL 总部。该建筑包含四层地上楼层,总面积达 6,600 平方米,以石材包覆和有规律的开口突显出大体量特征。规整的空隙、突出的透明入口和精心挑选的色彩突显了其公共功能。设计采用预制预应力钢筋混凝土和 BIM 方法确保效率,配备与地方当局相关的办公室,以及水疗、健康和康复的专用空间。
  • INAIL 总部
  • 翻新工程
  • 可持续设计
  • BIM 建模
  • 预应力钢筋混凝土预制构件
用于
  • 意大利安科纳 INAIL 总部
3D 模型
无法下载 客户项目/只视图
更多关于 3D 模型
  • INAIL 安科纳总部
详细说明
节点数目: 571
线的数目 976
杆件数目: 613
面的数目: 236
实体数目 0
荷载工况数目 15
荷载组合数目 127
结果组合数目 5
总重量 1953,721 t
翘曲区域尺寸 71.050 x 16.176 x 23.935 m
分享