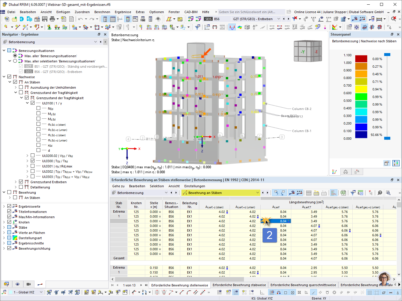
图中显示了基于验算相关细节的混凝土所需配筋的计算。
图中显示了基于验算相关细节的混凝土所需配筋的计算。
2025-02-28
055605
  • RFEM 6 的混凝土设计模块
  • RSTAB 9的混凝土设计
  • 混凝土结构
    • 结构分析与设计

混凝土设计|利用率|钢筋计算

图中显示了基于验算相关细节的混凝土所需配筋的计算。

此图显示了混凝土设计的过程,展示了确定所需钢筋的技术流程。显示了说明打开细节视图步骤的验算细节。FAQ 005669 提供了补充信息,以帮助理解钢筋的确定。
  • 混凝土设计
  • 利用率
  • 钢筋分析
  • 验算详情
  • 打印
用于
  • 配筋计算明细
分享