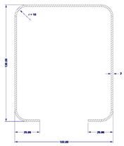
Konstrukce a zatížení (rozměry v mm, síla v kN)
Außenabmessungen des Querschnitts in mm
Výchozí šířky v mm
Wirksame Randsteife
Stanovení pérové tuhosti
Wirksamer Steifenquerschnitt
Ermittlung der Federsteifigkeit
Basisangaben
Parametry výpočtu
Tabulka 1.7 Výchozí šířky podle EN 1993-1-3
Tabulka 1.8 Výztuhy
Tabulka 1.9 Panely
Tabulka 2.1 Zatěžovací stavy
Tabulka 3.1 Vnitřní síly
Účinné průřezové charakteristiky
Basisangaben
Parameter des nationalen Anhangs
Detaily, záložka Prvky tvarované za studena
Details, Register Stabilität
Obrázek 20 - Výsledky
Konstrukce a zatížení (rozměry v mm, síla v kN)
Außenabmessungen des Querschnitts in mm
Výchozí šířky v mm
Wirksame Randsteife
Stanovení pérové tuhosti
Wirksamer Steifenquerschnitt
Ermittlung der Federsteifigkeit
Basisangaben
Parametry výpočtu
Tabulka 1.7 Výchozí šířky podle EN 1993-1-3
Tabulka 1.8 Výztuhy
Tabulka 1.9 Panely
Tabulka 2.1 Zatěžovací stavy
Tabulka 3.1 Vnitřní síly
Účinné průřezové charakteristiky
Basisangaben
Parameter des nationalen Anhangs
Detaily, záložka Prvky tvarované za studena
Details, Register Stabilität
Obrázek 20 - Výsledky
30.5.2024
008649
  • SHAPE-THIN 9
  • RFEM 5
  • RF-STEEL Cold-Formed Sections 5
    • RSTAB 8
    • STEEL Cold-Formed Sections 8
    • Ocelové konstrukce
    • Statické konstrukce
    • Analýza napětí
    • Eurocode 3

Konstrukce a zatížení (rozměry v mm, síla v kN)

Používá se v
  • Posouzení tenkostěnného C-profilu tvarovaného za studena podle EN 1993-1-3
Sdílet
30.5.2024
008650
  • SHAPE-THIN 9
  • RFEM 5
  • RF-STEEL Cold-Formed Sections 5
    • RSTAB 8
    • STEEL Cold-Formed Sections 8
    • Ocelové konstrukce
    • Statické konstrukce
    • Analýza napětí
    • Eurocode 3
Außenabmessungen des Querschnitts in mm
Používá se v
  • Posouzení tenkostěnného C-profilu tvarovaného za studena podle EN 1993-1-3
Sdílet
30.5.2024
008651
  • SHAPE-THIN 9
  • RFEM 5
  • RF-STEEL Cold-Formed Sections 5
    • RSTAB 8
    • STEEL Cold-Formed Sections 8
    • Ocelové konstrukce
    • Statické konstrukce
    • Analýza napětí
    • Eurocode 3
Výchozí šířky v mm
Používá se v
  • Posouzení tenkostěnného C-profilu tvarovaného za studena podle EN 1993-1-3
Sdílet
30.5.2024
008652
  • SHAPE-THIN 9
  • RFEM 5
  • RF-STEEL Cold-Formed Sections 5
    • RSTAB 8
    • STEEL Cold-Formed Sections 8
    • Ocelové konstrukce
    • Statické konstrukce
    • Analýza napětí
    • Eurocode 3
Účinná okrajová výztuha
Wirksame Randsteife

Používá se v
  • Posouzení tenkostěnného C-profilu tvarovaného za studena podle EN 1993-1-3
Sdílet
30.5.2024
008653
  • SHAPE-THIN 9
  • RFEM 5
  • RF-STEEL Cold-Formed Sections 5
    • RSTAB 8
    • STEEL Cold-Formed Sections 8
    • Ocelové konstrukce
    • Statické konstrukce
    • Analýza napětí
    • Eurocode 3
Stanovení pérové tuhosti
Používá se v
  • Posouzení tenkostěnného C-profilu tvarovaného za studena podle EN 1993-1-3
Sdílet
30.5.2024
008654
  • SHAPE-THIN 9
  • RFEM 5
  • RF-STEEL Cold-Formed Sections 5
    • RSTAB 8
    • STEEL Cold-Formed Sections 8
    • Ocelové konstrukce
    • Statické konstrukce
    • Analýza napětí
    • Eurocode 3
Wirksamer Steifenquerschnitt
Používá se v
  • Posouzení tenkostěnného C-profilu tvarovaného za studena podle EN 1993-1-3
Sdílet
30.5.2024
008655
  • SHAPE-THIN 9
  • RFEM 5
  • RF-STEEL Cold-Formed Sections 5
    • RSTAB 8
    • STEEL Cold-Formed Sections 8
    • Ocelové konstrukce
    • Statické konstrukce
    • Analýza napětí
    • Eurocode 3
Ermittlung der Federsteifigkeit
Používá se v
  • Posouzení tenkostěnného C-profilu tvarovaného za studena podle EN 1993-1-3
Sdílet
30.5.2024
008656
  • SHAPE-THIN 9
  • RFEM 5
  • RF-STEEL Cold-Formed Sections 5
    • RSTAB 8
    • STEEL Cold-Formed Sections 8
    • Ocelové konstrukce
    • Statické konstrukce
    • Analýza napětí
    • Eurocode 3
General Data
Basisangaben

Používá se v
  • Posouzení tenkostěnného C-profilu tvarovaného za studena podle EN 1993-1-3
Sdílet
30.5.2024
008657
  • SHAPE-THIN 9
  • RFEM 5
  • RF-STEEL Cold-Formed Sections 5
    • RSTAB 8
    • STEEL Cold-Formed Sections 8
    • Ocelové konstrukce
    • Statické konstrukce
    • Analýza napětí
    • Eurocode 3
Parametry výpočtu
Používá se v
  • Posouzení tenkostěnného C-profilu tvarovaného za studena podle EN 1993-1-3
Sdílet
30.5.2024
013155
  • RFEM 5
  • RSTAB 8
Tabulka 1.7 Výchozí šířky podle EN 1993-1-3
Používá se v
  • Posouzení tenkostěnného C-profilu tvarovaného za studena podle EN 1993-1-3
Sdílet
30.5.2024
008658
  • SHAPE-THIN 9
  • RFEM 5
  • RF-STEEL Cold-Formed Sections 5
    • RSTAB 8
    • STEEL Cold-Formed Sections 8
    • Ocelové konstrukce
    • Statické konstrukce
    • Analýza napětí
    • Eurocode 3
Tabulka 1.8 Výztuhy
Používá se v
  • Posouzení tenkostěnného C-profilu tvarovaného za studena podle EN 1993-1-3
3D model
Více o 3D modelu
  • C-profil
Sdílet
30.5.2024
008659
  • SHAPE-THIN 9
  • RFEM 5
  • RF-STEEL Cold-Formed Sections 5
    • RSTAB 8
    • STEEL Cold-Formed Sections 8
    • Ocelové konstrukce
    • Statické konstrukce
    • Analýza napětí
    • Eurocode 3
Tabulka 1.9 Panely
Používá se v
  • Posouzení tenkostěnného C-profilu tvarovaného za studena podle EN 1993-1-3
3D model
Více o 3D modelu
  • C-profil
Sdílet
30.5.2024
008660
  • SHAPE-THIN 9
  • RFEM 5
  • RF-STEEL Cold-Formed Sections 5
    • RSTAB 8
    • STEEL Cold-Formed Sections 8
    • Ocelové konstrukce
    • Statické konstrukce
    • Analýza napětí
    • Eurocode 3
Tabulka 2.1 Zatěžovací stavy
Používá se v
  • Posouzení tenkostěnného C-profilu tvarovaného za studena podle EN 1993-1-3
3D model
Více o 3D modelu
  • C-profil
Sdílet
30.5.2024
008661
  • SHAPE-THIN 9
  • RFEM 5
  • RF-STEEL Cold-Formed Sections 5
    • RSTAB 8
    • STEEL Cold-Formed Sections 8
    • Ocelové konstrukce
    • Statické konstrukce
    • Analýza napětí
    • Eurocode 3
Tabulka 3.1 Vnitřní síly
Používá se v
  • Posouzení tenkostěnného C-profilu tvarovaného za studena podle EN 1993-1-3
3D model
Více o 3D modelu
  • C-profil
Sdílet
30.5.2024
008662
  • SHAPE-THIN 9
  • RFEM 5
  • RF-STEEL Cold-Formed Sections 5
    • RSTAB 8
    • STEEL Cold-Formed Sections 8
    • Ocelové konstrukce
    • Statické konstrukce
    • Analýza napětí
    • Eurocode 3
Účinné průřezové charakteristiky
Používá se v
  • Posouzení tenkostěnného C-profilu tvarovaného za studena podle EN 1993-1-3
3D model
Více o 3D modelu
  • C-profil
Sdílet
30.5.2024
008663
  • SHAPE-THIN 9
  • RFEM 5
  • RF-STEEL Cold-Formed Sections 5
    • RSTAB 8
    • STEEL Cold-Formed Sections 8
    • Ocelové konstrukce
    • Statické konstrukce
    • Analýza napětí
    • Eurocode 3
General Data
Basisangaben

Používá se v
  • Posouzení tenkostěnného C-profilu tvarovaného za studena podle EN 1993-1-3
Sdílet
30.5.2024
008664
  • SHAPE-THIN 9
  • RFEM 5
  • RF-STEEL Cold-Formed Sections 5
    • RSTAB 8
    • STEEL Cold-Formed Sections 8
    • Ocelové konstrukce
    • Statické konstrukce
    • Analýza napětí
    • Eurocode 3
Parameter des nationalen Anhangs
Používá se v
  • Posouzení tenkostěnného C-profilu tvarovaného za studena podle EN 1993-1-3
Sdílet
30.5.2024
008665
  • SHAPE-THIN 9
  • RFEM 5
  • RF-STEEL Cold-Formed Sections 5
    • RSTAB 8
    • STEEL Cold-Formed Sections 8
    • Ocelové konstrukce
    • Statické konstrukce
    • Analýza napětí
    • Eurocode 3
Detaily, záložka Prvky tvarované za studena
Používá se v
  • Posouzení tenkostěnného C-profilu tvarovaného za studena podle EN 1993-1-3
Sdílet
30.5.2024
008666
  • SHAPE-THIN 9
  • RFEM 5
  • RF-STEEL Cold-Formed Sections 5
    • RSTAB 8
    • STEEL Cold-Formed Sections 8
    • Ocelové konstrukce
    • Statické konstrukce
    • Analýza napětí
    • Eurocode 3
Detaily, záložka Stabilita
Details, Register Stabilität

Používá se v
  • Posouzení tenkostěnného C-profilu tvarovaného za studena podle EN 1993-1-3
Sdílet
30.5.2024
008667
  • SHAPE-THIN 9
  • RFEM 5
  • RF-STEEL Cold-Formed Sections 5
    • RSTAB 8
    • STEEL Cold-Formed Sections 8
    • Ocelové konstrukce
    • Statické konstrukce
    • Analýza napětí
    • Eurocode 3
Obrázek 20 - Výsledky
Používá se v
  • Posouzení tenkostěnného C-profilu tvarovaného za studena podle EN 1993-1-3
Sdílet