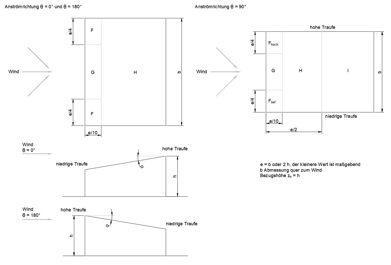
Einteilung der Dachflächen beim Pultdach
Einteilung der Dachflächen beim Pultdach
30.5.2024
009021
  • RFEM 5
  • RSTAB 8
  • RX-TIMBER Glued-Laminated Beam 2
    • RX-TIMBER Roof 2
    • RX-TIMBER Continuous Beam 2
    • RX-TIMBER Purlin 2
    • RX-TIMBER Frame 2
    • RX-TIMBER Column 2
    • RX-TIMBER Brace 2
    • Betonové konstrukce
    • Ocelové konstrukce
    • Dřevěné konstrukce
    • Budovy
    • Statické konstrukce
    • Eurocode 0
    • Eurocode 1

Einteilung der Dachflächen beim Pultdach

Používá se v
  • Zatížení větrem na pultové a sedlové střechy v Německu
Sdílet