Vítr je přirozeně akční veličinou v čase na konstrukci umístěnou v exteriéru. Aby bylo možné toto zatížení kombinovat s jinými účinky (užitné zatížení, sníh atd.) v definovaných návrhových situacích podle kombinační normy DIN EN 1990, je zatížení větrem klasifikováno jako proměnlivé, volné zatížení. Změny aerodynamických součinitelů způsobené jinými zatíženími (sníh, doprava nebo námraza) a úpravami konstrukce musí být zohledněny během výstavby. Při zatížení větrem se však okna a dveře považují za zavřené. Okna a dveře, které jsou nevyhnutelně otevřené, je třeba zohlednit jako nahodilé návrhové situace.
Dynamické zatížení větrem je třeba zjednodušeně zobrazit jako ekvivalentní tlak větru nebo sílu větru k maximálnímu působení turbulentního větru. Vítr působí na vnější plochy v případě uzavřených konstrukcí a navíc na vnitřní plochy v případě propustných nebo otevřených konstrukcí. Zatížení musí být aplikováno kolmo k uvažovaným plochám. U velkých ploch pod cirkulujícím větrem je třeba navíc uvažovat třecí složku, a to rovnoběžně s plochou.
Norma pro vítr DIN EN 1991-1-4 s národní přílohou stanoví zatížení větrem jako charakteristickou hodnotu. Tato hodnota je dána základní rychlostí větru s roční pravděpodobností překročení 2 % a průměrnou dobou návratu 50 let.
Výsledné zatížení větrem v případě dostatečně tuhých budov, které nejsou náchylné k vibracím, lze popsat jako statickou srovnávací sílu, která závisí na špičkové rychlosti. Naproti tomu u budov náchylných k vibracím se pro stanovení statického srovnávacího zatížení špičková rychlost dodatečně upraví pomocí strukturálního součinitele [1] , [2].
Zjednodušeně lze říci, že konstrukce nejsou považovány za náchylné k vibracím, pokud se deformace při zatížení větrem způsobená rezonancí nárazového větru nezvýší o více než 10 %. Toto kritérium platí pro typické budovy s výškou do 25 m, které nejsou náchylné k vibracím. Ve všech ostatních případech lze použít následující klasifikační kritérium [3] :
kde
xS = je přemístění hlavy vm způsobené vlastní tíhou působící ve směru větru
h = výška budovy vm; href = 25 m
b = šířka budovy kolmo ke směru větru vm
δ = logaritmický dekrement tlumení podle DIN EN 1991-1-4, příloha F
| Typ konstrukce | Stavební útlum δmin |
|---|---|
| Železobetonová konstrukce | 0,1 |
| Ocelové konstrukce | 0,05 |
| Smíšená konstrukce (ocel a beton) | 0,08 |
Výškově závislý vrcholový rychlostní tlak
Zatížení větrem u budovy, která není citlivá na vibrace, závisí na maximální rychlosti qp. Tato hodnota vyplývá z rychlosti větru při nárazu větru o délce dvou až čtyř sekund při zohlednění okolních terénních podmínek. Pro stanovení zatížení v určitém místě obsahuje národní příloha SRN mapu oblastí větru s příslušnými základními hodnotami základních rychlostí větru vb,0, základními hodnotami tlaků základních rychlostí větru qb,0 a specifikací různé typy terénu (kategorie I - IV) [1] , [2] , [3].
Pokud se oblast větru zvětší, zvýší se i základní hodnota základní rychlosti větru.
Kategorie terénu se zvyšuje s drsností terénu.
| terén | Popis |
|---|---|
| Kategorie terénu I | Otevřené moře; jezera s volnou plochou alespoň 5 km ve směru větru; rovinatý terén bez překážek |
| Kategorie terénu II | Místo se živými ploty, jednotlivými farmami, domy nebo stromy (například zemědělská plocha) |
| Kategorie terénu III | Předměstí, průmyslové nebo obchodní oblasti; lesy |
| Kategorie terénu IV | Městské oblasti, kde alespoň 15 % plochy je pokryto budovami, jejichž průměrná výška přesahuje 15 m |
| Doběh se smíšeným profilem | Přechodová oblast mezi kategoriemi terénu I a II |
| Smíšený profil do vnitrozemí | Přechodová oblast mezi kategoriemi terénu II a III |
Tlak při maximální rychlosti vb,0 lze stanovit zadáním základní hodnoty základní rychlosti větru qp a typu terénu.
| Maximální dynamický tlak qp v kN/m² [3] | Přístup 1 Tabulka NA-B.1 | Metoda 2 NA.B.3.3 | Postup 3 NA.B.3.2 | |||||||
|---|---|---|---|---|---|---|---|---|---|---|
| Vliv hladiny moře m.mod | Necelých 800 m nad mořem | 1,0 | ||||||||
| Mezi 800 m a 1 100 m nad mořem | 0,2 +Hs/1000 | |||||||||
| Více než 1 100 m n. m | Je třeba zohlednit zvláštní požadavky | |||||||||
| Větrová oblast | 1 | 2 | 3 | 4 | 1 | 2 | 3 | 4 | ||
| výchozí základní rychlost větru vb,0 v m/s | 22.5 | 25,0 | 27.5 | 30,0 | - | - | - | - | ||
| Součinitel směru cdir | 1,0 | - | - | - | - | |||||
| součinitel ročního období cseason | 1,0 | - | - | - | - | |||||
| základní dynamický tlak větru qb v kN/m² | 0,32 | 0,39 | 0,47 | 0,56 | - | - | - | - | ||
| Kategorie terénu | Výška modelu | qp v kN/m² | ||||||||
| qp (z) v kN/m² | ||||||||||
| Kategorie terénu I | Do 2 m | 1,90 ⋅ qb ⋅ NNmod - | - | - | - | - | ||||
| 2 m až 300 m | 2,60 ⋅ qb ⋅ (z/10)0,19 ⋅ NNmod | |||||||||
| Kategorie terénu II | Do 4 m | 1,70 ⋅ qb ⋅ NNmod - | - | - | - | - | ||||
| 4 m až 300 m | 2,10 ⋅ qb ⋅ (z/10)0,24 ⋅ NNmod | |||||||||
| Kategorie terénu III | Do 8 m | 1,50 ⋅ qb ⋅ NNmod - | - | - | - | - | ||||
| 8 m až 300 m | 1,60 ⋅ qb ⋅ (z/10)0,31 ⋅ NNmod | |||||||||
| Kategorie terénu IV | Do 16 m | 1,30 ⋅ qb ⋅ NNmod - | - | - | - | - | ||||
| 16 m až 300 m | 1,10 ⋅ qb ⋅ (z/10)0,40 ⋅ NNmod | |||||||||
| Ostrovy v Severním moři I | Do 2 m | 1.10 ⋅ NNmod | - | - | - | - | ||||
| 2 m až 300 m | 1,50 ⋅ (z/10)0,19 ⋅ NNmod | |||||||||
| Pobřežní oblasti a ostrovy v Baltském moři I - II | Do 4 m | 1,80 ⋅ qb ⋅ NNmod | - | - | - | - | ||||
| 4 m až 50 m | 2,30 ⋅ qb ⋅ (z/10)0,27 ⋅ NNmod | |||||||||
| 50 m až 300 m | 2,60 ⋅ qb ⋅ (z/10)0,19 ⋅ NNmod | |||||||||
| Vnitrozemské oblasti II - III | Do 7 m | 1,50 ⋅ qb ⋅ NNmod | - | - | - | - | ||||
| 7 m až 50 m | 1,70 ⋅ qb ⋅ (z/10)0,37 ⋅ NNmod | |||||||||
| 50 m až 300 m | 2,10 ⋅ qb ⋅ (z/10)0,24 ⋅ NNmod | |||||||||
| Vnitrozemí | Do 10 m | - | - | 0,50 ⋅ NNmod | 0,65 ⋅ NNmod | 0,80 ⋅ NNmod | 0,95 ⋅ NNmod | |||
| 10 m až 18 m | 0,65 ⋅ NNmod | 0,80 ⋅ NNmod | 0,95 ⋅ NNmod | 1,15 ⋅ NNmod | ||||||
| 18 m až 25 m | 0,75 ⋅ NNmod | 0,90 ⋅ NNmod | 1.10 ⋅ NNmod | 1,30 ⋅ NNmod | ||||||
| Pobřeží a ostrovy Baltského moře | Do 10 m | - | - | - | 0,85 ⋅ NNmod | 1,05 ⋅ NNmod | - | |||
| 10 m až 18 m | - | 1,00 ⋅ NNmod | 1,20 ⋅ NNmod | - | ||||||
| 18 m až 25 m | - | 1.10 ⋅ NNmod | 1,30 ⋅ NNmod | - | ||||||
| Pobřeží Severního a Baltského moře a ostrovy Baltského moře | Do 10 m | - | - | - | - | - | 1,25 ⋅ NNmod | |||
| 10 m až 18 m | - | - | - | 1,40 ⋅ NNmod | ||||||
| 18 m až 25 m | - | - | - | 1,55 ⋅ NNmod | ||||||
| Ostrovy Severního moře | Do 10 m | - | - | - | - | - | 1,40 ⋅ NNmod | |||
| 10 m až 18 m | - | - | - | Podle přístupu 2 | ||||||
| 18 m až 25 m | - | - | - | Podle přístupu 2 | ||||||
Stanovení lokální základní rychlosti větru pomocí online služby Dlubal
Online služba společnosti Dlubal sro Zatížení sněhem, větrná pásma a zemětřesení kombinuje standardní specifikace s digitálními technologiemi. V závislosti na zvoleném typu zatížení (sníh, vítr, zemětřesení) a národní normě umístí služba příslušnou mapu oblastí přes mapu Google Maps. Do vyhledávače může uživatel zadat adresu místa stavby nebo případně zeměpisné souřadnice nebo může myší kliknout na předpokládané umístění konstrukce na mapě. Nástroj pak pro určené místo stanoví na základě přesné nadmořské výšky a vstupních údajů o dané oblasti charakteristické zatížení, respektive zrychlení. Jestliže pro umístění stavby dosud nelze zadat jednoznačnou adresu, můžeme mapu přiblížit a vybrat odpovídající místo. Výpočet se pak upraví na novou nadmořskou výšku a zobrazí se příslušná zatížení.
Tato online služba společnosti Dlubal Software je k dispozici na našich webových stránkách v sekci Řešení → Online služby.
V případě zadání parametrů...
1. druh zatížení = vítr
2. norma = EN 1991-1-4
3. Příloha = Německo | DIN EN 1991-1-4
4. Adresa = Zellweg 2, Tiefenbach
... získáme pro vybrané místo následující výstupní údaje:
5. větrná zóna
6 případné doplňkové informace
7. základní základní rychlost větru vb,0
8. základní rychlost větru tlak qb
Pokud vyberete polohu nad 1 100 m, zobrazí se online služba v bodě 6 Žádné definované zatížení větrem nad 1 100 m | NCI A.2 (3)“. Podle stávajícího pravidla nelze určit žádné zatížení a toto místo je třeba zohlednit.
tlak větru na povrchy
Působící tlak větru na plochu je součinem rozhodujícího špičkového tlaku a aerodynamickým součinitelem [1] , [2].
Pro vnější plochy:
we =qp (ze ) ⋅ cpe
kde
qp (ze ) = tlak při maximální rychlosti
ze = referenční výška pro vnější tlak
cpe = aerodynamický součinitel pro vnější tlak
Pro vnitřní plochy:
wi =qp (zi ) ⋅ cpi
kde
qp (zi ) = tlak při maximální rychlosti
zi = referenční výška pro vnitřní tlak
cpi = aerodynamický součinitel pro vnitřní tlak
Výsledné zatížení vnějším a vnitřním tlakem je čisté tlakové zatížení na plochu. Tlak na plochu se považuje za kladný a tlak (sání) směrem od plochy za záporný.
Čistý tlak:
wnet = we + wi
Vybrané aerodynamické součinitele
Zatížení tlakem a sáním působí na plochu konstrukce, která je v proudění větru. Velikost zatížení na vnějších plochách závisí na jejich zatížení. Zatížená oblast je plocha, která aktivně přebírá dvourozměrné zatížení větrem a koncentrovaně je přenáší na spodní konstrukci. Pro tento typ výpočtu norma obsahuje součinitele aerodynamického vnějšího tlaku, které závisí na zanášecí ploše [1] , [2].
| Oblast působení zatížení A [3] | Aerodynamický Součinitel vnějšího tlaku cpe | Popis |
|---|---|---|
| <1 m² | cpe,1 | Posouzení malých konstrukčních prvků a jejich ukotvení (například obvodové pláště nebo střešní prvky) |
| 1 m² až 10 m² | cpe,1 - (cpe,1 - cpe,10 ) ⋅ log10 (A) | |
| > 10 m² | cpe,10 | Návrh celé konstrukce |
svislé stěny pozemních staveb s pravoúhlým půdorysem
Rychlost větru přirozeně roste nelineárně s výškou od země. Výsledné rozložení tlaku při maximální rychlosti lze zjednodušeně a v měřítku přepočítat na výšku pro návětrnou plochu budovy (návětrná plocha D) v závislosti na poměru výšky budovy h k šířce budovy b [1] , [2].
Zatížení sáním od stěn zbývajících závětrných ploch rovnoběžně s větrem (oblasti A, B, C a E) závisí na aerodynamice budovy. V závislosti na poměru výšky budovy h k hloubce budovy d lze stanovit konečné aerodynamické součinitele pro vnější plochy a použít je v určitém měřítku.
| Oblast | jednoho | B | C | d | E | |||||
|---|---|---|---|---|---|---|---|---|---|---|
| h/h | cpe,10 | cpe,1 | cpe,10 | cpe,1 | cpe,10 | cpe,1 | cpe,10 | cpe,1 | cpe,10 | cpe,1 |
| ≥5 | -1,4 | -1,7 | -0,8 | -1.1 | -0,5 | -0,7 | +0,8 | +1,0 | -0,5 | -0,7 |
| 1 | -1,2 | -1,4 | -0,8 | -1.1 | -0,5 | +0,8 | +1,0 | -0,5 | ||
| ≤ 0,25 | -1,2 | -1,4 | -0,8 | -1.1 | -0,5 | +0,8 | +1,0 | -0,3 | -0,5 | |
| U samostatně stojících budov na volném prostranství se mohou v sací ploše vyskytnout větší sací síly. Přípustná je lineární interpolace mezihodnot. U budov s h/d> 5 je třeba stanovit celkové zatížení větrem z hodnot sil podle DIN EN 1991-1-4 a národní přílohy, kapitoly 7.6 až 7.8 a 7.9.2. | ||||||||||
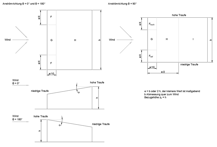
Pultová střecha
Podobně jako rozměry budovy má také tvar střechy aerodynamický účinek na vnější plochy střechy. Střecha se sklonem větším než 5° s výraznými vysokými a nízkými okapy se nazývá sedlová střecha. V důsledku aerodynamiky působí na zatěžovací plochy zatížení větrem v závislosti na sklonu střechy [1] , [2].
| Oblast | b | G | h | I | ||||||
|---|---|---|---|---|---|---|---|---|---|---|
| Směr proudění θ = 0°2) | ||||||||||
| Úhel sklonu α1) | cpe,10 | cpe,1 | cpe,10 | cpe,1 | cpe,10 | cpe,1 | cpe,10 | cpe,1 | ||
| 5° | -1,7 | -2.5 | -1,2 | -2,0 | -0,6 | -1,2 | - | - | ||
| +0,0 | +0,0 | +0,0 | ||||||||
| 15° | -0,9 | -2,0 | -0,8 | -1,5 | -0,3 | - | - | |||
| +0,2 | +0,2 | +0,2 | ||||||||
| 30° | -0,5 | -1,5 | -0,5 | -1,5 | -0,2 | - | - | |||
| +0,7 | +0,7 | +0,4 | ||||||||
| 45° | -0,0 | -0,0 | -0,0 | - | - | |||||
| +0,7 | +0,7 | +0,6 | ||||||||
| 60° | +0,7 | +0,7 | +0,7 | - | - | |||||
| 75° | +0,8 | +0,8 | +0,8 | - | - | |||||
| Směr proudění θ = 180° | ||||||||||
| 5° | -2.3 | -2.5 | -1,3 | -2,0 | -0,8 | -1,2 | - | - | ||
| 15° | -2.5 | -2.8 | -1,3 | -2,0 | -0,9 | -1,2 | - | - | ||
| 30° | -1.1 | -2.3 | -0,8 | -1,5 | -0,8 | - | - | |||
| 45° | -0,6 | -1,3 | -0,5 | -0,7 | - | - | ||||
| 60° | -0,5 | -1,0 | -0,5 | -0,5 | - | - | ||||
| 75° | -0,5 | -1,0 | -0,5 | -0,5 | - | - | ||||
| Směr proudění θ = 90° | ||||||||||
| fvysoká | Fnízká | |||||||||
| cpe,10 | cpe,1 | cpe,10 | cpe,1 | |||||||
| 5° | -2.1 | -2.6 | -2.1 | -2.4 | -1,8 | -2,0 | -0,6 | -1,2 | -0,5 | |
| 15° | -2.4 | -2.9 | -1,6 | -2.4 | -1,9 | -2.5 | -0,8 | -1,2 | -0,7 | -1,2 |
| 30° | -2.1 | -2.9 | -1,3 | -2,0 | -1,5 | -2,0 | -1,0 | -1,3 | -0,8 | -1,2 |
| 45° | -1,5 | -2.4 | -1,3 | -2,0 | -1,4 | -2,0 | -1,0 | -1,3 | -0,9 | -1,2 |
| 60° | -1,2 | -2,0 | -1,2 | -2,0 | -1,2 | -2,0 | -1,0 | -1,3 | -0,7 | -1,2 |
| 75° | -1,2 | -2,0 | -1,2 | -2,0 | -1,2 | -2,0 | -1,0 | -1,3 | -0,5 | |
| 1) Lineární interpolace mezihodnot je přípustná, pokud se nezmění znaménko. Pro interpolaci je uvedena hodnota 0,0. 2) Pro směr proudění θ = 0° a úhly sklonu α = +5° až +45° se tlak mění velmi rychle mezi kladnými a zápornými hodnotami. Proto se pro tuto oblast udává kladný i záporný součinitel vnějšího tlaku. U takových střech je třeba posuzovat oba případy (tlak i sání) odděleně tak, že nejprve zohledníme pouze kladné hodnoty (tlak) a za druhé pouze záporné hodnoty (sání). | ||||||||||
Sedlová střecha
Tvar střechy, který se skládá ze dvou protilehlých střešních ploch, které se protínají na horním vodorovném okraji v hřebeni střechy, se nazývá sedlová střecha. Tato geometrie má své vlastní aerodynamické účinky na oblasti působení zatížení [1] , [2].
| Oblast | b | G | h | I | J | ||||||
|---|---|---|---|---|---|---|---|---|---|---|---|
| Směr proudění θ = 0°2) | |||||||||||
| Úhel sklonu α1) | cpe,10 | cpe,1 | cpe,10 | cpe,1 | cpe,10 | cpe,1 | cpe,10 | cpe,1 | cpe,10 | cpe,1 | |
| 5° | -1,7 | -2.5 | -1,2 | -2,0 | -0,6 | -1,2 | -0,6 | +0,2 | |||
| +0,0 | +0,0 | +0,0 | -0,6 | ||||||||
| 15° | -0,9 | -2,0 | -0,8 | -1,5 | -0,3 | -0,4 | -1,0 | -1,5 | |||
| +0,2 | +0,2 | +0,2 | +0,0 | +0,0 | +0,0 | ||||||
| 30° | -0,5 | -1,5 | -0,5 | -1,5 | -0,2 | -0,4 | -0,5 | ||||
| +0,7 | +0,7 | +0,4 | +0,0 | +0,0 | |||||||
| 45° | -0,0 | -0,0 | -0,0 | -0,2 | -0,3 | ||||||
| +0,7 | +0,7 | +0,6 | +0,0 | +0,0 | |||||||
| 60° | +0,7 | +0,7 | +0,7 | -0,2 | -0,3 | ||||||
| 75° | +0,8 | +0,8 | +0,8 | -0,2 | -0,3 | ||||||
| Směr proudění θ = 90° | |||||||||||
| 5° | -1,6 | -2.2 | -1,3 | -2,0 | -0,7 | -1,2 | -0,6 | - | - | ||
| 15° | -1,3 | -2,0 | -1,3 | -2,0 | -0,6 | -1,2 | -0,5 | - | - | ||
| 30° | -1.1 | -1,5 | -1,4 | -2,0 | -0,8 | -1,2 | -0,5 | - | - | ||
| 45° | -1.1 | -1,5 | -1,4 | -2,0 | -0,9 | -1,2 | -0,5 | - | - | ||
| 60° | -1.1 | -1,5 | -1,2 | -2,0 | -0,8 | -1,0 | -0,5 | - | - | ||
| 75° | -1.1 | -1,5 | -1,2 | -2,0 | -0,8 | -1,0 | -0,5 | - | - | ||
| 1) Pro směr proudění θ = 0° a úhly sklonu α = -5° až +45° se tlak mění velmi rychle mezi kladnými a zápornými hodnotami. Proto je uvedena kladná i záporná hodnota. Pro takové střechy je třeba uvažovat čtyři případy, kdy se nejmenší nebo největší hodnota pro oblasti F, G a H kombinuje s nejmenšími nebo největšími hodnotami pro oblasti I a J. Na ploše střechy nelze směšovat kladné a záporné hodnoty. 2) Pro sklon střechy mezi uvedenými hodnotami je přípustná lineární interpolace, pokud se nezmění znaménko součinitelů tlaku. Pro sklony mezi α = +5° a -5° je třeba použít hodnoty pro ploché střechy podle DIN EN 1991-1-4 a kapitoly 7.2.3. Pro interpolaci je dána nulová hodnota. | |||||||||||