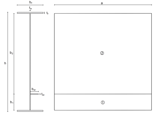
Průřez
průběh napětí
Plný průřez výztuhy s přilehlými částmi stěny
Plný a účinný průřez lokálního boulení
Ekvivalentní tlačený prut a výztuha: Vzdálenosti e1, e2
Účinný průřez lokálního a globálního boulení
Parametry výpočtu
Části průřezu pro klasifikaci
Výztuhy
Panely
Ergebnisse
Průřez
průběh napětí
Plný průřez výztuhy s přilehlými částmi stěny
Plný a účinný průřez lokálního boulení
Ekvivalentní tlačený prut a výztuha: Vzdálenosti e1, e2
Účinný průřez lokálního a globálního boulení
Parametry výpočtu
Části průřezu pro klasifikaci
Výztuhy
Panely
Ergebnisse
30.5.2024
009113
  • SHAPE-THIN 8
  • Ocelové konstrukce
  • Analýza napětí
    • Posouzení stability
    • Eurocode 3

Průřez

Používá se v
  • Podélně vyztužené části stěn podle EN 1993-1-5, článku 4.5
Sdílet
30.5.2024
009114
  • SHAPE-THIN 8
  • Ocelové konstrukce
  • Analýza napětí
    • Posouzení stability
    • Eurocode 3
průběh napětí
Používá se v
  • Podélně vyztužené části stěn podle EN 1993-1-5, článku 4.5
Sdílet
30.5.2024
009115
  • SHAPE-THIN 8
  • Ocelové konstrukce
  • Analýza napětí
    • Posouzení stability
    • Eurocode 3
Plný průřez výztuhy s přilehlými částmi stěny
Používá se v
  • Podélně vyztužené části stěn podle EN 1993-1-5, článku 4.5
Sdílet
30.5.2024
009116
  • SHAPE-THIN 8
  • Ocelové konstrukce
  • Analýza napětí
    • Posouzení stability
    • Eurocode 3
Plný a účinný průřez lokálního boulení
Používá se v
  • Podélně vyztužené části stěn podle EN 1993-1-5, článku 4.5
Sdílet
30.5.2024
009117
  • SHAPE-THIN 8
  • Ocelové konstrukce
  • Analýza napětí
    • Posouzení stability
    • Eurocode 3
Ekvivalentní tlačený prut a výztuha: Vzdálenosti e1, e2
Používá se v
  • Podélně vyztužené části stěn podle EN 1993-1-5, článku 4.5
Sdílet
30.5.2024
009118
  • SHAPE-THIN 8
  • Ocelové konstrukce
  • Analýza napětí
    • Posouzení stability
    • Eurocode 3
Účinný průřez lokálního a globálního boulení
Používá se v
  • Podélně vyztužené části stěn podle EN 1993-1-5, článku 4.5
Sdílet
30.5.2024
009119
  • SHAPE-THIN 8
  • Ocelové konstrukce
  • Analýza napětí
    • Posouzení stability
    • Eurocode 3
Parametry výpočtu
Používá se v
  • Podélně vyztužené části stěn podle EN 1993-1-5, článku 4.5
Sdílet
30.5.2024
009120
  • SHAPE-THIN 8
  • Ocelové konstrukce
  • Analýza napětí
    • Posouzení stability
    • Eurocode 3
Části průřezu pro klasifikaci
Používá se v
  • Podélně vyztužené části stěn podle EN 1993-1-5, článku 4.5
Sdílet
30.5.2024
009121
  • SHAPE-THIN 8
  • Ocelové konstrukce
  • Analýza napětí
    • Posouzení stability
    • Eurocode 3
Výztuhy
Používá se v
  • Podélně vyztužené části stěn podle EN 1993-1-5, článku 4.5
Sdílet
30.5.2024
009122
  • SHAPE-THIN 8
  • Ocelové konstrukce
  • Analýza napětí
    • Posouzení stability
    • Eurocode 3
Panely
Používá se v
  • Podélně vyztužené části stěn podle EN 1993-1-5, článku 4.5
Sdílet
30.5.2024
009123
  • SHAPE-THIN 8
  • Ocelové konstrukce
  • Analýza napětí
    • Posouzení stability
    • Eurocode 3
Ergebnisse
Používá se v
  • Podélně vyztužené části stěn podle EN 1993-1-5, článku 4.5
Sdílet