Podélně vyztužené části stěn podle EN 1993-1-5, článku 4.5

Odborný článek

V programu SHAPE-THIN lze části stěn s podélnými výztuhami posoudit podle článku 4.5 normy EN 1993-1-5. U stěn s podélnými výztuhami se mají uvážit účinné plochy lokálního boulení různých subpanelů mezi výztuhami a účinné plochy celkového boulení vyztuženého panelu.

Nejdříve se má určit účinná průřezová plocha každého subpanelu zahrnující lokální boulení stěny pomocí součinitele boulení podle EN 1993-1-5 [1], článku 4.4. V druhém kroku se má posoudit vyztužená stěna s účinnými průřezy výztuh na celkové boulení při zohlednění prutového chování. Součinitelem celkového boulení se znovu redukují účinné šířky jednotlivých subpanelů. Dostaneme tak účinný průřez, který lze dále posuzovat jako průřez třídy 3.

Příklad

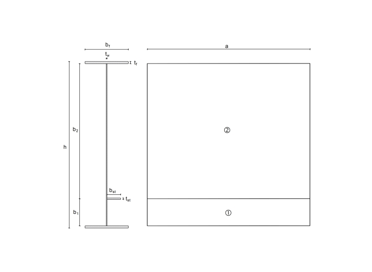
Následující příklad jsme převzali ze sborníku Stahlbau Kalender 2015 [2]. Průřez se skládá z I-nosníku, jehož stojina je vyztužena tuhými příčnými výztuhami a jednou podélnou výztuhou. Příčné výztuhy jsou umístěny ve vzdálenosti 3 m od sebe a podélná výztuha je přivařena 50 cm od dolní pásnice. Svary zanedbáme. Na průřez působí tlaková síla NEd = 4 000 kN.

Obr. 01 - Průřez

Materiál:
S355 J0
fy = 35,5 kN/cm² pro t ≤ 3 mm a t ≤ 16 mm)
fy = 34,5 kN/cm² (pro t > 16 mm a t ≤ 40 mm)
E = 21 000 kN/cm²
G = 8 076,92 kN/cm²
γM0 = 1,0

a = 3 000 mm
b1 = 500 mm
b2 = 2 500 mm
bf = 800 mm
bst = 250 mm
tw = 15 mm
tf = 40 mm
tst = 25 mm
h = 3 080 mm

Plný průřez a rozdělení napětí

Napětí se vypočítá následovně:

${\mathrm\sigma}_1\;=\;{\mathrm\sigma}_\mathrm{sl}\;=\;{\mathrm\sigma}_2\;=\;\frac{{\mathrm N}_\mathrm{Ed}}{\mathrm A}\;=\;\frac{4 000}{1 152,5}\;=\;3,47\;\mathrm{kN}/\mathrm{cm}²$

Plný průřez a rozdělení napětí jsou znázorněny na obr. 02.

Obr. 02 - Průběh napětí

Klasifikace průřezu

Při klasifikaci průřezu se ověřuje, zda je nezbytné posoudit jednotlivé subpanely na boulení. Jestliže subpanely spadají alespoň do třídy průřezu 3, není lokální boulení rozhodující.

Pásnice

$\begin{array}{l}{\mathrm c}_\mathrm f\;=\;\frac{{\mathrm b}_\mathrm f\;-\;{\mathrm t}_\mathrm w}2\;=\;\frac{800\;-\;15}2\;=\;392,5\;\mathrm{mm}\\\frac{\displaystyle{\mathrm c}_\mathrm f}{\displaystyle{\mathrm t}_\mathrm f}\;=\;\frac{\displaystyle392,5}{\displaystyle40}\;=\;9,8\end{array}$

Maximální c/t-poměr λi se stanoví podle EN 1993-1-1 [3], tabulky 5.2.

$\begin{array}{l}\mathrm\varepsilon\;=\;\sqrt{235\;/\;{\mathrm f}_\mathrm y}\;=\;\sqrt{235\;/\;345}\;=\;0,825\\{\mathrm\lambda}_1\;=\;9\;\cdot\;\mathrm\varepsilon\;=\;9\;\cdot\;0,825\;=\;7,4\;<\;\frac{{\mathrm c}_\mathrm f}{{\mathrm t}_\mathrm f}\;=\;9,8\\{\mathrm\lambda}_2\;=\;10\;\cdot\;\mathrm\varepsilon\;=\;10\;\cdot\;0,825\;=\;8,2\;<\;\frac{{\mathrm c}_\mathrm f}{{\mathrm t}_\mathrm f}\;=\;9,8\\{\mathrm\lambda}_3\;=\;14\;\cdot\;\mathrm\varepsilon\;=\;14\;\cdot\;0,825\;=\;11,6\;>\;\frac{{\mathrm c}_\mathrm f}{{\mathrm t}_\mathrm f}\;=\;9,8\end{array}$

Pásnici je třeba zařadit do třídy průřezu 3. Lokální boulení tak není rozhodující, a není tudíž nutné redukovat subpanely pásnice.

Stojina

$\begin{array}{l}{\mathrm c}_1\;=\;{\mathrm b}_1\;-\;\frac{{\mathrm t}_\mathrm{st}}2\;=\;500\;-\;\frac{25}2\;=\;487,5\;\mathrm{mm}\\\frac{\displaystyle{\mathrm c}_1}{\displaystyle{\mathrm t}_\mathrm w}\;=\;\frac{\displaystyle487,5}{\displaystyle15}\;=\;32,5\end{array}$

Maximální c/t-poměr λi se stanoví podle [3], tabulky 5.2.

$\begin{array}{l}\mathrm\varepsilon\;=\;\sqrt{235\;/\;{\mathrm f}_\mathrm y}\;=\;\sqrt{235\;/\;355}\;=\;0,814\\{\mathrm\lambda}_1\;=\;33\;\cdot\;\mathrm\varepsilon\;=\;33\;\cdot\;0,814\;=\;26,8\;<\;\frac{{\mathrm c}_1}{{\mathrm t}_\mathrm w}\;=\;32,5\\{\mathrm\lambda}_2\;=\;38\;\cdot\;\mathrm\varepsilon\;=\;38\;\cdot\;0,814\;=\;30,9\;<\;\frac{{\mathrm c}_1}{{\mathrm t}_\mathrm w}\;=\;32,5\\{\mathrm\lambda}_3\;=\;42\;\cdot\;\mathrm\varepsilon\;=\;42\;\cdot\;0,814\;=\;34,2\;>\;\frac{{\mathrm c}_1}{{\mathrm t}_\mathrm w}\;=\;32,5\end{array}$

Subpanel 1 se řadí do třídy průřezu 3. Lokální boulení tak není rozhodující, a není tudíž nutné redukovat tento subpanel.

$\begin{array}{l}{\mathrm c}_2\;=\;{\mathrm b}_2\;-\;\frac{{\mathrm t}_\mathrm{st}}2\;=\;2 500\;-\;\frac{25}2\;=\;2 487,5\;\mathrm{mm}\\\frac{\displaystyle{\mathrm c}_2}{\displaystyle{\mathrm t}_\mathrm w}\;=\;\frac{\displaystyle2 487,5}{\displaystyle15}\;=\;165,8\end{array}$

Maximální c/t-poměr λi se stanoví podle [3], tabulky 5.2.

$\begin{array}{l}\mathrm\varepsilon\;=\;\sqrt{235\;/\;{\mathrm f}_\mathrm y}\;=\;\sqrt{235\;/\;355}\;=\;0,814\\{\mathrm\lambda}_1\;=\;33\;\cdot\;\mathrm\varepsilon\;=\;33\;\cdot\;0,814\;=\;26,8\;<\;\frac{{\mathrm c}_2}{{\mathrm t}_\mathrm w}\;=\;165,8\\{\mathrm\lambda}_2\;=\;38\;\cdot\;\mathrm\varepsilon\;=\;38\;\cdot\;0,814\;=\;30,9\;<\;\frac{{\mathrm c}_2}{{\mathrm t}_\mathrm w}\;=\;165,8\\{\mathrm\lambda}_3\;=\;42\;\cdot\;\mathrm\varepsilon\;=\;42\;\cdot\;0,814\;=\;34,2\;<\;\frac{{\mathrm c}_2}{{\mathrm t}_\mathrm w}\;=\;165,8\end{array}$

Subpanel 2 se řadí do třídy průřezu 4. U tohoto subpanelu je tak lokální boulení rozhodující a je třeba ho redukovat.

Výztuha

$\begin{array}{l}{\mathrm b}_\mathrm{st}\;=\;250\;\mathrm{mm}\\\frac{\displaystyle{\mathrm b}_\mathrm{st}}{\displaystyle{\mathrm t}_\mathrm{st}}\;=\;\frac{\displaystyle250}{\displaystyle25}\;=\;10\end{array}$

Maximální c/t-poměr λi se stanoví podle [3], tabulky 5.2.

$\begin{array}{l}\mathrm\varepsilon\;=\;\sqrt{235\;/\;{\mathrm f}_\mathrm y}\;=\;\sqrt{235\;/\;345}\;=\;0,825\\{\mathrm\lambda}_1\;=\;9\;\cdot\;\mathrm\varepsilon\;=\;9\;\cdot\;0,825\;=\;7,4\;<\;\frac{\displaystyle{\mathrm b}_\mathrm{st}}{\displaystyle{\mathrm t}_\mathrm{st}}\;=\;10\\{\mathrm\lambda}_2\;=\;10\;\cdot\;\mathrm\varepsilon\;=\;10\;\cdot\;0,825\;=\;8,2\;<\;\frac{\displaystyle{\mathrm b}_\mathrm{st}}{\displaystyle{\mathrm t}_\mathrm{st}}\;=\;10\\{\mathrm\lambda}_3\;=\;14\cdot\;\mathrm\varepsilon\;=\;14\;\cdot0,825\;=\;11,6\;>\;\frac{\displaystyle{\mathrm b}_\mathrm{st}}{\displaystyle{\mathrm t}_\mathrm{st}}\;=\;10\end{array}$

Stojina se řadí do třídy průřezu 3. Lokální boulení tak není rozhodující, a není tudíž nutné redukovat tento subpanel.

Účinné šířky

Subpanel 1 se řadí do třídy průřezu 3, takže lokální boulení není rozhodující. Účinné průřezové hodnoty tak odpovídají parametrům plného průřezu. Podle [1], tabulky 4.1 jsou účinné šířky následující:

$\begin{array}{l}{\mathrm b}_{1,\mathrm{eff}}\;=\;{\mathrm c}_1\;=\;487,5\;\mathrm{mm}\\{\mathrm b}_{1,\mathrm{edge},\mathrm{eff}}\;=\;{\mathrm b}_{1,\mathrm{edge}}\;=\;0,5\;\cdot\;{\mathrm c}_1\;=\;0,5\;\cdot\;487,5\;=\;243,8\;\mathrm{mm}\\{\mathrm b}_{1,\inf,\mathrm{eff}}\;=\;{\mathrm b}_{1,\inf}\;=\;0,5\;\cdot\;{\mathrm c}_1\;=\;0,5\;\cdot\;487,5\;=\;243,8\;\mathrm{mm}\end{array}$

Subpanel 2 je zařazen do třídy průřezu 4, a lokální boulení je tak rozhodující. Účinné šířky subpanelu 2 se tak mají stanovit podle [1], článku 4.4.

Napětí v subpanelu 2 má konstantní průběh. Poměr napětí je tak ψ = 1 a součinitel kritického napětí kσ= 4,0 podle tabulky 4.1. Poměrná štíhlost ${\overline{\mathrm\lambda}}_{\mathrm p2}$ se tak podle [1], článku 4.4(2) stanoví následovně:

${\overline{\mathrm\lambda}}_{\mathrm p2}\;=\;\frac{\displaystyle\frac{{\mathrm c}_2}{{\mathrm t}_\mathrm w}}{28,4\;\cdot\;\mathrm\varepsilon\;\cdot\;\sqrt{{\mathrm k}_\mathrm\sigma}}\;=\;\frac{165,8}{28,4\;\cdot\;0,814\;\cdot\;\sqrt4}\;=\;3,588$$>\;0,5\;+\;\sqrt{0,085\;-\;0,055\;\cdot\;\mathrm\psi}$
 $>\;0,5\;+\;\sqrt{0,085\;-\;0,055\;\cdot\;1}\;=\;0,673$

Lokální součinitel boulení ρ se stanoví podle [1] pomocí rovnice (4.2):

${\mathrm\rho}_2\;=\;\frac{{\overline{\mathrm\lambda}}_{\mathrm p2}\;-\;0,055\;\cdot\;\left(3\;+\;\mathrm\psi\right)}{\overline{\mathrm\lambda}_{\mathrm p2}^2}\;=\;\frac{3,588\;-\;0,055\;\cdot\;\left(3\;+\;1\right)}{3,588^2}\;=\;0,262\;<\;1$

Účinné šířky subpanelu 2 se s uvážením lokálního boulení stanoví podle [1], tabulky 4.1:

$\begin{array}{l}{\mathrm b}_{2,\mathrm{eff}}\;=\;{\mathrm\rho}_2\;\cdot\;{\mathrm c}_2\;=\;0,262\;\cdot\;2 487,5\;=\;650,7\;\mathrm{mm}\\{\mathrm b}_{2,\mathrm{edge},\mathrm{eff}}\;=\;0,5\;\cdot\;{\mathrm b}_{2,\mathrm{eff}}\;=\;0,5\;\cdot\;650,7\;=\;325,4\;\mathrm{mm}\\{\mathrm b}_{2,\sup,\mathrm{eff}}\;=\;0,5\;\cdot\;{\mathrm b}_{2,\mathrm{eff}}\;=\;0,5\;\cdot\;650,7\;=\;325,4\;\mathrm{mm}\end{array}$

Šířky plného průřezu se určí následovně:

$\begin{array}{l}{\mathrm b}_{2,\mathrm{edge}}\;=\;0,5\;\cdot\;{\mathrm c}_2\;=\;0,5\;\cdot\;2 487,5\;=\;1 243,8\;\mathrm{mm}\\{\mathrm b}_{2,\sup}\;=\;0,5\;\cdot\;{\mathrm c}_2\;=\;0,5\;\cdot\;2 487,5\;=\;1 243,8\;\mathrm{mm}\end{array}$

Stěnové chování

Pružné kritické napětí výztuhy σcr,sl se vypočítá podle [1], přílohy A.2.2. Nejdříve je třeba stanovit vzpěrnou délku výztuhy ac:

${\mathrm a}_\mathrm c\;=\;4,33\;\cdot\;\sqrt[4]{\frac{{\mathrm I}_{\mathrm{sl},1}\;\cdot\;\mathrm b_1^2\;\cdot\;\mathrm b_2^2}{\mathrm t^3\;\cdot\;\mathrm b}}\;=\;4,33\;\cdot\;\sqrt[4]{\frac{11 900\;\cdot\;50^2\;\cdot\;250^2}{1,5^3\;\cdot\;\left(50\;+\;250\right)}}\;=\;896,4\;\mathrm{cm}\;>\;\mathrm a\;=\;300\;\mathrm{cm}$

Pružné kritické napětí výztuhy σcr,sl je v případě a < ac:

$\begin{array}{l}{\mathrm\sigma}_{\mathrm{cr},\mathrm{sl}}\;=\;\frac{\mathrm\pi^2\;\cdot\;\mathrm E\;\cdot\;{\mathrm I}_{\mathrm{sl},1}}{{\mathrm A}_{\mathrm{sl},1}\;\cdot\;\mathrm a^2}\;+\;\frac{\mathrm E\;\cdot\;\mathrm t^3\;\cdot\;\mathrm b\;\cdot\;\mathrm a^2}{4\;\cdot\;\mathrm\pi^2\;\cdot\;\left(1\;-\;\mathrm\nu^2\right)\;\cdot\;{\mathrm A}_{\mathrm{sl},1}\;\cdot\;\mathrm b_1^2\;\cdot\;\mathrm b_2^2}\;\mathrm{pro}\;\mathrm a\;<\;{\mathrm a}_\mathrm c\\{\mathrm\sigma}_{\mathrm{cr},\mathrm{sl}}\;=\;\frac{\mathrm\pi^2\;\cdot\;21 000\;\cdot\;11 900}{289,4\;\cdot\;300^2}+\frac{21 000\;\cdot\;1,5^3\;\cdot\;\left(50\;+\;250\right)\;\cdot\;300^2}{4\;\cdot\;\mathrm\pi^2\;\cdot\;\left(1\;-\;0,3^2\right)\;\cdot\;289,4\;\cdot\;50^2\;\cdot\;250^2}\;=\;95,9\;\mathrm{kN}/\mathrm{cm}^2\end{array}$

Přitom Isl,1 a Asl,1 udávají moment setrvačnosti plného průřezu a plochu plného průřezu výztuhy s přilehlými částmi stěny podle [1], A.2.1(2) pro ohyb z roviny stěny a b1 a b2 představují vzdálenost výztuh k podélným okrajům (b1 + b2 = b).

Průběh napětí je konstantní. Pružné kritické napětí stěny σcr,p tak odpovídá pružnému kritickému prutovému napětí σcr,sl.

${\mathrm\sigma}_{\mathrm{cr},\mathrm p}\;=\;{\mathrm\sigma}_{\mathrm{cr},\mathrm{sl}}\;=\;95,9\;\mathrm{kN}/\mathrm{cm}^2$

Obr. 03 - Plný průřez výztuhy s přilehlými částmi stěny

Plná plocha Ac tlačené zóny vyztužené stěny bez subpanelů podepřených sousední stěnou a účinná plocha Ac,eff,loc,p stejné části stěny se vypočítají následovně:

${\mathrm A}_\mathrm c\;=\;\left({\mathrm b}_{1,\inf}\;+\;{\mathrm b}_{2,\sup}\;+\;{\mathrm t}_\mathrm{st}\right)\;\cdot\;{\mathrm t}_\mathrm w\;+\;{\mathrm b}_\mathrm{st}\;\cdot\;{\mathrm t}_\mathrm{st}\;=\;\left(24,38\;+\;124,38\;+\;2,5\right)\;\cdot\;1,5\;+\;25\;\cdot\;2,5\;=\;289,4\;\mathrm{cm}^2$

Výztuha patří do třídy průřezu 3, a tak účinná průřezová plocha výztuhy odpovídá ploše plného průřezu výztuhy.

${\mathrm A}_{\mathrm c,\mathrm{eff},\mathrm{loc},\mathrm p}\;=\;\left({\mathrm b}_{1,\inf,\mathrm{eff}}\;+\;{\mathrm b}_{2,\sup,\mathrm{eff}}\;+\;{\mathrm t}_\mathrm{st}\right)\;\cdot\;{\mathrm t}_\mathrm w\;+\;{\mathrm b}_{\mathrm{st},\mathrm{eff}}\;\cdot\;{\mathrm t}_\mathrm{st}\;=\;\left(24,38\;+\;32,54\;+\;2,5\right)\;\cdot\;1,5\;+\;25\;\cdot\;2,5\;=\;151,6\;\mathrm{cm}^2$

Průřezové hodnoty jsou znázorněny na obr. 04.

Obr. 04 - Plný a účinný průřez lokálního boulení

Součinitel βa,c,p se stanoví podle [1], článku 4.5.2:

$\begin{array}{l}{\mathrm\beta}_{\mathrm a,\mathrm c,\mathrm p}\;=\;\frac{{\mathrm A}_{\mathrm c,\mathrm{eff},\mathrm{loc},\mathrm p}}{{\mathrm A}_\mathrm c}\\{\mathrm\beta}_{\mathrm a,\mathrm c,\mathrm p}\;=\;\frac{151,6}{289,4}\;=\;0,524\end{array}$

Globální poměrná štíhlost ${\overline{\mathrm\lambda}}_\mathrm p$ vyztužené stěny se vypočítá podle [1] pomocí rovnice (4.7):

${\overline{\mathrm\lambda}}_\mathrm p\;=\;\sqrt{\frac{{\mathrm\beta}_{\mathrm a,\mathrm c,\mathrm p}\;\cdot\;{\mathrm f}_\mathrm y}{{\mathrm\sigma}_{\mathrm{cr},\mathrm p}}}=\sqrt{\frac{0,524\;\cdot\;35,5}{95,9}}\;=\;0,440$$<\;0,5\;+\;\sqrt{0,085\;-\;0,055\;\cdot\;\mathrm\psi}$
 $<\;0,5\;+\;\sqrt{0,085\;-\;0,055\;\cdot\;1}\;=\;0,673$

Poměrná štíhlost ${\overline{\mathrm\lambda}}_\mathrm p$ je menší než mezní hodnota 0,673 podle [1], 4.4(2). Žádná redukce v důsledku stěnového chování tak není nutná, to znamená ρp = 1,0.

Prutové chování

Pružné kritické prutové napětí σcr,c se počítá podle [1], článku 4.5.3(3). Nejdříve se přitom spočítá podle [1], rovnice (4.9) pružné kritické prutové napětí σcr,c,sl pro výztuhu nejblíže okraji panelu s největším tlakovým napětím:

${\mathrm\sigma}_{\mathrm{cr},\mathrm c,\mathrm{sl}}\;=\;\frac{\mathrm\pi^2\;\cdot\;\mathrm E\;\cdot\;{\mathrm I}_\mathrm{sl}}{{\mathrm A}_\mathrm{sl}\;\cdot\;\mathrm a^2}\;=\;\frac{\mathrm\pi^2\;\cdot\;21 000\;\cdot\;11 900}{289,4\;\cdot\;300^2}\;=\;94,7\;\mathrm{kN}/\mathrm{cm}^2$

Průběh napětí je konstantní. Pružné kritické prutové napětí σcr,c tak odpovídá pružnému kritickému napětí σcr,c,sl výztuhy nejblíže kraji s největším tlakovým napětím:

σcr,c = σcr,c,sl = 94,7 kN/cm²

Součinitel βa,c,c se stanoví podle [1], článku 4.5.3(4):

${\mathrm\beta}_{\mathrm a,\mathrm c,\mathrm c}\;=\;\frac{{\mathrm A}_{\mathrm{sl},\mathrm{eff}}}{{\mathrm A}_\mathrm{sl}}\;=\;\frac{151,6}{289,4}\;=\;0,524$

Poměrná prutová štíhlost ${\overline{\mathrm\lambda}}_\mathrm c$ se určí podle [1] pomocí rovnice (4.11):

${\overline{\mathrm\lambda}}_\mathrm c\;=\;\sqrt{\frac{{\mathrm\beta}_{\mathrm a,\mathrm c,\mathrm c}\;\cdot\;{\mathrm f}_\mathrm y}{{\mathrm\sigma}_{\mathrm{cr},\mathrm c}}}\;=\;\sqrt{\frac{0,524\;\cdot\;35,5}{94,7}}\;=\;0,443$

Podle [1], článku 4.5.3(5) se poloměr setrvačnosti i stanoví následovně:

$\mathrm i\;=\;\sqrt{\frac{{\mathrm I}_\mathrm{sl}}{{\mathrm A}_\mathrm{sl}}}\;=\;\sqrt{\frac{11 900}{289,4}}\;=\;6,41\;\mathrm{cm}$

Vzdálenost e je podle [1], obrázku A.1 max (e1, e2), to znamená větší ze vzdáleností příslušných těžišť stěny nebo jednostranné výztuhy (nebo těžišť obou výztuh, jsou-li na obou stranách) od neutrální osy účinného prutu. Vzdálenosti jsou znázorněny na obrázku 05.

Obr. 05 - Výztuha a přilehlé části stěn: vzdálenosti e1, e2

e = max (e1, e2) = max (10,39 cm, 2,86 cm) = 10,39 cm

Součinitel imperfekce αe se stanoví podle [1], rovnice (4.12) v případě α = 0,49 pro výztuhy otevřeného průřezu:

${\mathrm\alpha}_\mathrm e\;=\;\mathrm\alpha\;+\;\frac{0,09}{\mathrm i\;/\;\mathrm e}\;=\;0,49\;+\;\frac{0,09}{6,41\;/\;10,39}\;=\;0,636$

Součinitel vzpěrnosti χc se určí podle [3], článku 6.3.1.2:

$\begin{array}{l}\mathrm\phi\;=\;0,5\;\cdot\;\left(1,0\;+\;{\mathrm\alpha}_\mathrm e\;\cdot\;\left({\overline{\mathrm\lambda}}_\mathrm c\;-\;0,2\right)\;+\;\overline{\mathrm\lambda}_\mathrm c^2\right)\;=\;0,5\;\cdot\;\left(1,0\;+\;0,636\;\cdot\;\left(0,443\;-\;0,2\right)\;+\;0,443^2\right)\;=\;0,675\\{\mathrm\chi}_\mathrm c\;=\;\frac1{\mathrm\phi\;+\;\sqrt{\mathrm\phi^2\;-\;\overline{\mathrm\lambda}_\mathrm c^2}}\;=\;\frac1{0,675\;+\;\sqrt{0,675^2\;-\;0,443^2}}\;=\;0,844\;<\;1\end{array}$

Interakce mezi stěnovým a prutovým chováním

Chování celé stěny při zatížení se určí pomocí součinitele ξ podle [1], článku 4.5.4(1):

$\begin{array}{l}\mathrm\xi\;=\;\frac{{\mathrm\sigma}_{\mathrm{cr},\mathrm p}}{{\mathrm\sigma}_{\mathrm{cr},\mathrm c}}\;-\;1\;\mathrm{ovšem}\;0\;\leq\;\mathrm\xi\;\leq\;1\\\mathrm\xi\;=\;\frac{95,9}{94,7}\;-\;1\;=\;0,013\end{array}$

Výsledný součinitel boulení ρc se stanoví podle [1] pomocí interakční rovnice (4.13):

${\mathrm\rho}_\mathrm c\;=\;({\mathrm\rho}_\mathrm p\;-\;{\mathrm\chi}_\mathrm c)\;\cdot\;\mathrm\xi\;\cdot\;(2\;-\;\mathrm\xi)\;+\;{\mathrm\chi}_\mathrm c\;=\;\left(1\;-\;0,844\right)\;\cdot\;0,013\;\cdot\;\left(2\;-\;0,013\right)\;+\;0,844\;=\;0,848$

Účinné průřezové parametry

Účinná plocha tlačené zóny Ac,eff vyztužené stěny se má určit podle [1] pomocí rovnice (4.5):

${\mathrm A}_{\mathrm c,\mathrm{eff}}\;=\;{\mathrm\rho}_\mathrm c\;\cdot\;{\mathrm A}_{\mathrm c,\mathrm{eff},\mathrm{loc},\mathrm p}\;+\;{\textstyle\sum}{\mathrm b}_{\mathrm{edge},\mathrm{eff}}\;\cdot\;\mathrm t\;=\;0,848\;\cdot\;151,6\;+\;24,38\;\cdot\;1,5\;+\;32,54\;\cdot\;1,5\;=\;214,1\;\mathrm{cm}²$

Účinná průřezová plocha Aeff se stanoví následovně:

${\mathrm A}_\mathrm{eff}\;=\;{\mathrm A}_{\mathrm c,\mathrm{eff}}\;+\;2\;\cdot\;{\mathrm b}_\mathrm f\;\cdot\;{\mathrm t}_\mathrm f\;=\;214,1\;+\;2\;\cdot\;80\;\cdot\;4\;=\;854,1\;\mathrm{cm}²$

Obr. 06 - Účinný průřez lokálního a globálního boulení

Posouzení vyztužené stěny

Těžišťové osy plného a účinného průřezu se neshodují, a proto je třeba zohlednit přídavné ohybové momenty vlivem posunu těžišťové osy účinného průřezu vzhledem k těžišťové ose plného průřezu. Tyto přídavné ohybové momenty se vypočítají následovně:

$\begin{array}{l}{\mathrm e}_\mathrm y\;=\;0,82\;-\;0,72\;=\;0,10\;\mathrm{cm}\\{\mathrm e}_\mathrm z\;=\;164,97\;-\;157,42\;=\;7,55\;\mathrm{cm}\\{\mathrm M}_\mathrm y\;=\;\mathrm N\;\cdot\;{\mathrm e}_\mathrm z\;=\;\:4 000\;\cdot\;7,55\;=\;30 202,4\;\mathrm{kNcm}\\{\mathrm M}_\mathrm z\;=\;\mathrm N\;\cdot\;{\mathrm e}_\mathrm y\;=\;-4 000\;\cdot\;0,10\;=\;-414,3\;\mathrm{kNcm}\\{\mathrm M}_\mathrm u\;=\;30 203,7\;\mathrm{KNcm}\\{\mathrm M}_\mathrm v\;=\;-306,4\;\mathrm{KNcm}\end{array}$

Maximální napětí je pak:

${\mathrm\sigma}_\mathrm{eff}\;=\;\frac{\mathrm N}{{\mathrm A}_\mathrm{eff}}\;+\;\frac{{\mathrm M}_\mathrm u\;\cdot\;{\mathrm e}_\mathrm v}{{\mathrm I}_{\mathrm u,\mathrm{eff}}}\;-\;\frac{{\mathrm M}_\mathrm v\;\cdot\;{\mathrm e}_\mathrm u}{{\mathrm I}_{\mathrm v,\mathrm{eff}}}\;=\;\frac{4 000}{854,1}\;+\;\frac{30 203,7\;\cdot\;165,12}{17 466.764}\;-\;\frac{-306,4\;\cdot\;40,23}{352 626}\;=\;5,01\;\mathrm{kN}/\mathrm{cm}²$

Posouzení se provádí podle [1] pomocí rovnice (4.15):

${\mathrm\eta}_1\;=\;\frac{{\mathrm\sigma}_\mathrm{eff}}{\displaystyle\frac{{\mathrm f}_\mathrm y}{{\mathrm\gamma}_{\mathrm M0}}}\;=\;\frac{5,01}{\displaystyle\frac{34,5}{1,0}}\;=\;0,15$

Posouzení na vybočení zkroucením

Podle [1], článku 9.2.1(8) se má zpravidla splnit následující kritérium pro zabránění vybočení výztuh s otevřeným průřezem zkroucením:

$\begin{array}{l}{\mathrm\eta}_1\;=\;\frac{5,3\;\cdot\;{\mathrm f}_\mathrm y\;\cdot\;{\mathrm I}_\mathrm p}{\mathrm E\;\cdot\;{\mathrm I}_{\mathrm{St}.\;\mathrm{Ven}}}\;\leq\;1\\{\mathrm\eta}_1\;=\;\frac{5,3\;\cdot\;34,5\;\cdot\;13 053}{21 000\;\cdot\;122}\;=\;0,93\;\leq\;1\end{array}$

Přitom Ip je polární moment setrvačnosti samotné výztuhy a ISt.Ven je St. Venantův moment v prostém kroucení pro samotnou výztuhu (bez stěny) k okraji připojenému ke stěně.

Uvažuje-li se deplanační tuhost výztuh, je třeba nejdříve spočítat pružné kritické napětí pro vybočení zkroucením σcr. Počítá se podle [4] pomocí rovnice (2.119), respektive rovnice (2.120) následovně:

$\begin{array}{l}{\mathrm\sigma}_{\mathrm{cr}1}\;=\;\frac1{{\mathrm I}_\mathrm p}\;\cdot\;\left(\frac{\mathrm\pi^2\;\cdot\;\mathrm E\;\cdot\;{\mathrm I}_\mathrm\omega}{\mathrm l^2}\;+\;\mathrm G\;\cdot\;{\mathrm I}_{\mathrm{St}.\;\;\mathrm{Ven}}\right)\;\mathrm{pro}\;\mathrm l\;<\;\mathrm L\;_\mathrm{cr}\\{\mathrm\sigma}_{\mathrm{cr}2}\;=\;\frac1{{\mathrm I}_\mathrm p}\;\cdot\;\left(2\;\cdot\;\sqrt{{\mathrm C}_\mathrm\theta\;\cdot\;\mathrm E\;\cdot\;{\mathrm I}_\mathrm\omega}\;+\;\mathrm G\;\cdot\;{\mathrm I}_{\mathrm{St}.\;\;\mathrm{Ven}}\right)\;\mathrm{pro}\;\mathrm l\;>\;{\mathrm L}_\mathrm{cr}\end{array}$

Výztuha má výsečový moment setrvačnosti Iω = 0 cm6. Pružné kritické napětí pro vybočení zkroucením σcr se tak zjednoduší:

$\begin{array}{l}{\mathrm\sigma}_{\mathrm{cr}1}\;=\;{\mathrm\sigma}_{\mathrm{cr}2}\;=\;\frac1{{\mathrm I}_\mathrm p}\;\cdot\;\mathrm G\;\cdot\;{\mathrm I}_{\mathrm{St}.\;\;\mathrm{Ven}}\\{\mathrm\sigma}_{\mathrm{cr}1}\;=\;{\mathrm\sigma}_{\mathrm{cr}2}\;=\;\frac1{13 053}\;\cdot\;8 077\;\cdot\;122\;=\;75,5\;\mathrm{kN}/\mathrm{cm}²\end{array}$

Přitom Ip je polární moment setrvačnosti samotné výztuhy a ISt.Ven je St. Venantův moment v prostém kroucení pro samotnou výztuhu (bez stěny) k okraji připojenému ke stěně.

Podle [1], článku 9.2.1(9) je třeba zpravidla splnit kritérium 9.2.1(8) nebo níže uvedené kritérium, pokud se uvažuje deplanační tuhost výztuh:

$\begin{array}{l}{\mathrm\eta}_2\;=\;\frac{\mathrm\theta\;\cdot\;{\mathrm f}_\mathrm y}{{\mathrm\sigma}_{\mathrm{cr}1}}\;\leq\;1\\{\mathrm\eta}_3\;=\;\frac{\mathrm\theta\;\cdot\;{\mathrm f}_\mathrm y}{{\mathrm\sigma}_{\mathrm{cr}2}}\;\leq\;1\end{array}$

Při zohlednění součinitele zajišťujícího chování podle 3. třídy, který je podle [5] θ = 2 v případě výztuh s malou deplanační tuhostí (například plochá nebo hlavičková ocel), dospějeme k následujícímu výsledku:

${\mathrm\eta}_2\;=\;{\mathrm\eta}_3\;=\;\frac{2\;\cdot\;34,5}{75,5}\;=\;0,91\;\leq\;1$

Posouzení spolehlivosti proti vybočení zkroucením je tak splněno.

SHAPE-THIN

Výpočet stěn s podélnými výztuhami podle [1], článku 4.5 lze provést v programu SHAPE-THIN. V základních údajích je k tomu třeba označit políčko „c/t-části a účinné průřezové charakteristiky“. Následně musíme v parametrech výpočtu označit volbu „EN 1993-1-1 a EN 1993-1-5“ a dále „Spočítat účinný průřez podle části 4.5 Vyztužené části stěn s podélnými výztuhami“. Výpočet účinných šířek by měl probíhat iterativně podle [1], článku 4.4(3). Příklad jsme spočítali v jediné iteraci, a proto také v programu SHAPE-THIN nastavíme pouze jednu iteraci (viz obr. 07).

Obr. 07 - Parametry výpočtu

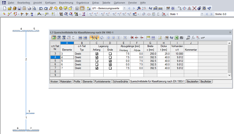
Nejdříve je třeba zadat prvky průřezu. c/t-části se zpravidla vytvoří automaticky na základě geometrických podmínek, uživatel je ovšem může také definovat v tabulce „1.7 Části průřezu pro klasifikaci podle EN 1993-1“ (viz obr. 08) anebo v příslušném dialogu.

Obr. 08 - Části průřezu pro klasifikaci

Výztuhy lze pak zadat v tabulce „1.8 Výztuhy“, případně v příslušném dialogu (viz obr. 09).

Obr. 09 - Výztuhy

Dále je třeba zadat stěnu v tabulce „1.9 Vyztužené panely“ (viz obr. 10) anebo v příslušném dialogu. K tomu je třeba zadat prvky vyztuženého panelu a vzdálenost mezi příčnými výztuhami a. Pokud žádnou vzdálenost mezi příčnými výztuhami nezadáme, pak se bude při výpočtu uvažovat hodnota a = 10 000 mm. Výztuhy v panelu se rozpoznají automaticky. Vyztužený panel musí být podepřen na svém počátku i konci, čili musíme zadat příslušné podepření.

Obr. 10 - Vyztužené panely

Výsledky účinného průřezu se nám zobrazí po kliknutí na tlačítko [Účinné šířky].

Obr. 11 - Výsledky

Klíčová slova

Boulení subpanelu Boulení vyztužené stěny

Literatura

[1]   Eurocode 3: Design of steel structures - Part 1-5: General rules - Plated structural elements; EN 1993-1-5:2006 + AC:2009
[2]   Kuhlmann, U.: Stahlbau-Kalender 2015 - Eurocode 3 - Grundnorm, Leichtbau. Berlin: Ernst & Sohn, 2015
[3]   ČSN EN 1993-1-1:2011-08. Eurokód 3: Navrhování ocelových konstrukcí - Část 1-1: Obecná pravidla a pravidla pro pozemní stavby. Český normalizační institut, Praha 2011.
[4]   Beg, D.; Kuhlmann, U.; Davaine, L.; Braun, B.: Design of Plated Structures. Eurocode 3: Design of Steel Structures. Part 1-5 Design of Plated Structures. Berlin: Ernst & Sohn, 2011
[5]   Johansson, B.; Maquoi, R.; Sedlacek, G.; Müller, C.; Beg, D.: Commentary and Worked Examples to EN 1993-1-5, Plated Structural Elements. Luxemburg: Office for Official Publications of the European Communities, 2007

Ke stažení

Odkazy

Průřezy Tenkostěnné
SHAPE-THIN 8.xx

Program pro průřezové charakteristiky

Průřezové charakteristiky a napětí tenkostěnných průřezů

Cena za první licenci
1 000,00 EUR
;