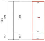
průběh napětí
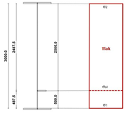
průběh napětí
30.5.2024
009114
  • SHAPE-THIN 8
  • Ocelové konstrukce
  • Analýza napětí
    • Posouzení stability
    • Eurocode 3

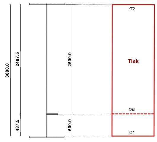
průběh napětí

Používá se v
  • Podélně vyztužené části stěn podle EN 1993-1-5, článku 4.5
Sdílet