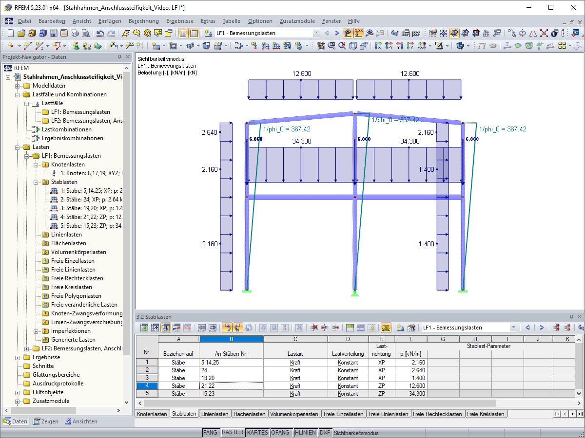
Návrhová zatížení a imperfekce pro statickou analýzu
Geometrie spojů
Berechung der elastischen Anfangssteifigkeit S,j,ini für den Anschluss des IPE 240
Berechung der elastischen Anfangssteifigkeit S,j,ini für den Anschluss des IPE 300
Definition der Parameter für die Stabendgelenke
Zuweisung des Parameters "S_j_ini_IPE240" zum Stabendgelenk 1
Průběh vnitřních sil M,y s poddajnými spoji
Nachweis der Verbindungen im System mit nachgiebigen Anschlüssen
Průběh vnitřních sil M,y s ohybově tuhými spoji
Nachweis der Verbindungen im System mit biegesteifen Anschlüssen
Návrhová zatížení a imperfekce pro statickou analýzu
Geometrie spojů
Berechung der elastischen Anfangssteifigkeit S,j,ini für den Anschluss des IPE 240
Berechung der elastischen Anfangssteifigkeit S,j,ini für den Anschluss des IPE 300
Definition der Parameter für die Stabendgelenke
Zuweisung des Parameters "S_j_ini_IPE240" zum Stabendgelenk 1
Průběh vnitřních sil M,y s poddajnými spoji
Nachweis der Verbindungen im System mit nachgiebigen Anschlüssen
Průběh vnitřních sil M,y s ohybově tuhými spoji
Nachweis der Verbindungen im System mit biegesteifen Anschlüssen
30.5.2024
011704
  • RFEM 5
  • RF-STEEL 5
  • RF-STEEL EC3 5
    • RF-STABILITY 5
    • RF-JOINTS Steel | Rigid 5
    • RSTAB 8
    • STEEL 8
    • STEEL EC3 8
    • RSBUCK 8
    • JOINTS Steel | Rigid 8
    • Ocelové konstrukce
    • Průmyslové konstrukce a zařízení
    • Statické konstrukce
    • Posouzení stability
    • Ocelové spoje
    • Eurocode 3

Návrhová zatížení a imperfekce pro statickou analýzu

Používá se v
  • Ocelový rám se zohledněním tuhosti spoje
Sdílet
30.5.2024
011705
  • RFEM 5
  • RF-STEEL 5
  • RF-STEEL EC3 5
    • RF-STABILITY 5
    • RF-JOINTS Steel | Rigid 5
    • RSTAB 8
    • STEEL 8
    • STEEL EC3 8
    • RSBUCK 8
    • JOINTS Steel | Rigid 8
    • Ocelové konstrukce
    • Průmyslové konstrukce a zařízení
    • Statické konstrukce
    • Posouzení stability
    • Ocelové spoje
    • Eurocode 3
Geometrie spojů
Používá se v
  • Ocelový rám se zohledněním tuhosti spoje
Sdílet
30.5.2024
011706
  • RFEM 5
  • RF-STEEL 5
  • RF-STEEL EC3 5
    • RF-STABILITY 5
    • RF-JOINTS Steel | Rigid 5
    • RSTAB 8
    • STEEL 8
    • STEEL EC3 8
    • RSBUCK 8
    • JOINTS Steel | Rigid 8
    • Ocelové konstrukce
    • Průmyslové konstrukce a zařízení
    • Statické konstrukce
    • Posouzení stability
    • Ocelové spoje
    • Eurocode 3
Berechung der elastischen Anfangssteifigkeit S,j,ini für den Anschluss des IPE 240
Používá se v
  • Ocelový rám se zohledněním tuhosti spoje
Sdílet
30.5.2024
011707
  • RFEM 5
  • RF-STEEL 5
  • RF-STEEL EC3 5
    • RF-STABILITY 5
    • RF-JOINTS Steel | Rigid 5
    • RSTAB 8
    • STEEL 8
    • STEEL EC3 8
    • RSBUCK 8
    • JOINTS Steel | Rigid 8
    • Ocelové konstrukce
    • Průmyslové konstrukce a zařízení
    • Statické konstrukce
    • Posouzení stability
    • Ocelové spoje
    • Eurocode 3
Berechung der elastischen Anfangssteifigkeit S,j,ini für den Anschluss des IPE 300
Používá se v
  • Ocelový rám se zohledněním tuhosti spoje
Sdílet
30.5.2024
011708
  • RFEM 5
  • RF-STEEL 5
  • RF-STEEL EC3 5
    • RF-STABILITY 5
    • RF-JOINTS Steel | Rigid 5
    • RSTAB 8
    • STEEL 8
    • STEEL EC3 8
    • RSBUCK 8
    • JOINTS Steel | Rigid 8
    • Ocelové konstrukce
    • Průmyslové konstrukce a zařízení
    • Statické konstrukce
    • Posouzení stability
    • Ocelové spoje
    • Eurocode 3
Definition der Parameter für die Stabendgelenke
Používá se v
  • Ocelový rám se zohledněním tuhosti spoje
Sdílet
30.5.2024
011709
  • RFEM 5
  • RF-STEEL 5
  • RF-STEEL EC3 5
    • RF-STABILITY 5
    • RF-JOINTS Steel | Rigid 5
    • RSTAB 8
    • STEEL 8
    • STEEL EC3 8
    • RSBUCK 8
    • JOINTS Steel | Rigid 8
    • Ocelové konstrukce
    • Průmyslové konstrukce a zařízení
    • Statické konstrukce
    • Posouzení stability
    • Ocelové spoje
    • Eurocode 3
Zuweisung des Parameters "S_j_ini_IPE240" zum Stabendgelenk 1
Používá se v
  • Ocelový rám se zohledněním tuhosti spoje
Sdílet
30.5.2024
011710
  • RFEM 5
  • RF-STEEL 5
  • RF-STEEL EC3 5
    • RF-STABILITY 5
    • RF-JOINTS Steel | Rigid 5
    • RSTAB 8
    • STEEL 8
    • STEEL EC3 8
    • RSBUCK 8
    • JOINTS Steel | Rigid 8
    • Ocelové konstrukce
    • Průmyslové konstrukce a zařízení
    • Statické konstrukce
    • Posouzení stability
    • Ocelové spoje
    • Eurocode 3
Průběh vnitřních sil M,y s poddajnými spoji
Používá se v
  • Ocelový rám se zohledněním tuhosti spoje
Sdílet
30.5.2024
011711
  • RFEM 5
  • RF-STEEL 5
  • RF-STEEL EC3 5
    • RF-STABILITY 5
    • RF-JOINTS Steel | Rigid 5
    • RSTAB 8
    • STEEL 8
    • STEEL EC3 8
    • RSBUCK 8
    • JOINTS Steel | Rigid 8
    • Ocelové konstrukce
    • Průmyslové konstrukce a zařízení
    • Statické konstrukce
    • Posouzení stability
    • Ocelové spoje
    • Eurocode 3
Nachweis der Verbindungen im System mit nachgiebigen Anschlüssen
Používá se v
  • Ocelový rám se zohledněním tuhosti spoje
Sdílet
30.5.2024
011712
  • RFEM 5
  • RF-STEEL 5
  • RF-STEEL EC3 5
    • RF-STABILITY 5
    • RF-JOINTS Steel | Rigid 5
    • RSTAB 8
    • STEEL 8
    • STEEL EC3 8
    • RSBUCK 8
    • JOINTS Steel | Rigid 8
    • Ocelové konstrukce
    • Průmyslové konstrukce a zařízení
    • Statické konstrukce
    • Posouzení stability
    • Ocelové spoje
    • Eurocode 3
Průběh vnitřních sil M,y s ohybově tuhými spoji
Používá se v
  • Ocelový rám se zohledněním tuhosti spoje
Sdílet
30.5.2024
013154
  • RFEM 5
  • RSTAB 8
Nachweis der Verbindungen im System mit biegesteifen Anschlüssen
Používá se v
  • Ocelový rám se zohledněním tuhosti spoje
Sdílet