8475x
001626
22.7.2020

Ocelový rám se zohledněním tuhosti spoje

V tomto příspěvku analyzujeme vliv tuhosti spoje na stanovení vnitřních sil a také posouzení spojů na příkladu dvoupodlažního ocelového rámu.

Model v tomto článku vychází z příkladu 5.5.3 v odborné literatuře [1]. Na příkladu dvoupodlažního ocelového rámu vysvětlujeme vliv tuhosti spoje na stanovení vnitřních sil a také posouzení spojů.

Zatěžování

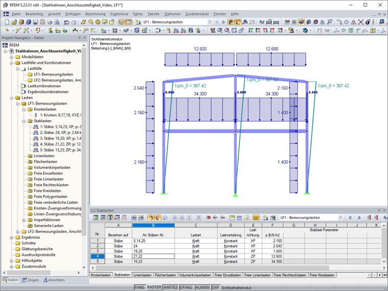
Zatížení od šířky posuvu 4 metry se použijí podle [1]. Nezohledníme pouze posun kloubů na koncích prutů o 0,1 m od osy sloupů. Globální počáteční sklony se vypočítají podle rovnice 5.5 v [2]:


kde:


takže

Geometrie spojů a momentově-rotační charakteristiky

Spoje příčlí v mezilehlém stropě i ve střeše jsou modelovány pomocí čelních desek s přesahem bez výztuh ve sloupech. Takové provedení přináší v daném případě ekonomické výhody.

Podle [1] je u deformovatelných spojů obvykle třeba zohlednit vliv momentově-rotačních charakteristik přípojů na průběh vnitřních sil v konstrukci. Metodou komponent, kterou upravuje norma EN 1993-1-8, lze pro spoje spočítat počáteční tuhost Sj,ini. K tomu lze využít přídavný modul RF-/JOINTS Steel - Rigid.


Rotační tuhost lze v modelu uvažovat zjednodušeně podle EN 1993-1-8, čl. 5.1.2 (4) pro rychlé úpravy v systému v případě změn pomocí parametrizace.

IPE 240: Sj,model = Sj,ini / η = 16,304 / 2 = 8,152 kNm/rad
IPE 300: Sj,model = Sj,ini / η = 26,372 / 2 = 13,186 kNm/rad


Vnitřní síly a posouzení spojů

Výsledkem stanovení prvního vlastního tvaru v rovině rámu pomocí přídavných modulů RSBUCK nebo RF-STABILITY je součinitel kritického zatížení acr 12,6. To umožňuje vypočítat vnitřní síly podle rovnice 5.1 v [2] podle lineární statické analýzy.

Z výpočtu zatěžovacího stavu s poddajně modelovanými klouby na koncích prutů vyplývají následující vnitřní síly.

Na základě těchto vnitřních sil se provede posouzení podle EN 1993-1-8 v přídavném modulu RF-/JOINTS Steel - Rigid.

Při výpočtu zatěžovacího stavu s ohybově tuhými klouby se stanoví následující vnitřní síly.

Při těchto vyšších vnitřních silách na spojích mezi příčlí a sloupem již posouzení spojů není možné.

Závěr a výhled

Zohlednění tuhosti spojů při statickém posouzení umožňuje spoje bez výztuh a rovněž homogenní využití příčlí u daného dvoupodlažního ocelového rámu ve skeletové konstrukci.


Odkazy
Reference
Stahování


;