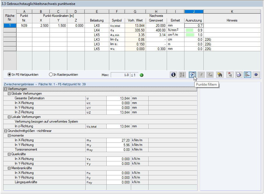
Okno "3.3 Posouzení použitelnosti po bodech"
Okno "3.3 Posouzení použitelnosti po bodech"
30.5.2024
017058
  • RF-CONCRETE 5
  • RF-CONCRETE Deflect 5
  • Betonové konstrukce
    • Statické konstrukce
    • Eurocode 2

Okno "3.3 Posouzení použitelnosti po bodech"

Používá se v
  • Modul pružnosti ze stavu II pro RF-CONCRETE Deflect
Sdílet