Hromadný tisk uživatelských pohledů
  • 3D prohlížeč
  • 3D prohlížeč | Babylon
  • Virtuální realita
Přepínání mezi pohledy
  • 3D prohlížeč
  • 3D prohlížeč | Babylon
  • Virtuální realita
Ocelová hala
  • 3D prohlížeč
  • 3D prohlížeč | Babylon
  • Virtuální realita
Hromadný tisk uživatelských pohledů
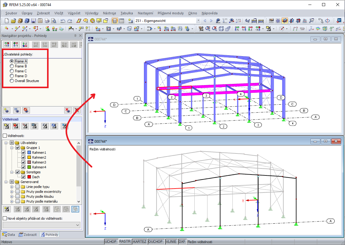
Přepínání mezi pohledy
Ocelová hala
30.5.2024
019920
  • RFEM 5
  • RSTAB 8

Hromadný tisk uživatelských pohledů

Používá se v
  • Uživatelské pohledy
3D model
Více o 3D modelu
  • Ocelová hala
Specifikace
Počet uzlů 56
Počet linií 95
Počet prutů 95
Počet zatěžovacích stavů 1
Celková hmotnost 10,486 t
Rozměry (metrické) 15,629 x 18,629 x 6,914 m
Rozměry (imperiální) 51.28 x 61.12 x 22.68 feet
Verze programu 5.23.02
Sdílet
30.5.2024
010371
  • RFEM 5
  • RSTAB 8
Přepínání mezi pohledy
Používá se v
  • Uživatelské pohledy
3D model
Více o 3D modelu
  • Ocelová hala
Specifikace
Počet uzlů 56
Počet linií 95
Počet prutů 95
Počet zatěžovacích stavů 1
Celková hmotnost 10,486 t
Rozměry (metrické) 15,629 x 18,629 x 6,914 m
Rozměry (imperiální) 51.28 x 61.12 x 22.68 feet
Verze programu 5.23.02
Sdílet
30.5.2024
019921
  • RFEM 5
Ocelová hala
Používá se v
  • Uživatelské pohledy
3D model
Více o 3D modelu
  • Ocelová hala
Specifikace
Počet uzlů 56
Počet linií 95
Počet prutů 95
Počet zatěžovacích stavů 1
Celková hmotnost 10,486 t
Rozměry (metrické) 15,629 x 18,629 x 6,914 m
Rozměry (imperiální) 51.28 x 61.12 x 22.68 feet
Verze programu 5.23.02
Sdílet