Nestabilní model
  • 3D prohlížeč
  • 3D prohlížeč | Babylon
  • Virtuální realita
Nestabilní model
30.5.2024
020789
  • RFEM 5

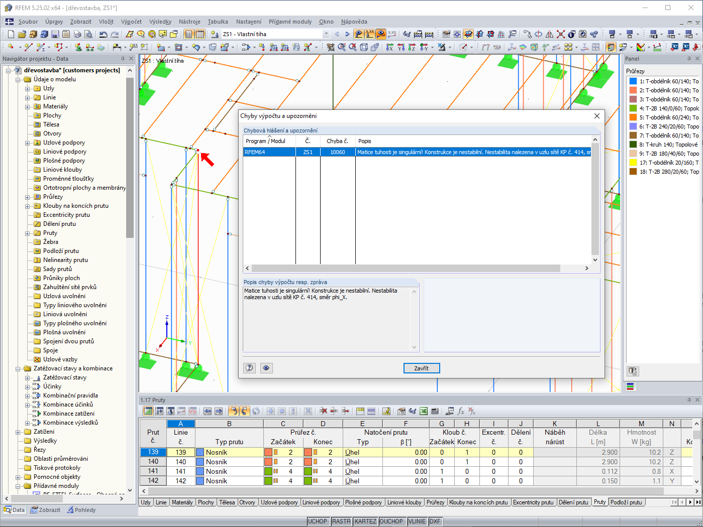
Model při výpočtu hlásí singularitu.

Nestabilní model

Používá se v
  • Nestabilní model
3D model
Více o 3D modelu
  • Dřevěný dům
Specifikace
Počet uzlů 1046
Počet prutů 1702
Počet zatěžovacích stavů 5
Počet kombinací výsledků 4
Celková hmotnost 16,015 t
Rozměry (metrické) 13,520 x 10,471 x 8,297 m
Rozměry (imperiální) 44.36 x 34.35 x 27.22 feet
Verze programu 8.24.02
Sdílet