1665x
005006
13.5.2021

Nestabilní model

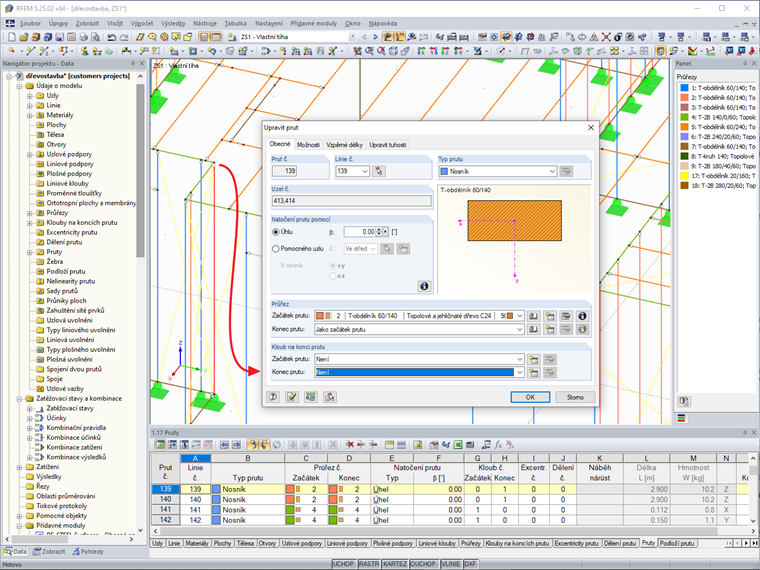
Mám vymodelovanou dřevostavbu, kterou jsem převzala ze Scia Engineer od bývalé kolegyně a upravila do programu RFEM. Modely by měly být stejné, ale ve Scia Engineer model lze spočítat, kdežto v RFEMu mi model hlásí singularitu. Jak mám model upravit, aby fungoval?


Odpověď:

Nestabilita je způsobená tím, že se do jednoho uzlu sbíhají pruty, které všechny mají na konci kloub. Tím se stane, že uzel se může volně otáčet. Je potřeba, aby alespoň jeden prut byl připojený do uzlu bez kloubu.

Dalo by se to také vyřešit tím, že se u kloubu nastaví určitá malá tuhost, aby nebyl volně otočný. Pak mohou zůstat u uzlu klouby na všech prutech.


Autor

Ing. Martinec se v české pobočce stará o zákaznický servis a studentské licence.



;