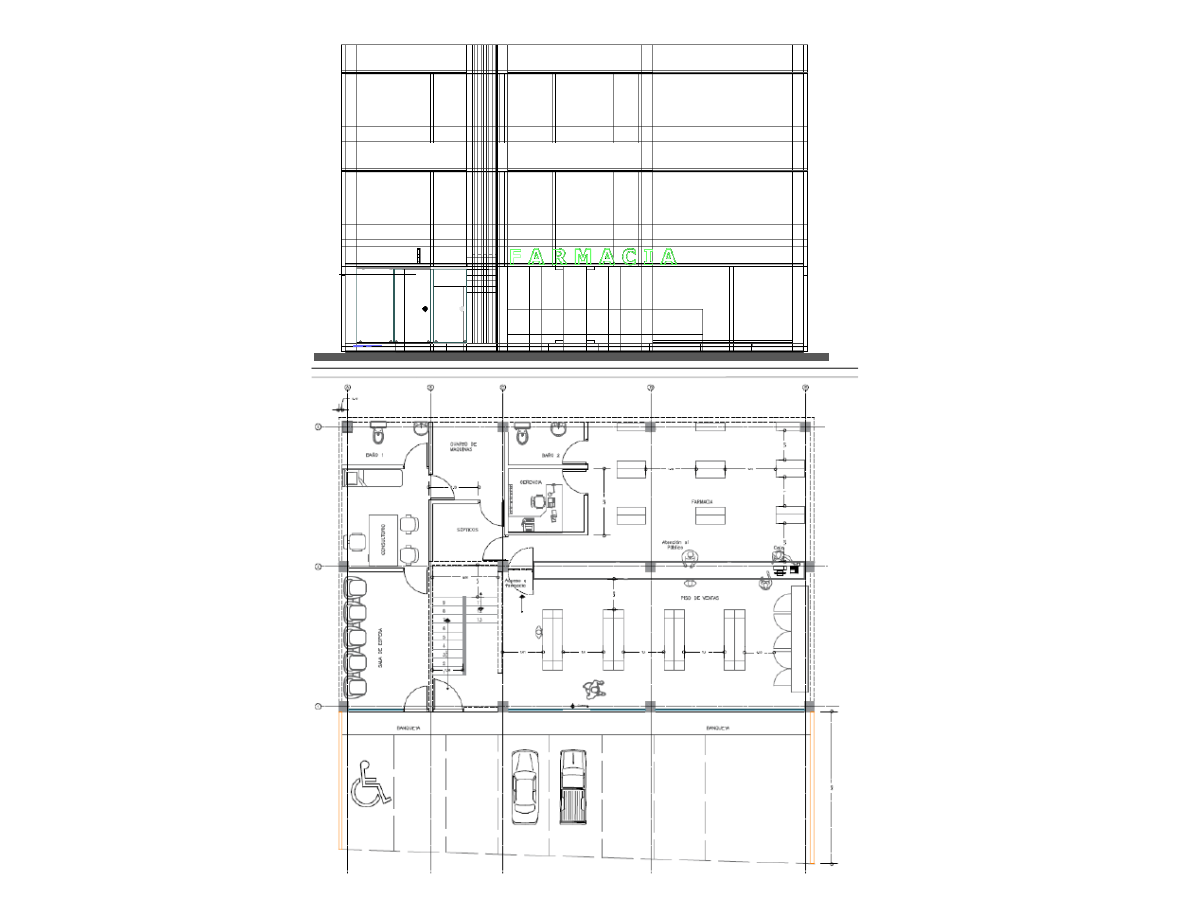
Půdorysný a výškový plán budovy (© SIE.istmo Servicio de Ingeniería Estructural)
Půdorysný a výškový plán budovy (© SIE.istmo Servicio de Ingeniería Estructural)
30.5.2024
026881
  • RFEM 5

Půdorysný a výškový plán budovy (© SIE.istmo Servicio de Ingeniería Estructural)

Používá se v
  • Lékárna a lékařské ordinace v El Espinal, Oaxaca, Mexiko
Sdílet