2043x
001226
17.12.2021

Lékárna a lékařské ordinace v El Espinal, Oaxaca, Mexiko

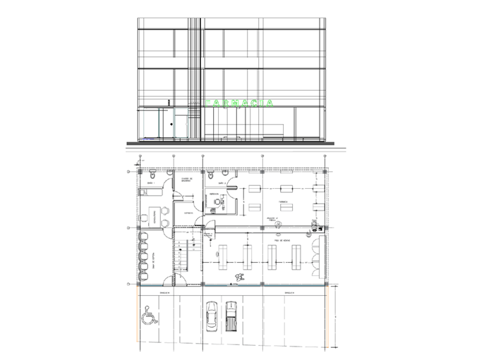
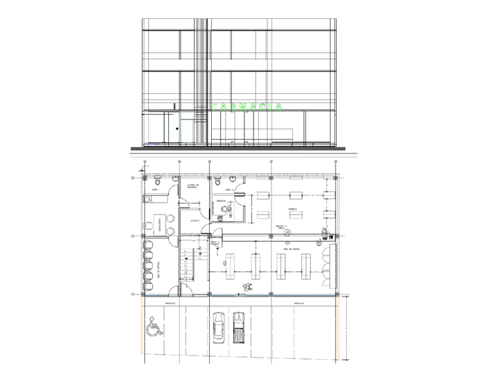
Budova se nachází na ulici Melchor Ocampo, Tercera Sección ve městě El Espinal, Oaxaca, Mexiko. Jedná se o budovu s lékárnou v přízemí a lékařskými ordinacemi ve vyšších podlažích s lehkými stavebními příčkami.

Celkový geometrický tvar je v půdorysu a po výšce obdélníkový.

Všechna podlaží jsou propojena kovovým schodištěm, které bylo přidáno po dokončení hlavního systému.

Jako materiál se použily železobeton a zdivo. Průřezy železobetonových prvků jsou čtvercové u sloupů a obdélníkové u nosníků; tloušťka železobetonových desek a zděných diafragmových stěn je konstantní.

Hlavní nosný systém, který přenáší kombinace zatížení, se skládá z tuhých rámů ze železobetonových nosníků a sloupů s případnými zděnými diafragmovými stěnami, které jsou založeny na železobetonových základových pásech.

Zatížení a jejich kombinace se počítaly se zohledněním účinků vodorovných zatížení, která se předpokládají v seizmické oblasti, v níž se konstrukce nachází.

Statická analýza v hlavním programu RFEM 5 a v přídavných modulech RF-DYNAM Pro, RF-CONCRETE Surfaces, RF-CONCRETE Members a RF-CONCRETE Columns prokázala, že konstrukční prvky nepřekračují mezní stavy únosnosti a použitelnosti, ani posun podlaží u kombinací zatížení včetně seizmických účinků.

Společnost SAGA Diseño y Construcción dodala architektonické údaje a převzala odpovědnost za provedení stavby.

Místo Av. Melchor Ocampo, Tercera Sección,
70117, El Espinal, Oxaca
Mexiko
Statický výpočet


Specifikace projektu

Údaje o modelu

Počet uzlů 108
Počet linií 193
Počet prutů 165
Počet ploch 54
Počet zatěžovacích stavů 3
Počet kombinací výsledků 4
Celková hmotnost 328,610 t
Rozměry (metrické) 16,608 x 10,208 x 9,629 m
Rozměry (imperiální) 54.49 x 33.49 x 31.59 feet
Verze programu 5.26.02

Máte nějaké otázky?