Verifikační příklad 1024 | Přenos smyku ve styčné ploše
Verifikační příklad 1024 | Přenos smyku ve styčné ploše
13.8.2024
042002
  • RFEM 6

Verifikační příklad 1024 | Přenos smyku ve styčné ploše

Používá se v
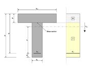
  • VE 1024 | Smyk na rozhraní mezi litým betonem podle DIN EN 1992-1-1
Sdílet