Renovace sídla INAIL v Anconě s udržitelným návrhem a moderními hydroterapeutickými prostory.
  • 3D prohlížeč
  • 3D prohlížeč | Babylon
  • Virtuální realita
Renovace sídla INAIL v Anconě s udržitelným návrhem a moderními hydroterapeutickými prostory.
28.2.2025
055594
  • RFEM 6
  • Betonové konstrukce
  • Ocelové konstrukce
    • Statické konstrukce
    • Analýza napětí
    • Metoda konečných prvků

Sídlo INAIL v Anconě | © Projekt ATI

Renovace sídla INAIL v Anconě s udržitelným návrhem a moderními hydroterapeutickými prostory.

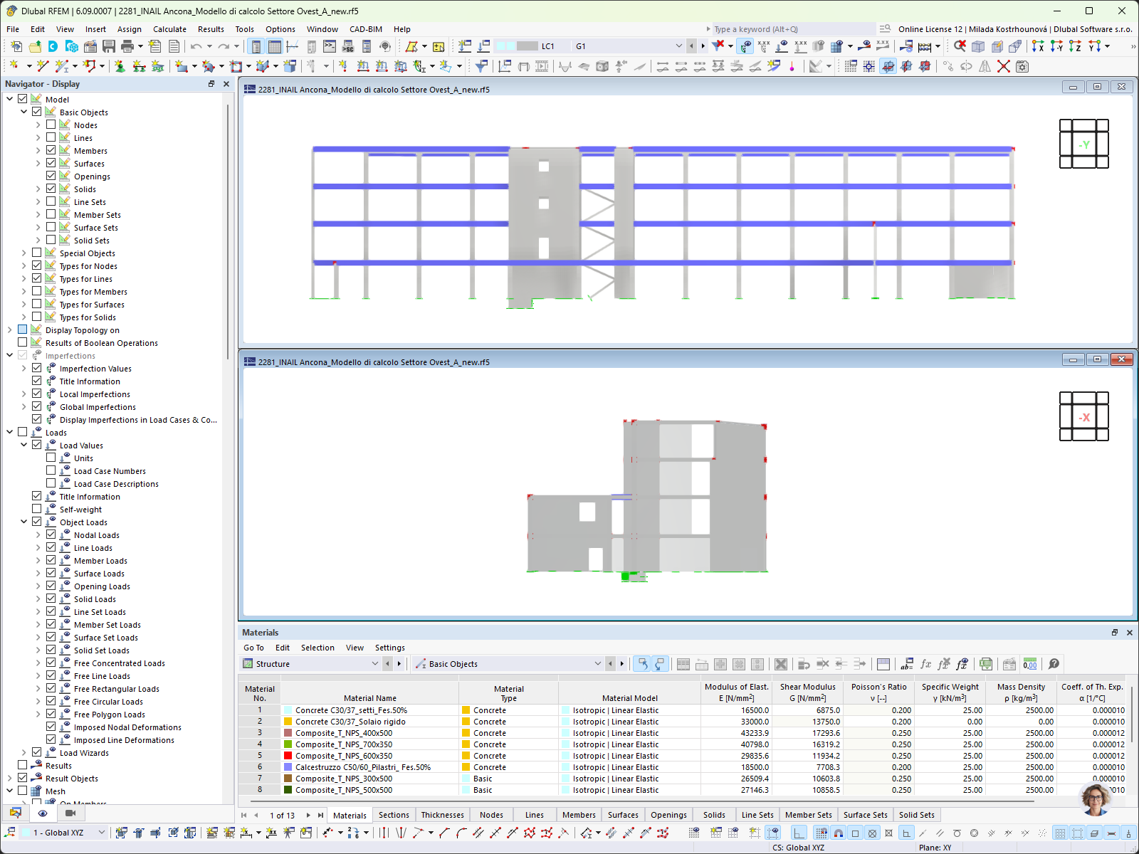
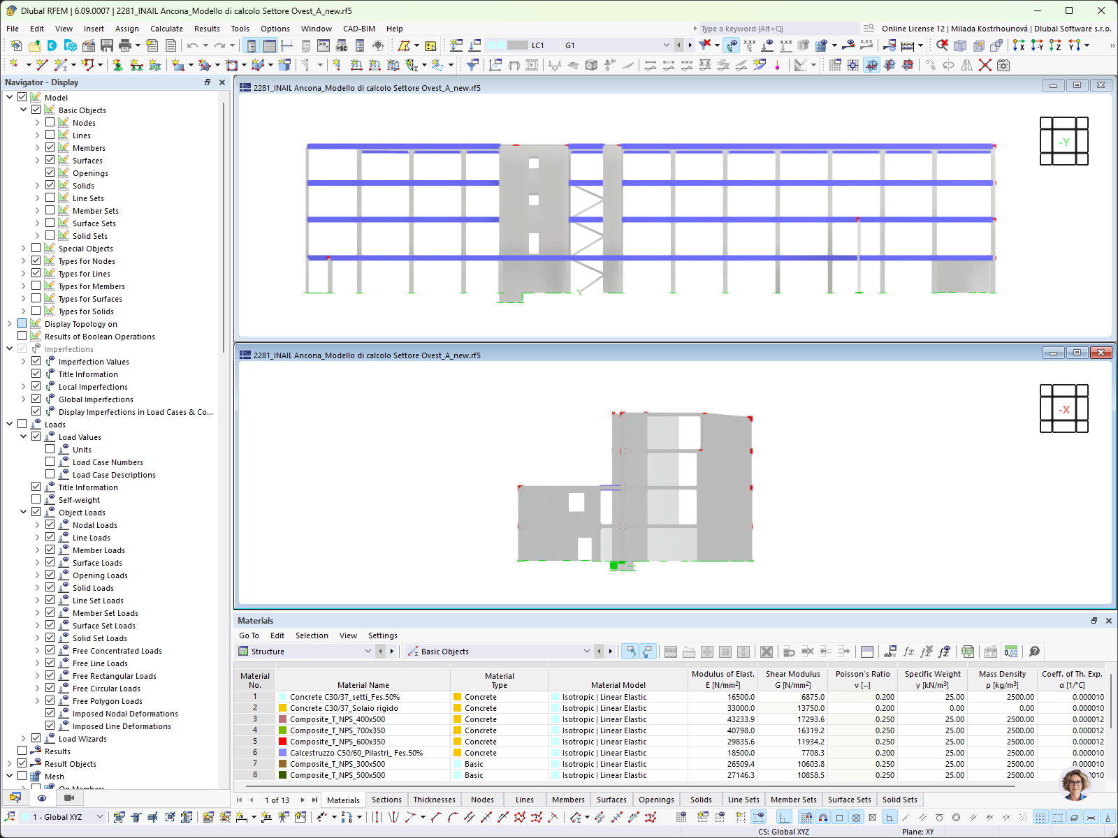
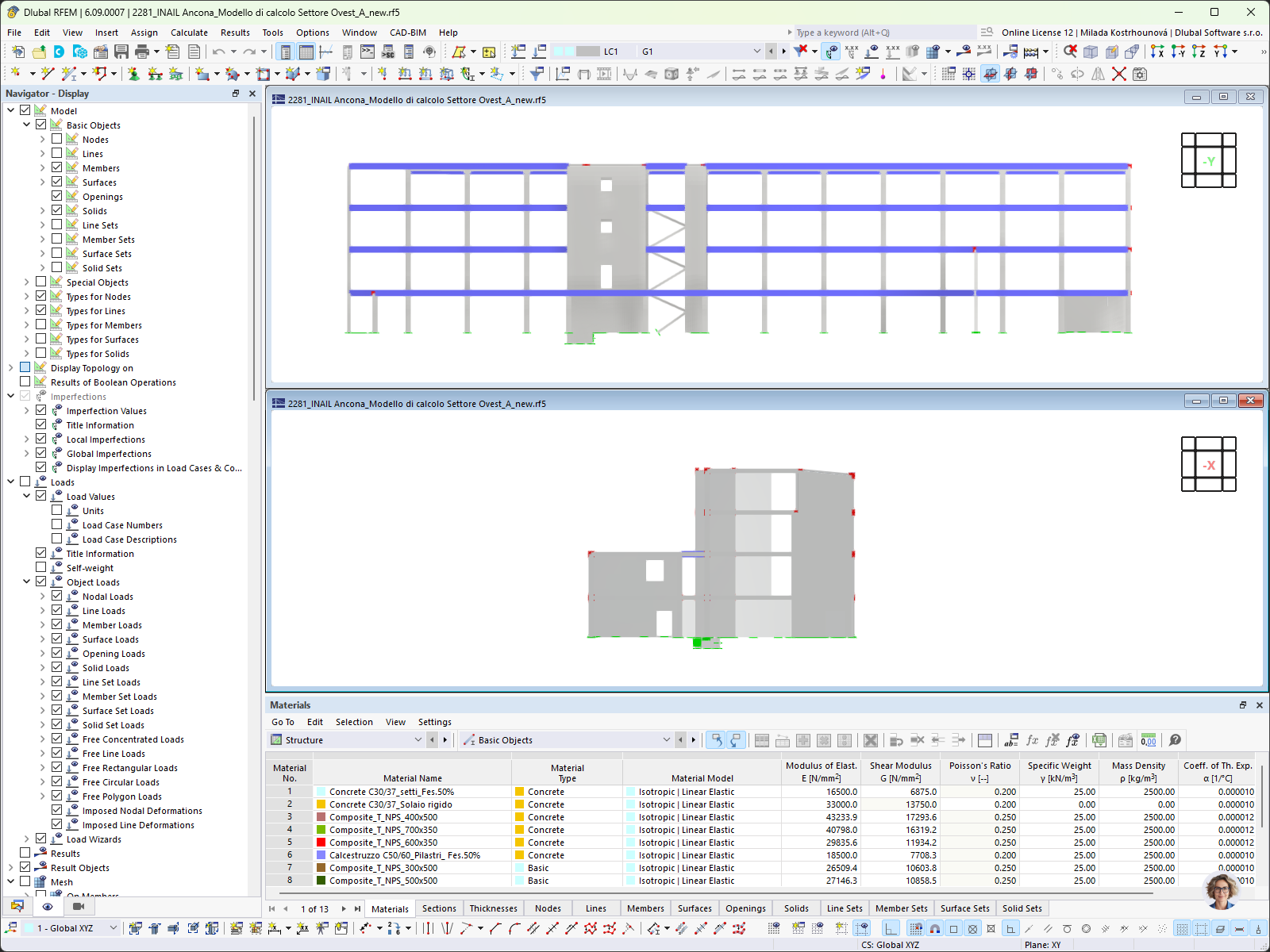
Obrázek zachycuje přestavbu bývalé střední školy IPSIA na nové sídlo společnosti INAIL v italském městě Ancona. Budova se rozkládá na čtyřech nadzemních podlažích o celkové ploše 6 600 m² a vyznačuje se velkými objemy, které jsou zdůrazněny kamenným obkladem a rytmickými otvory. Pravidelné prázdné prostory, výrazný průhledný vstup a pečlivě zvolené barvy podtrhují její veřejnou funkci. Návrh využívá prefabrikovaný předpjatý železobeton a metodiku BIM, aby byla zajištěna efektivita, a kromě kanceláří pro regionální úřady zahrnuje také prostory určené pro hydroterapii, zdraví a rehabilitaci.
  • Sídlo společnosti INAIL
  • Projekt renovace
  • Udržitelný design
  • BIM modelování
  • Prefabrikované předpjaté železobetonové konstrukce
Používá se v
  • INAIL sídlo v Anconě, Itálie
3D model
Nelze stáhnout Projekt zákazníka / Pouze pro zobrazení
Více o 3D modelu
  • Sídlo firmy INAIL v Anconě
Specifikace
Počet uzlů 571
Počet linií 976
Počet prutů 613
Počet ploch 236
Počet těles 0
Počet zatěžovacích stavů 15
Počet kombinací zatížení 127
Počet kombinací výsledků 5
Celková hmotnost 1953,721 t
Rozměry (metrické) 71,050 x 16,176 x 23,935 m
Rozměry (imperiální) 233.1 x 53.07 x 78.53 feet
Sdílet