387x
001333
28.2.2025

INAIL sídlo v Anconě, Itálie

Nová centrála INAIL v Anconě je výsledkem důkladného zhodnocení renovace bývalé střední školy IPSIA. Projekt zaměřený na udržitelnost nabízí řadu služeb, včetně prostor pro hydroterapii a rehabilitaci, spolu s kancelářemi pro regionální úřady. Byl vyvinut v BIM s použitím prefabrikovaného železobetonu, zajišťuje účinnost a splňuje stavební termíny.

Nové sídlo společnosti INAIL v italském Anconě je výsledkem pečlivého technického a ekonomického posouzení zaměřeného na radikální renovaci budovy bývalé střední školy IPSIA. Projekt klade důraz na udržitelnost s cílem vytvořit funkční, na služby orientovanou strukturu pro občany. Budova se vyznačuje velkými objemy, které definují okraj města, zdůrazněné kamenným obkladem a rytmickými otvory. Návrh zahrnuje pravidelné prázdné prostory a barevné odstíny, které odkazují na veřejnou funkci budovy, zatímco velký průhledný vstup narušuje symetrii a vytváří nové proporce.

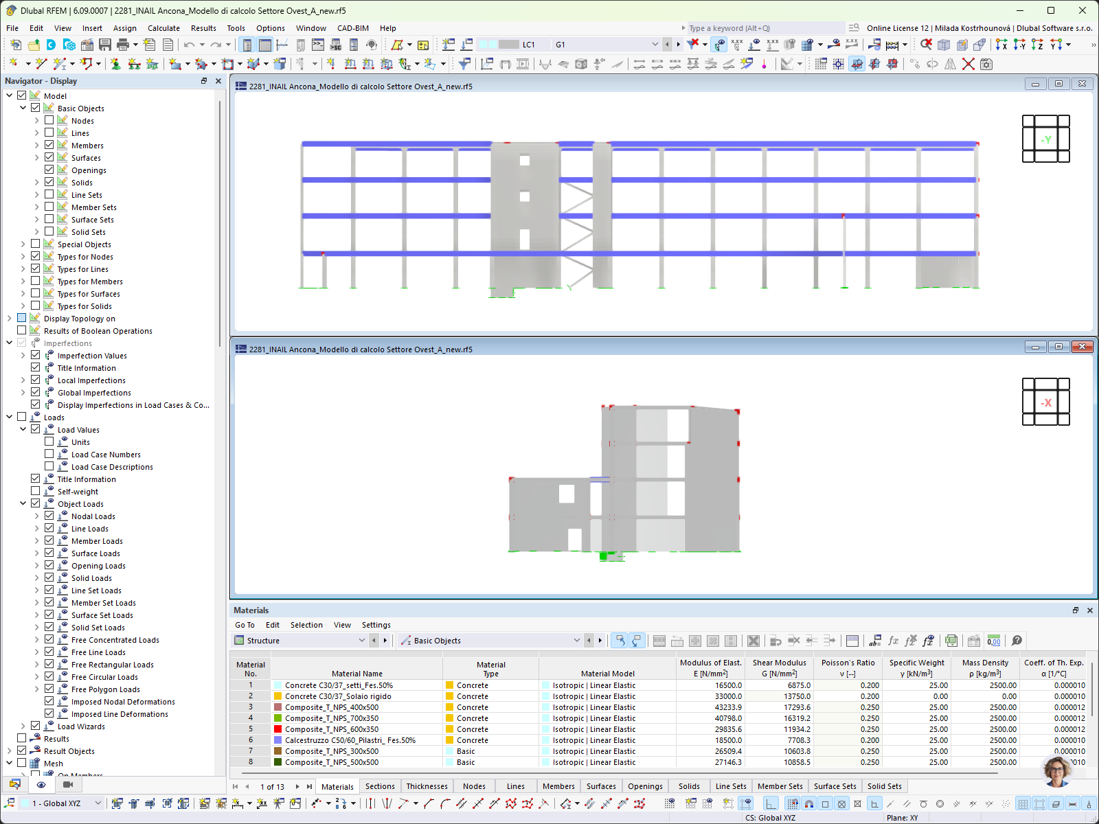
Budova má rozpětí 6 600 m² ve čtyřech nadzemních podlažích a slouží k různým účelům, jako je hydroterapie, zdravotní a rehabilitační prostory a kanceláře pro územní ředitelství v Anconě a regionální ředitelství v Marche. Budova byla kompletně navržena v informačním systému BIM (Building Information Modeling), aby byly zajištěny účinné stavební termíny a výkonnostní požadavky. K dosažení těchto cílů byly použity prefabrikované řešení z předpjatého železobetonu. Budova navíc zahrnuje pokročilé technologie zaměřené na minimalizaci dopadu na životní prostředí, včetně zlepšení hydrologické propustnosti oblasti. Funkce jako vnitřní parkoviště a zelené střechy přispívají k odolnosti projektu vůči klimatickým změnám a zvyšují ekologickou i funkční kvalitu okolního prostředí.

Místo Via Curtatone, Ancona
Itálie
Návrh a statické posouzení
Investor


Specifikace projektu

Údaje o modelu

Počet uzlů 571
Počet linií 976
Počet prutů 613
Počet ploch 236
Počet těles 0
Počet zatěžovacích stavů 15
Počet kombinací zatížení 127
Počet kombinací výsledků 5
Celková hmotnost 1953,721 t
Rozměry (metrické) 71,050 x 16,176 x 23,935 m
Rozměry (imperiální) 233.1 x 53.07 x 78.53 feet

Máte nějaké otázky?