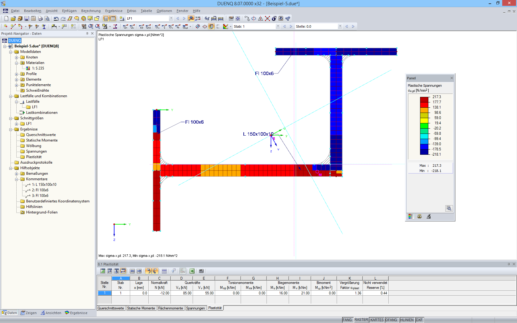
Querschnittswerte-Programm DUENQ | Ergebnisse - Verlauf der plastischen Normalspannungen
Querschnittswerte-Programm DUENQ | Ergebnisse - Verlauf der plastischen Normalspannungen
30. Mai 2024
006863
  • DUENQ 8
  • Stahlbau
  • Spannungsnachweis
    • Eurocode 3
    • Eurocode 9

Querschnittswerte-Programm DUENQ | Ergebnisse - Verlauf der plastischen Normalspannungen

Verwendet in
  • DUENQ | Ergebnisse
Teilen