1919x
000406
25. Oktober 2023

DUENQ | Ergebnisse

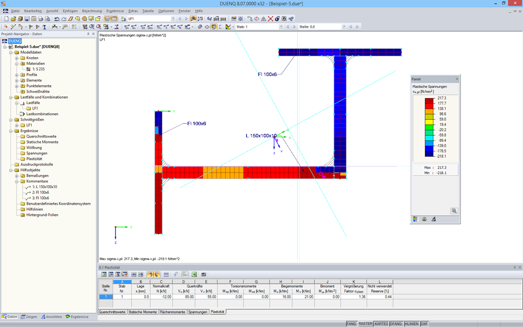
Alle Ergebnisse lassen sich in ansprechender numerischer und grafischer Form auswerten und visualisieren. Selektionsfunktionen unterstützen die gezielte Evaluation.

Das Ausdruckprotokoll entspricht den hohen Standards des RFEM 6 und des RSTAB 9. Änderungen werden automatisch aktualisiert.



;