Spurkranzführung
Seitliche Führungsrollen
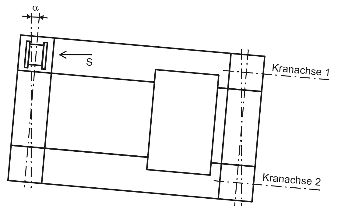
Schräglaufwinkel α
Kombination der Schräglaufkräfte für verschiedene Antriebs- und Führungssysteme
Ausschnitt eines Krandatenblattes der Firma ABUS Kransysteme
Horizontale Lasten aus Schräglauf und Definition in KRANBAHN
Spurkranzführung
Seitliche Führungsrollen
Schräglaufwinkel α
Kombination der Schräglaufkräfte für verschiedene Antriebs- und Führungssysteme
Ausschnitt eines Krandatenblattes der Firma ABUS Kransysteme
Horizontale Lasten aus Schräglauf und Definition in KRANBAHN
30. Mai 2024
008966
  • KRANBAHN 8
  • Krane und Kranbahnen
  • Stahlbau
    • Industrie- und Anlagenbau
    • Statik und Tragwerksplanung
    • Stabilitätsnachweis
    • Eurocode 3
    • Eurocode 1

Spurkranzführung

Verwendet in
  • Horizontale Kranbahnlasten aus Schräglauf von Brückenkranen
Teilen
30. Mai 2024
008967
  • KRANBAHN 8
  • Krane und Kranbahnen
  • Stahlbau
    • Industrie- und Anlagenbau
    • Statik und Tragwerksplanung
    • Stabilitätsnachweis
    • Eurocode 3
    • Eurocode 1
Seitliche Führungsrollen
Verwendet in
  • Horizontale Kranbahnlasten aus Schräglauf von Brückenkranen
Teilen
30. Mai 2024
008968
  • KRANBAHN 8
  • Krane und Kranbahnen
  • Stahlbau
    • Industrie- und Anlagenbau
    • Statik und Tragwerksplanung
    • Stabilitätsnachweis
    • Eurocode 3
    • Eurocode 1
Schräglaufwinkel α
Verwendet in
  • Horizontale Kranbahnlasten aus Schräglauf von Brückenkranen
Teilen
30. Mai 2024
008969
  • KRANBAHN 8
  • Krane und Kranbahnen
  • Stahlbau
    • Industrie- und Anlagenbau
    • Statik und Tragwerksplanung
    • Stabilitätsnachweis
    • Eurocode 3
    • Eurocode 1
Kombination der Schräglaufkräfte für verschiedene Antriebs- und Führungssysteme
Verwendet in
  • Horizontale Kranbahnlasten aus Schräglauf von Brückenkranen
Teilen
30. Mai 2024
008970
  • KRANBAHN 8
  • Krane und Kranbahnen
  • Stahlbau
    • Industrie- und Anlagenbau
    • Statik und Tragwerksplanung
    • Stabilitätsnachweis
    • Eurocode 3
    • Eurocode 1
Ausschnitt eines Krandatenblattes der Firma ABUS Kransysteme
Verwendet in
  • Horizontale Kranbahnlasten aus Schräglauf von Brückenkranen
Teilen
30. Mai 2024
008971
  • KRANBAHN 8
  • Krane und Kranbahnen
  • Stahlbau
    • Industrie- und Anlagenbau
    • Statik und Tragwerksplanung
    • Stabilitätsnachweis
    • Eurocode 3
    • Eurocode 1
Horizontale Lasten aus Schräglauf und Definition in KRANBAHN
Verwendet in
  • Horizontale Kranbahnlasten aus Schräglauf von Brückenkranen
Teilen