22667x
001566
3. April 2019

Horizontale Kranbahnlasten aus Schräglauf von Brückenkranen

Bei Kranbahnen mit großen Stützweiten ist nicht selten die Horizontallast aus Schräglauf bemessungsrelevant. In diesem Beitrag sollen die Entstehung dieser Kräfte und die richtige Eingabe in KRANBAHN beschrieben werden. Es wird hierbei auf die praktische Ausführung und den theoretischen Hintergrund eingegangen.

Allgemeines

Nach dem aktuellen Stand der Technik gibt es zwei Systeme, um die seitliche Führung von Kranlaufrädern zu realisieren. Bei leichtem bis mittlerem Kranbetrieb kommen Spurkränze zum Einsatz. Hierbei erfolgt die seitliche Führung durch Schleifen des Spurkranzes an der Schiene. Vorteil dieser Methode ist der einfache Aufbau. Es sind neben dem Kranlaufrad mit Spurkranz und der Kranbahnschiene keine weiteren technischen Einrichtungen zur seitlichen Führung des Kranes notwendig. Der Nachteil dieser Methode liegt im Verschleiß, welcher an Rad und Schiene auftritt. Auf Bild 01 ist ein Laufrad mit Spurkranz auf einer KS-Schiene abgebildet.

Die zweite Lösung besteht im Einsatz von seitlichen Führungsrollen. Das eigentliche Kranlaufrad muss dann keinen Spurkranz haben, abgesehen von der Reibung kann es sich frei auf der Kranbahnschiene seitlich hin und her bewegen. Sind trotzdem Spurkränze vorhanden, so dienen diese nur als Entgleisungsschutz. Der unvermeidliche Schräglauf des Kranes wird durch seitliche Laufrollen behindert, die sich entweder in der Lage der Kranlaufräder befinden oder vor beziehungsweise hinter den Achsen des Kranes angeordnet sind. Vorteil dieser Lösung sind deutlich verminderte Spurführungskräfte, da die seitlichen Führungsrollen über eine Feder immer an die Kranschiene gedrückt werden. Ebenso ist der Verschleiß der seitlichen Führungsrollen und des Kranlaufrades deutlich geringer. Allerdings benötigt diese Art der seitlichen Führung einen gewissen Bauraum seitlich neben der Kranschiene und ist mit höheren Anschaffungskosten verbunden. Auf Bild 02 ist die Führung über seitliche Führungsrollen an einer KS-Schiene abgebildet.

Ermittlung der Kräfte aus Schräglauf

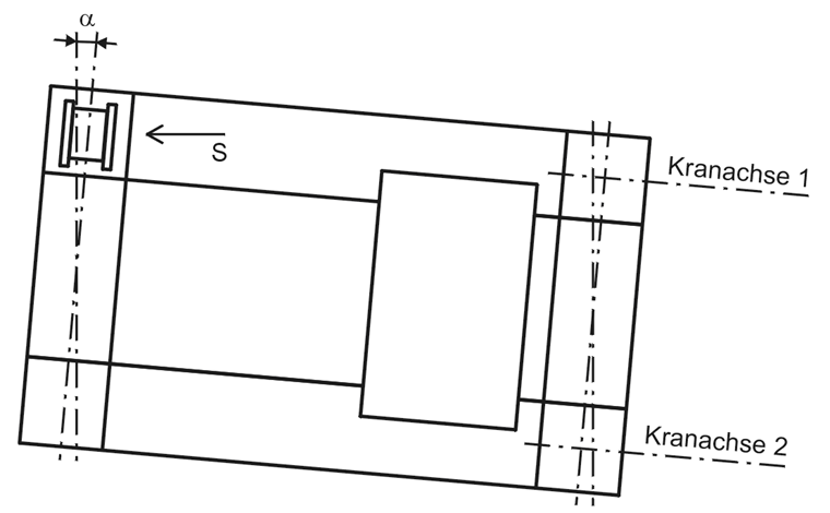
Maßabweichungen, Verschleiß und Spiel in der seitlichen Führung führen zu einem Schräglauf des Kranes. Hierbei stellt sich zwischen den Kranachsen und der Kranbahnachse ein Schräglaufwinkel α ein (siehe Bild 03).

Die Größe der horizontalen Reaktionskräfte aus Schräglauf wird von verschiedenen Randbedingungen beeinflusst. Neben der Art der seitlichen Führung sind die Lage der Führung und das Fahrwerksystem der Kranlaufräder entscheidend. Ebenso haben die Abmessungen des Krans, die Lage des Gesamtschwerpunkts sowie die Summe aller Radlasten Einfluss auf die Größe der Schräglaufkräfte. In Bild 04 werden vier Varianten der Ausführung und der entstehenden horizontalen Reaktionskräfte inklusive Ausrichtung dargestellt.

Die Kranhersteller geben auf den Krandatenblättern die seitlichen Führungskräfte immer an. Sollte zum Zeitpunkt der Bemessung des Kranbahnträgers der Kranhersteller noch nicht bekannt sein, können die seitlichen Führungskräfte für Brückenkrane vereinfacht nach DIN EN 1991-3 Kapitel 2.7.4 [1] ermittelt werden.

Beispiel und Eingabe in KRANBAHN

Für diesen Fachbeitrag wurde uns freundlicherweise von der Firma ABUS Kransysteme ein Krandatenblatt eines Zweibrückenlaufkrans (ZLK) mit einer Traglast von 10 t zur Verfügung gestellt. Der Kran wird einseitig über seitliche Führungsrollen geführt. In Bild 05 sind die Lasteinwirkungen nach DIN EN 1991-3 tabellarisch angegeben. Ebenso sieht man unterhalb eine schematische Darstellung des Kranes von oben mit Angabe der Lastpfeile und Lastbezeichnungen.

Für eine wirtschaftliche Bemessung ist der Ansatz der seitlichen Führungskräfte (und auch der anderen horizontalen Massenkräfte) in die richtige Richtung und am richtigen Träger von besonderer Bedeutung. In KRANBAHN sind die Lasten für einen Träger mit maximalen Radlasten und für einen Träger mit minimalen Radlasten definierbar. Hierbei sind die Fahrtrichtung des Krans sowie die Bezeichnung der Kranlaufräder zu beachten, ebenso die positive Richtung der jeweiligen Last anhand der Ausrichtung der Lastpfeile in der Grafik. In Bild 06 sind die Schräglaufkraft S und die zugehörigen Horizontalkräfte HS je Kranachse dargestellt.

Die dargestellten Werte sind wie folgt ermittelt.

Träger mit R-min:
Sd = γQ ⋅ S = 1,35 ⋅ 12,80 = 17,28 kN
HS,min,2,d = γQ ⋅ HS,min,2 = 1,35 ⋅ 3,10 = 4,18 kN
HS,min,1,d = γQ ⋅ HS,min,1 = 1,35 ⋅ -0,20 = -0,27 kN

Träger mit R-max:
HS,max,2,d = γQ ⋅ HS,max,2 = 1,35 ⋅ 10,50 = 14,17 kN
HS,max,1,d = γQ ⋅ HS,max,1 = 1,35 ⋅ -0,60 = -0,81 kN

Zusammenfassung

Kräfte aus Schräglauf bei Kranbahnen sind nicht vermeidbar. Mit der richtigen Wahl der seitlichen Führung können aber wirtschaftliche Lösungen für den jeweiligen Anwendungsfall gefunden werden. Dies setzt allerdings den richtigen Ansatz der seitlichen Führungskräfte voraus. Dieser Beitrag trägt dazu bei, dem Anwender die Arbeit mit KRANBAHN zu vereinfachen.


Autor

Herr Flori leitet den Kundensupport und steht als Ansprechpartner für Anwenderanfragen zur Verfügung.

Links
Referenzen


;