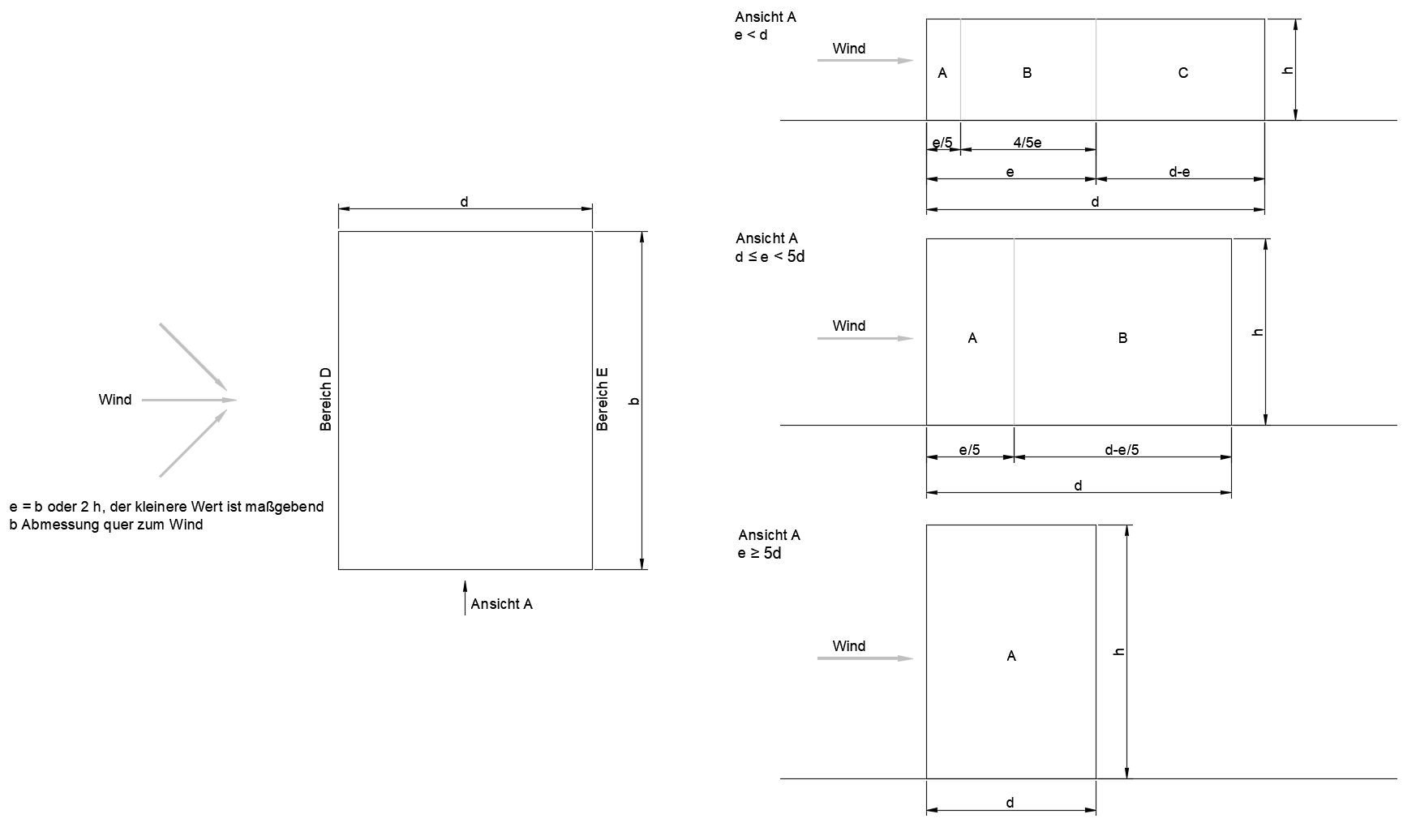
Einteilung der Wandflächen bei vertikalen Wänden
Einteilung der Wandflächen bei vertikalen Wänden
30. Mai 2024
009020
  • RFEM 5
  • RSTAB 8
  • RX-HOLZ BSH 2
    • RX-HOLZ Dach 2
    • RX-HOLZ DLT 2
    • RX-HOLZ Pfette 2
    • RX-HOLZ Rahmen 2
    • RX-HOLZ Stütze 2
    • RX-HOLZ Verband 2
    • Stahlbetonbau
    • Stahlbau
    • Holzbau
    • Gebäude
    • Statik und Tragwerksplanung
    • Eurocode 0
    • Eurocode 1

Einteilung der Wandflächen bei vertikalen Wänden

Verwendet in
  • Windlast auf Pult- und Satteldächer in Deutschland
Teilen