Naturgemäß stellt der Wind eine zeitlich veränderliche Einwirkung auf einen im Freien stehenden Baukörper dar. Um diese Belastung mit anderen Einwirkungen (Nutzlast, Schnee etc.) in definierten Bemessungssituationen nach der Kombinationsnorm DIN EN 1990 zu kombinieren, ist die Windeinwirkung als veränderliche, freie Einwirkung eingestuft. Dabei sind Veränderungen der aerodynamischen Beiwerte aufgrund anderer Einwirkungen (Schnee, Verkehr oder Eis) und Veränderung des Bauwerks während der Bauausführung mit zu berücksichtigen. Hingegen sind Fenster und Türen im Fall einer Windbelastung als geschlossen anzusehen. Unvermeidbar geöffnete Fenster und Türen sind als außergewöhnliche Bemessungssituation zu berücksichtigen.
Die dynamische Windeinwirkung selbst ist vereinfacht als äquivalenter Winddruck oder Windkraft zu der maximalen Wirkung des turbulenten Windes abzubilden. Bei geschlossenen Baukörpern wirkt der Wind auf die Außenflächen und bei durchlässigen oder offenen Baukörpern zusätzlich auf die Innenflächen des Bauwerks. Die Einwirkung ist normal zu den betrachteten Oberflächen anzusetzen. Zusätzlich ist bei großen Flächen unter vorbeistreichendem Wind eine Reibungskomponente parallel zur Oberfläche zu berücksichtigen.
Die Windnorm DIN EN 1991-1-4 mit dem nationalen Anhang von Deutschland gibt die Windeinwirkung als charakteristischen Wert an. Dieser Wert wird über eine Basiswindgeschwindigkeit mit einer jährlichen Überschreitungswahrscheinlichkeit von 2 % auf Basis einer mittleren Wiederkehrperiode von 50 Jahren ermittelt.
Die resultierende Windeinwirkung bei ausreichend steifen, nicht schwingungsanfälligen Gebäuden kann als statische Ersatzkraft abhängig von der Böengeschwindigkeit beschrieben werden. Im Gegensatz wird bei schwingungsanfälligen Gebäuden die Böengeschwindigkeit zur Ermittlung der statischen Ersatzlast zusätzlich mit einem Strukturbeiwert modifiziert [1], [2].
Vereinfacht kann man sagen, dass Bauwerke als nicht schwingungsanfällig gelten, wenn die Verformung unter Windeinwirkung durch Böenresonanz nicht größer als 10 % ist. Typische Hochbauten mit einer Höhe bis zu 25 m fallen unter dieses Kriterium und sind nicht schwingungsanfällig. In allen anderen Fällen kann folgendes Abgrenzungskriterium herangezogen werden [3]:
mit
xS = Kopfpunktverschiebung in m unter der Eigenlast, die in Windrichtung wirkend angesetzt wird
h = Gebäudehöhe in m; href = 25 m
b = Gebäudebreite senkrecht zur Windrichtung in m
δ = logarithmisches Dämpfungsdekrement nach DIN EN 1991-1-4, Anhang F
| Bauwerkstyp | Bauwerksdämpfung δmin |
|---|---|
| Gebäude in Stahlbetonweise | 0,1 |
| Gebäude in Stahlbauweise | 0,05 |
| Gebäude in gemischter Bauweise (Stahl und Beton) | 0,08 |
Höhenabhängiger Böengeschwindigkeitsdruck
Die Windlast auf ein nicht schwingungsanfälliges Gebäude hängt von dem Böengeschwindigkeitsdruck qp ab. Diese Größe ergibt sich aus der Windgeschwindigkeit einer zwei bis vier Sekunden langen Windböe mit Berücksichtigung der umliegenden Geländebeschaffenheit. Zur diskreten Festlegung der Last an einer Stelle gibt der nationale Anhang von Deutschland eine Windzonenkarte mit zugehörigen Grundwerten der Basiswindgeschwindigkeiten vb,0 sowie Grundwerten der Basiswindgeschwindigkeitsdrücke qb,0 und eine Spezifikation von diversen Geländetypen (Kategorie I - IV) an [1], [2], [3].
Mit Erhöhung der Windzone steigt der Grundwert der Basiswindgeschwindigkeit.
Mit steigender Geländekategorie wird das Gelände gröber.
| Gelände | Beschreibung |
|---|---|
| Geländekategorie I | Offene See, Seen mit mindestens 5 km freier Fläche in Windrichtung, glattes flaches Land ohne Hindernisse |
| Geländekategorie II | Gelände mit Hecken, einzelnen Gehöften, Häusern oder Bäumen, zum Beispiel landwirtschaftliches Gebiet |
| Geländekategorie III | Vorstädte, Industrie- und Gewerbegebiete, Wälder |
| Geländekategorie IV | Stadtgebiete, bei denen mindestens 15 % der Fläche mit Gebäuden bebaut sind, deren mittlere Höhe 15 m überschreitet |
| Mischprofil Küste | Übergangsbereich zwischen Geländekategorie I und II |
| Mischprofil Binnenland | Übergangsbereich zwischen Geländekategorie II und III |
Mit Festlegung des Grundwerts der Basiswindgeschwindigkeit vb,0 und der Geländeart kann der Böengeschwindigkeitsdruck qp ermittelt werden.
| Böengeschwindigkeitsdruck qp in kN/m² [3] | Verfahren 1 Tabelle NA-B.1 | Verfahren 2 NA.B.3.3 | Verfahren 3 NA.B.3.2 | |||||||
|---|---|---|---|---|---|---|---|---|---|---|
| Einfluss der Meereshöhe NNmod | unterhalb 800 m über NN | 1,0 | ||||||||
| zwischen 800 m bis 1.100 m über NN | 0,2 + Hs/1.000 | |||||||||
| oberhalb 1.100 m über NN | besondere Überlegungen notwendig | |||||||||
| Windzone | 1 | 2 | 3 | 4 | 1 | 2 | 3 | 4 | ||
| Grundwert der Basiswindgeschwindigkeit vb,0 in m/s | 22,5 | 25,0 | 27,5 | 30,0 | - | - | - | - | ||
| Richtungsfaktor cdir | 1,0 | - | - | - | - | |||||
| Jahreszeitenbeiwert cseason | 1,0 | - | - | - | - | |||||
| Basisgeschwindigkeitsdruck qb in kN/m² | 0,32 | 0,39 | 0,47 | 0,56 | - | - | - | - | ||
| Geländekategorie | Gebäudehöhe | qp in kN/m² | ||||||||
| qp(z) in kN/m² | ||||||||||
| Geländekategorie I | bis 2 m | 1,90 ⋅ qb ⋅ NNmod- | - | - | - | - | ||||
| 2 m bis 300 m | 2,60 ⋅ qb ⋅ (z/10)0,19 ⋅ NNmod | |||||||||
| Geländekategorie II | bis 4 m | 1,70 ⋅ qb ⋅ NNmod- | - | - | - | - | ||||
| 4 m bis 300 m | 2,10 ⋅ qb ⋅ (z/10)0,24 ⋅ NNmod | |||||||||
| Geländekategorie III | bis 8 m | 1,50 ⋅ qb ⋅ NNmod- | - | - | - | - | ||||
| 8 m bis 300 m | 1,60 ⋅ qb ⋅ (z/10)0,31 ⋅ NNmod | |||||||||
| Geländekategorie IV | bis 16 m | 1,30 ⋅ qb ⋅ NNmod- | - | - | - | - | ||||
| 16 m bis 300 m | 1,10 ⋅ qb ⋅ (z/10)0,40 ⋅ NNmod | |||||||||
| Inseln der Nordsee I | bis 2 m | 1,10 ⋅ NNmod | - | - | - | - | ||||
| 2 m bis 300 m | 1,50 ⋅ (z/10)0,19 ⋅ NNmod | |||||||||
| Küstennahe Gebiete sowie Inseln der Ostsee I - II | bis 4 m | 1,80 ⋅ qb ⋅ NNmod | - | - | - | - | ||||
| 4 m bis 50 m | 2,30 ⋅ qb ⋅ (z/10)0,27 ⋅ NNmod | |||||||||
| 50 m bis 300 m | 2,60 ⋅ qb ⋅ (z/10)0,19 ⋅ NNmod | |||||||||
| Binnenland II - III | bis 7 m | 1,50 ⋅ qb ⋅ NNmod | - | - | - | - | ||||
| 7 m bis 50 m | 1,70 ⋅ qb ⋅ (z/10)0,37 ⋅ NNmod | |||||||||
| 50 m bis 300 m | 2,10 ⋅ qb ⋅ (z/10)0,24 ⋅ NNmod | |||||||||
| Binnenland | bis 10 m | - | - | 0,50 ⋅ NNmod | 0,65 ⋅ NNmod | 0,80 ⋅ NNmod | 0,95 ⋅ NNmod | |||
| 10 m bis 18 m | 0,65 ⋅ NNmod | 0,80 ⋅ NNmod | 0,95 ⋅ NNmod | 1,15 ⋅ NNmod | ||||||
| 18 m bis 25 m | 0,75 ⋅ NNmod | 0,90 ⋅ NNmod | 1,10 ⋅ NNmod | 1,30 ⋅ NNmod | ||||||
| Küste und Inseln der Ostsee | bis 10 m | - | - | - | 0,85 ⋅ NNmod | 1,05 ⋅ NNmod | - | |||
| 10 m bis 18 m | - | 1,00 ⋅ NNmod | 1,20 ⋅ NNmod | - | ||||||
| 18 m bis 25 m | - | 1,10 ⋅ NNmod | 1,30 ⋅ NNmod | - | ||||||
| Küste der Nord- und Ostsee und Inseln der Ostsee | bis 10 m | - | - | - | - | - | 1,25 ⋅ NNmod | |||
| 10 m bis 18 m | - | - | - | 1,40 ⋅ NNmod | ||||||
| 18 m bis 25 m | - | - | - | 1,55 ⋅ NNmod | ||||||
| Inseln der Nordsee | bis 10 m | - | - | - | - | - | 1,40 ⋅ NNmod | |||
| 10 m bis 18 m | - | - | - | nach Verfahren 2 | ||||||
| 18 m bis 25 m | - | - | - | nach Verfahren 2 | ||||||
Ermittlung des örtlichen Basiswindgeschwindigkeitsdrucks mit dem Dlubal-Online-Dienst
Der Dlubal-Online-Dienst Schneelastzonen, Windzonen und Erdbebenzonen vereint die Normung mit der digitalen Technik des Internets. Dieser Service legt abhängig von der gewählten Lastart (Schnee, Wind, Erdbeben) und der landesspezifischen Normung die jeweilige Zonenkarte über die digitale Google-Maps-Landkarte. Über die Suche kann der Anwender mit Angabe der Bauortadresse, der Geokoordinaten oder der örtlichen Gegebenheiten einen Marker auf den geplanten Bauort setzen. Die Anwendung ermittelt dann über die exakte Höhe über Meeresniveau und die gegebenen Zonendaten die charakteristische Last beziehungsweise Beschleunigung an dieser Stelle. Kann der neue Bauort noch nicht über eine eindeutige Adresse definiert werden, kann die Karte vergrößert und der Fokus an den richtigen Bauort verschoben werden. Die Berechnung passt sich mit Absetzung des Markers an die neue Höhenlage an und gibt die aktuellen Lasten aus.
Zu finden ist der Online-Dienst auf der Dlubal-Website unter Lösungen → Online-Dienste.
Mit Vorgabe der Parameter...
1. Lastart = Wind
2. Norm = EN 1991-1-4
3. Anhang = Deutschland | DIN EN 1991-1-4
4. Adresse = Zellweg 2, Tiefenbach
...erhält man für die ausgewählte Stelle:
5. Die Windzone
6. Gegebenenfalls Zusatzhinweise
7. Den Grundwert der Basiswindgeschwindigkeit vb,0
8. Den Basiswindgeschwindigkeitsdruck qb
Wählt man eine Stelle oberhalb 1.100 m, gibt der Online-Dienst bei 6. den Hinweis "Keine definierte Windlast oberhalb 1.100 m | NCI A.2 (3)" aus. Dann ist nach der vorhandenen Regel keine Last ermittelbar und es müssen für diese Örtlichkeit besondere Überlegungen angestellt werden.
Winddruck auf Oberflächen
Der einwirkende Winddruck auf eine Fläche ist das Produkt aus maßgebendem Böengeschwindigkeitsdruck mal aerodynamischem Beiwert [1], [2].
Für Außenflächen:
we =qp(ze) ⋅ cpe
mit
qp(ze) = Böengeschwindigkeitsdruck
ze = Bezugshöhe für den Außendruck
cpe = aerodynamischer Beiwert für den Außendruck
Für Innenflächen:
wi =qp(zi) ⋅ cpi
mit
qp(zi) = Spitzengeschwindigkeitsdruck
zi = Bezugshöhe für den Innendruck
cpi = aerodynamischer Beiwert für den Innendruck
Die resultierende Belastung von Außen- und Innendruck ist die Nettodruckbelastung auf eine Oberfläche. Dabei nimmt man den Druck auf eine Oberfläche als positiv und Druck (Sog) von der Oberfläche weg als negativ an.
Nettodruck:
wnet = we + wi
Ausgewählte aerodynamische Beiwerte
Die Oberfläche eines im Windstrom stehenden Gebäudes ist mit Druck- und Soglasten beaufschlagt. Dabei hängt die Größe der Einwirkung auf die äußeren Oberflächen von deren Lasteinzugsflächen ab. Eine Lasteinzugsfläche ist die Oberfläche, welche die flächige Windbelastung aktiv aufnimmt und konzentriert an das darunterliegende Tragwerk weitergibt. Für diesen Typ der Analyse stellt die Norm aerodynamische Außendruckbeiwerte abhängig von der Lasteinzugsfläche zur Verfügung [1], [2].
| Lasteinzugsfläche A [3] | Aerodynamischer Außendruckbeiwert cpe | Beschreibung |
|---|---|---|
| < 1 m² | cpe,1 | Bemessung kleiner Bauteile und deren Verankerungen (zum Beispiel Verkleidungs- und Dachelemente) |
| 1 m² bis 10 m² | cpe,1 - (cpe,1 - cpe,10) ⋅ log10(A) | |
| > 10 m² | cpe,10 | Bemessung des gesamten Tragwerks |
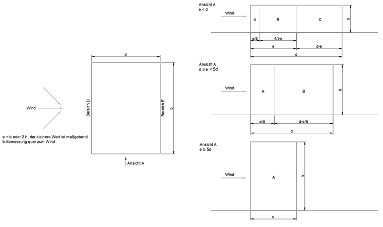
Vertikale Wände von Gebäuden mit rechteckigem Grundriss
Naturgemäß steigt die Windgeschwindigkeit mit der Höhe vom Boden nichtlinear an. Für die windangeströmte Gebäudeoberfläche (luvseitiger Bereich D) kann die daraus resultierende Böengeschwindigkeitsdruckverteilung vereinfacht abhängig vom Verhältnis Gebäudehöhe h zu Gebäudebreite b über die Höhe gestaffelt angesetzt werden [1], [2].
Die Wandsoglasten der verbleibenden leeseitigen und windparallelen Gebäudeoberflächen (Bereich A, B, C und E) hängen von der Aerodynamik des Gebäudes ab. Die finalen aerodynamischen Beiwerte für die Außenflächen können abhängig von dem Verhältnis Gebäudehöhe h zu Gebäudetiefe d ermittelt und gestaffelt angesetzt werden.
| Bereich | A | B | C | D | E | |||||
|---|---|---|---|---|---|---|---|---|---|---|
| h/d | cpe,10 | cpe,1 | cpe,10 | cpe,1 | cpe,10 | cpe,1 | cpe,10 | cpe,1 | cpe,10 | cpe,1 |
| ≥5 | -1,4 | -1,7 | -0,8 | -1,1 | -0,5 | -0,7 | +0,8 | +1,0 | -0,5 | -0,7 |
| 1 | -1,2 | -1,4 | -0,8 | -1,1 | -0,5 | +0,8 | +1,0 | -0,5 | ||
| ≤0,25 | -1,2 | -1,4 | -0,8 | -1,1 | -0,5 | +0,8 | +1,0 | -0,3 | -0,5 | |
| Für einzeln in offenem Gelände stehende Gebäude können im Sogbereich auch größere Sogkräfte auftreten. Zwischenwerte dürfen linear interpoliert werden. Für Gebäude mit h/d > 5 ist die Gesamtwindlast anhand der Kraftwerte nach DIN EN 1991-1-4 plus nationalem Anhang von Deutschland Kapitel 7.6 bis 7.8 und 7.9.2 zu bestimmen. | ||||||||||
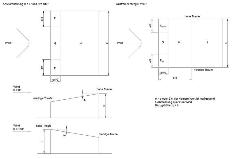
Pultdach
Ähnlich wie die Gebäudeabmessungen selbst hat auch die Dachform einen aerodynamischen Effekt auf die äußeren Dachflächen. Ein größer 5° geneigtes Dach mit einer ausgeprägten hohen und niedrigen Traufe nennt man Pultdach. Aufgrund der Aerodynamik ergeben sich abhängig von der Dachneigung entsprechende Windlasten auf die Lasteinzugsflächen [1], [2].
| Bereich | F | G | H | I | ||||||
|---|---|---|---|---|---|---|---|---|---|---|
| Anströmrichtung θ = 0°2) | ||||||||||
| Neigungswinkel α1) | cpe,10 | cpe,1 | cpe,10 | cpe,1 | cpe,10 | cpe,1 | cpe,10 | cpe,1 | ||
| 5° | -1,7 | -2,5 | -1,2 | -2,0 | -0,6 | -1,2 | - | - | ||
| +0,0 | +0,0 | +0,0 | ||||||||
| 15° | -0,9 | -2,0 | -0,8 | -1,5 | -0,3 | - | - | |||
| +0,2 | +0,2 | +0,2 | ||||||||
| 30° | -0,5 | -1,5 | -0,5 | -1,5 | -0,2 | - | - | |||
| +0,7 | +0,7 | +0,4 | ||||||||
| 45° | -0,0 | -0,0 | -0,0 | - | - | |||||
| +0,7 | +0,7 | +0,6 | ||||||||
| 60° | +0,7 | +0,7 | +0,7 | - | - | |||||
| 75° | +0,8 | +0,8 | +0,8 | - | - | |||||
| Anströmrichtung θ = 180° | ||||||||||
| 5° | -2,3 | -2,5 | -1,3 | -2,0 | -0,8 | -1,2 | - | - | ||
| 15° | -2,5 | -2,8 | -1,3 | -2,0 | -0,9 | -1,2 | - | - | ||
| 30° | -1,1 | -2,3 | -0,8 | -1,5 | -0,8 | - | - | |||
| 45° | -0,6 | -1,3 | -0,5 | -0,7 | - | - | ||||
| 60° | -0,5 | -1,0 | -0,5 | -0,5 | - | - | ||||
| 75° | -0,5 | -1,0 | -0,5 | -0,5 | - | - | ||||
| Anströmrichtung θ = 90° | ||||||||||
| Fhoch | Ftief | |||||||||
| cpe,10 | cpe,1 | cpe,10 | cpe,1 | |||||||
| 5° | -2,1 | -2,6 | -2,1 | -2,4 | -1,8 | -2,0 | -0,6 | -1,2 | -0,5 | |
| 15° | -2,4 | -2,9 | -1,6 | -2,4 | -1,9 | -2,5 | -0,8 | -1,2 | -0,7 | -1,2 |
| 30° | -2,1 | -2,9 | -1,3 | -2,0 | -1,5 | -2,0 | -1,0 | -1,3 | -0,8 | -1,2 |
| 45° | -1,5 | -2,4 | -1,3 | -2,0 | -1,4 | -2,0 | -1,0 | -1,3 | -0,9 | -1,2 |
| 60° | -1,2 | -2,0 | -1,2 | -2,0 | -1,2 | -2,0 | -1,0 | -1,3 | -0,7 | -1,2 |
| 75° | -1,2 | -2,0 | -1,2 | -2,0 | -1,2 | -2,0 | -1,0 | -1,3 | -0,5 | |
| 1) Zwischenwerte dürfen linear interpoliert werden, sofern nicht das Vorzeichen wechselt. Der Wert 0,0 ist zur Interpolation angegeben. 2) Bei der Anströmrichtung θ = 0° und bei Neigungswinkeln von α = +5° bis +45° ändert sich der Druck sehr schnell zwischen positiven und negativen Werten. Für diesen Bereich wird daher sowohl der positive als auch der negative Außendruckbeiwert angegeben. Bei solchen Dächern sind beide Fälle (Druck und Sog) getrennt zu berücksichtigen, indem erstens ausschließlich positive Werte (Druck) und zweitens ausschließlich negative Werte (Sog) zu betrachten sind. | ||||||||||
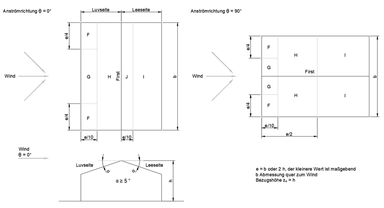
Satteldach
Eine Dachform, bestehend aus zwei entgegengesetzt geneigten Dachflächen, die sich an der obersten waagerechten Kante im Dachfirst verschneiden, wird als Satteldach bezeichnet. Diese Geometrie hat ihre eigenen aerodynamischen Effekte auf die Lasteinzugsflächen [1], [2].
| Bereich | F | G | H | I | J | ||||||
|---|---|---|---|---|---|---|---|---|---|---|---|
| Anströmrichtung θ = 0°2) | |||||||||||
| Neigungswinkel α1) | cpe,10 | cpe,1 | cpe,10 | cpe,1 | cpe,10 | cpe,1 | cpe,10 | cpe,1 | cpe,10 | cpe,1 | |
| 5° | -1,7 | -2,5 | -1,2 | -2,0 | -0,6 | -1,2 | -0,6 | +0,2 | |||
| +0,0 | +0,0 | +0,0 | -0,6 | ||||||||
| 15° | -0,9 | -2,0 | -0,8 | -1,5 | -0,3 | -0,4 | -1,0 | -1,5 | |||
| +0,2 | +0,2 | +0,2 | +0,0 | +0,0 | +0,0 | ||||||
| 30° | -0,5 | -1,5 | -0,5 | -1,5 | -0,2 | -0,4 | -0,5 | ||||
| +0,7 | +0,7 | +0,4 | +0,0 | +0,0 | |||||||
| 45° | -0,0 | -0,0 | -0,0 | -0,2 | -0,3 | ||||||
| +0,7 | +0,7 | +0,6 | +0,0 | +0,0 | |||||||
| 60° | +0,7 | +0,7 | +0,7 | -0,2 | -0,3 | ||||||
| 75° | +0,8 | +0,8 | +0,8 | -0,2 | -0,3 | ||||||
| Anströmrichtung θ = 90° | |||||||||||
| 5° | -1,6 | -2,2 | -1,3 | -2,0 | -0,7 | -1,2 | -0,6 | - | - | ||
| 15° | -1,3 | -2,0 | -1,3 | -2,0 | -0,6 | -1,2 | -0,5 | - | - | ||
| 30° | -1,1 | -1,5 | -1,4 | -2,0 | -0,8 | -1,2 | -0,5 | - | - | ||
| 45° | -1,1 | -1,5 | -1,4 | -2,0 | -0,9 | -1,2 | -0,5 | - | - | ||
| 60° | -1,1 | -1,5 | -1,2 | -2,0 | -0,8 | -1,0 | -0,5 | - | - | ||
| 75° | -1,1 | -1,5 | -1,2 | -2,0 | -0,8 | -1,0 | -0,5 | - | - | ||
| 1) Für die Anströmrichtung θ = 0° und einen Neigungswinkel von α = -5° bis +45° ändert sich der Druck schnell zwischen positiven und negativen Werten. Daher werden sowohl der positive als auch der negative Wert angegeben. Bei solchen Dächern sind vier Fälle zu berücksichtigen, bei denen jeweils der kleinste beziehungsweise größte Werte für die Bereiche F, G und H mit den kleinsten beziehungsweise größten Werten der Bereiche I und J kombiniert wird. Das Mischen von positiven und negativen Werten auf einer Dachfläche ist nicht zulässig. 2) Für Dachneigungen zwischen den angegebenen Werten darf linear interpoliert werden, sofern nicht das Vorzeichen der Druckbeiwerte wechselt. Für Neigungen zwischen α = +5° und -5° sind die Werte für Flachdächer nach DIN EN 1991-1-4 plus nationalem Anhang von Deutschland Kapitel 7.2.3 zu benutzen. Der Wert Null ist für Interpolationszwecke angegeben. | |||||||||||