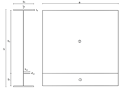
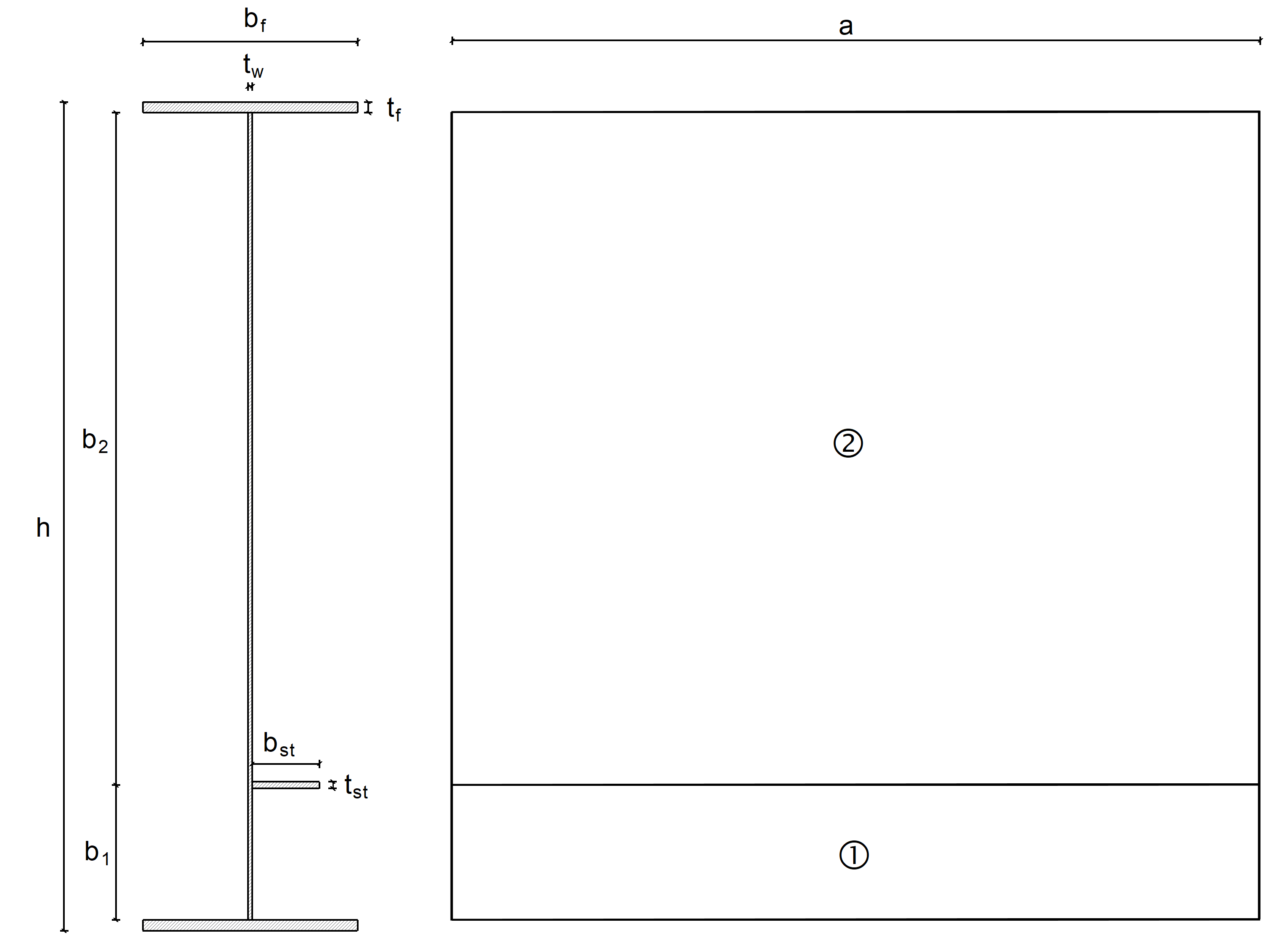
Querschnitt
Spannungsverteilung
Bruttoquerschnitt Ersatzdruckstab
Brutto- und effektiver Querschnitt infolge lokalen Beulens
Ersatzdruckstab und Steife: Abstände e1, e2
Effektiver Querschnitt infolge lokalen und globalen Beulens
Berechnungsparameter
Querschnittsteile für Klassifizierung
Beulsteifen
Beulfelder
Ergebnisse
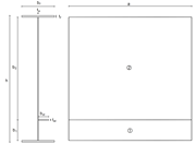
Querschnitt
Spannungsverteilung
Bruttoquerschnitt Ersatzdruckstab
Brutto- und effektiver Querschnitt infolge lokalen Beulens
Ersatzdruckstab und Steife: Abstände e1, e2
Effektiver Querschnitt infolge lokalen und globalen Beulens
Berechnungsparameter
Querschnittsteile für Klassifizierung
Beulsteifen
Beulfelder
Ergebnisse
30. Mai 2024
009113
  • DUENQ 8
  • Stahlbau
  • Spannungsnachweis
    • Stabilitätsnachweis
    • Eurocode 3

Querschnitt

Verwendet in
  • Längs ausgesteifte Blechfelder gemäß EN 1993-1-5, Abschnitt 4.5
Teilen
30. Mai 2024
009114
  • DUENQ 8
  • Stahlbau
  • Spannungsnachweis
    • Stabilitätsnachweis
    • Eurocode 3
Spannungsverteilung
Verwendet in
  • Längs ausgesteifte Blechfelder gemäß EN 1993-1-5, Abschnitt 4.5
Teilen
30. Mai 2024
009115
  • DUENQ 8
  • Stahlbau
  • Spannungsnachweis
    • Stabilitätsnachweis
    • Eurocode 3
Bruttoquerschnitt Ersatzdruckstab
Verwendet in
  • Längs ausgesteifte Blechfelder gemäß EN 1993-1-5, Abschnitt 4.5
Teilen
30. Mai 2024
009116
  • DUENQ 8
  • Stahlbau
  • Spannungsnachweis
    • Stabilitätsnachweis
    • Eurocode 3
Brutto- und effektiver Querschnitt infolge lokalen Beulens
Verwendet in
  • Längs ausgesteifte Blechfelder gemäß EN 1993-1-5, Abschnitt 4.5
Teilen
30. Mai 2024
009117
  • DUENQ 8
  • Stahlbau
  • Spannungsnachweis
    • Stabilitätsnachweis
    • Eurocode 3
Ersatzdruckstab und Steife: Abstände e1, e2
Verwendet in
  • Längs ausgesteifte Blechfelder gemäß EN 1993-1-5, Abschnitt 4.5
Teilen
30. Mai 2024
009118
  • DUENQ 8
  • Stahlbau
  • Spannungsnachweis
    • Stabilitätsnachweis
    • Eurocode 3
Effektiver Querschnitt infolge lokalen und globalen Beulens
Verwendet in
  • Längs ausgesteifte Blechfelder gemäß EN 1993-1-5, Abschnitt 4.5
Teilen
30. Mai 2024
009119
  • DUENQ 8
  • Stahlbau
  • Spannungsnachweis
    • Stabilitätsnachweis
    • Eurocode 3
Berechnungsparameter
Verwendet in
  • Längs ausgesteifte Blechfelder gemäß EN 1993-1-5, Abschnitt 4.5
Teilen
30. Mai 2024
009120
  • DUENQ 8
  • Stahlbau
  • Spannungsnachweis
    • Stabilitätsnachweis
    • Eurocode 3
Querschnittsteile für Klassifizierung
Verwendet in
  • Längs ausgesteifte Blechfelder gemäß EN 1993-1-5, Abschnitt 4.5
Teilen
30. Mai 2024
009121
  • DUENQ 8
  • Stahlbau
  • Spannungsnachweis
    • Stabilitätsnachweis
    • Eurocode 3
Beulsteifen
Verwendet in
  • Längs ausgesteifte Blechfelder gemäß EN 1993-1-5, Abschnitt 4.5
Teilen
30. Mai 2024
009122
  • DUENQ 8
  • Stahlbau
  • Spannungsnachweis
    • Stabilitätsnachweis
    • Eurocode 3
Beulfelder
Verwendet in
  • Längs ausgesteifte Blechfelder gemäß EN 1993-1-5, Abschnitt 4.5
Teilen
30. Mai 2024
009123
  • DUENQ 8
  • Stahlbau
  • Spannungsnachweis
    • Stabilitätsnachweis
    • Eurocode 3
Ergebnisse
Verwendet in
  • Längs ausgesteifte Blechfelder gemäß EN 1993-1-5, Abschnitt 4.5
Teilen