Längs ausgesteifte Blechfelder gemäß EN 1993-1-5, Abschnitt 4.5

Fachbeitrag

In DUENQ kann die Berechnung von längs ausgesteiften Blechfeldern gemäß Abschnitt 4.5 der EN 1993-1-5 erfolgen. Bei längs ausgesteiften Blechfeldern sind in der Regel sowohl die wirksamen Flächen infolge lokalen Beulens der Einzelfelder im Blech und in den Steifen als auch die wirksamen Flächen aus dem Gesamtfeldbeulen des ausgesteiften Gesamtfeldes zu berücksichtigen.

Es werden zunächst die wirksamen Flächen der Einzelfelder mit Hilfe des Abminderungsfaktors nach EN 1993-1-5 [1], Abschnitt 4.4 zur Berücksichtigung des Einzelfeldbeulens bestimmt. Im zweiten Schritt erfolgt die Ermittlung der Beulsicherheit des Gesamtfeldes unter Berücksichtigung des knickstabähnlichen Verhaltens. Mit dem Abminderungsfaktor des Gesamtfeldbeulens werden die effektiven Breiten der Einzelfelder erneut abgemindert. Man erhält so einen effektiven Querschnitt, welcher als Querschnitt der Querschnittsklasse 3 behandelt werden darf.

Beispiel

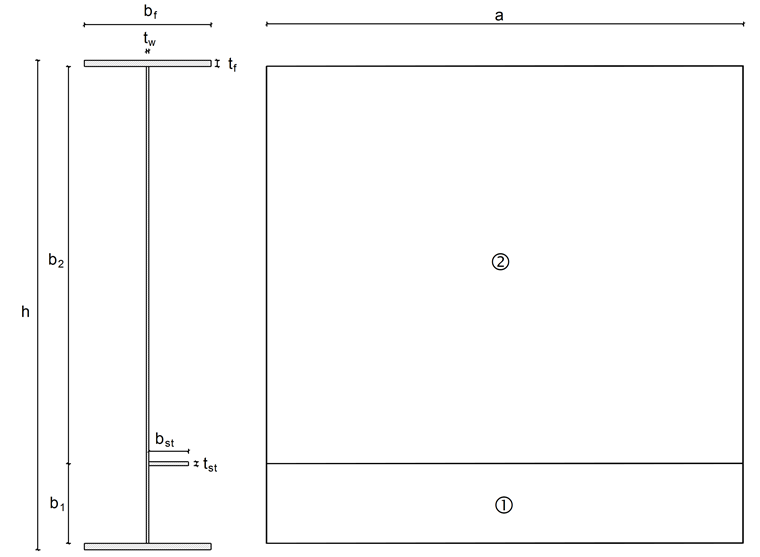
Das nachfolgende Beispiel ist dem Stahlbau Kalender 2015 [2] entnommen. Der Querschnitt besteht aus einem I-Träger, dessen Steg durch starre Quersteifen und einer Längssteife verstärkt ist. Die Quersteifen sind im Abstand von 3.000 mm zueinander positioniert und die Längssteife ist im Abstand von 500 mm vom unteren Flansch angeschweißt. Die Schweißnähte werden vernachlässigt. Es wirkt eine Drucknormalkraft von NEd = 4.000 kN.

Bild 01 - Querschnitt

Material:
S355 J0
fy = 35,5 kN/cm² (für t ≤ 3 mm und t ≤ 16 mm)
fy = 34,5 kN/cm² (für t > 16 mm und t ≤ 40 mm)
E = 21.000 kN/cm²
G = 8.076,92 kN/cm²
γM0 = 1,0

a = 3.000 mm
b1 = 500 mm
b2 = 2.500 mm
bf = 800 mm
bst = 250 mm
tw = 15 mm
tf = 40 mm
tst = 25 mm
h = 3.080 mm

Bruttoquerschnitt und Spannungsverteilung

Die Spannung errechnet sich zu:

${\mathrm\sigma}_1\;=\;{\mathrm\sigma}_\mathrm{sl}\;=\;{\mathrm\sigma}_2\;=\;\frac{{\mathrm N}_\mathrm{Ed}}{\mathrm A}\;=\;\frac{4.000}{1.152,5}\;=\;3,47\;\mathrm{kN}/\mathrm{cm}²$

Der Bruttoquerschnitt und die Spannungsverteilung sind in Bild 02 ersichtlich.

Bild 02 - Spannungsverteilung

Querschnittsklassifizierung

Im Rahmen einer Querschnittsklassifizierung wird geprüft, ob für die Einzelfelder ein Beulnachweis erforderlich ist. Fällt das Einzelfeld zumindest in die Querschnittsklasse 3, ist lokales Beulen nicht maßgebend.

Flansch

$\begin{array}{l}{\mathrm c}_\mathrm f\;=\;\frac{{\mathrm b}_\mathrm f\;-\;{\mathrm t}_\mathrm w}2\;=\;\frac{800\;-\;15}2\;=\;392,5\;\mathrm{mm}\\\frac{\displaystyle{\mathrm c}_\mathrm f}{\displaystyle{\mathrm t}_\mathrm f}\;=\;\frac{\displaystyle392,5}{\displaystyle40}\;=\;9,8\end{array}$

Das maximale c/t-Verhältnis λi wird gemäß EN 1993-1-1 [3], Tabelle 5.2 bestimmt.

$\begin{array}{l}\mathrm\varepsilon\;=\;\sqrt{235\;/\;{\mathrm f}_\mathrm y}\;=\;\sqrt{235\;/\;345}\;=\;0,825\\{\mathrm\lambda}_1\;=\;9\;\cdot\;\mathrm\varepsilon\;=\;9\;\cdot\;0,825\;=\;7,4\;<\;\frac{{\mathrm c}_\mathrm f}{{\mathrm t}_\mathrm f}\;=\;9,8\\{\mathrm\lambda}_2\;=\;10\;\cdot\;\mathrm\varepsilon\;=\;10\;\cdot\;0,825\;=\;8,2\;<\;\frac{{\mathrm c}_\mathrm f}{{\mathrm t}_\mathrm f}\;=\;9,8\\{\mathrm\lambda}_3\;=\;14\;\cdot\;\mathrm\varepsilon\;=\;14\;\cdot\;0,825\;=\;11,6\;>\;\frac{{\mathrm c}_\mathrm f}{{\mathrm t}_\mathrm f}\;=\;9,8\end{array}$

Der Flansch ist der Querschnittsklasse 3 zuzuordnen. Es ist somit kein lokales Beulen maßgebend und damit auch keine Abminderung der Einzelfelder des Flansches erforderlich.

Steg

$\begin{array}{l}{\mathrm c}_1\;=\;{\mathrm b}_1\;-\;\frac{{\mathrm t}_\mathrm{st}}2\;=\;500\;-\;\frac{25}2\;=\;487,5\;\mathrm{mm}\\\frac{\displaystyle{\mathrm c}_1}{\displaystyle{\mathrm t}_\mathrm w}\;=\;\frac{\displaystyle487,5}{\displaystyle15}\;=\;32,5\end{array}$

Das maximale c/t-Verhältnis λi wird gemäß [3], Tabelle 5.2 bestimmt.

$\begin{array}{l}\mathrm\varepsilon\;=\;\sqrt{235\;/\;{\mathrm f}_\mathrm y}\;=\;\sqrt{235\;/\;355}\;=\;0,814\\{\mathrm\lambda}_1\;=\;33\;\cdot\;\mathrm\varepsilon\;=\;33\;\cdot\;0,814\;=\;26,8\;<\;\frac{{\mathrm c}_1}{{\mathrm t}_\mathrm w}\;=\;32,5\\{\mathrm\lambda}_2\;=\;38\;\cdot\;\mathrm\varepsilon\;=\;38\;\cdot\;0,814\;=\;30,9\;<\;\frac{{\mathrm c}_1}{{\mathrm t}_\mathrm w}\;=\;32,5\\{\mathrm\lambda}_3\;=\;42\;\cdot\;\mathrm\varepsilon\;=\;42\;\cdot\;0,814\;=\;34,2\;>\;\frac{{\mathrm c}_1}{{\mathrm t}_\mathrm w}\;=\;32,5\end{array}$

Das Einzelfeld 1 ist der Querschnittsklasse 3 zuzuordnen. Es ist somit kein lokales Beulen maßgebend und auch keine Abminderung dieses Einzelfeldes erforderlich.

$\begin{array}{l}{\mathrm c}_2\;=\;{\mathrm b}_2\;-\;\frac{{\mathrm t}_\mathrm{st}}2\;=\;2.500\;-\;\frac{25}2\;=\;2.487,5\;\mathrm{mm}\\\frac{\displaystyle{\mathrm c}_2}{\displaystyle{\mathrm t}_\mathrm w}\;=\;\frac{\displaystyle2.487,5}{\displaystyle15}\;=\;165,8\end{array}$

Das maximale c/t-Verhältnis λi wird gemäß [3], Tabelle 5.2 bestimmt.

$\begin{array}{l}\mathrm\varepsilon\;=\;\sqrt{235\;/\;{\mathrm f}_\mathrm y}\;=\;\sqrt{235\;/\;355}\;=\;0,814\\{\mathrm\lambda}_1\;=\;33\;\cdot\;\mathrm\varepsilon\;=\;33\;\cdot\;0,814\;=\;26,8\;<\;\frac{{\mathrm c}_2}{{\mathrm t}_\mathrm w}\;=\;165,8\\{\mathrm\lambda}_2\;=\;38\;\cdot\;\mathrm\varepsilon\;=\;38\;\cdot\;0,814\;=\;30,9\;<\;\frac{{\mathrm c}_2}{{\mathrm t}_\mathrm w}\;=\;165,8\\{\mathrm\lambda}_3\;=\;42\;\cdot\;\mathrm\varepsilon\;=\;42\;\cdot\;0,814\;=\;34,2\;<\;\frac{{\mathrm c}_2}{{\mathrm t}_\mathrm w}\;=\;165,8\end{array}$

Das Einzelfeld 2 ist der Querschnittsklasse 4 zuzuordnen. Somit ist für dieses Einzelfeld lokales Beulen maßgebend und eine Abminderung des Einzelfeldes erforderlich.

Steife

$\begin{array}{l}{\mathrm b}_\mathrm{st}\;=\;250\;\mathrm{mm}\\\frac{\displaystyle{\mathrm b}_\mathrm{st}}{\displaystyle{\mathrm t}_\mathrm{st}}\;=\;\frac{\displaystyle250}{\displaystyle25}\;=\;10\end{array}$

Das maximale c/t-Verhältnis λi wird gemäß [3], Tabelle 5.2 bestimmt.

$\begin{array}{l}\mathrm\varepsilon\;=\;\sqrt{235\;/\;{\mathrm f}_\mathrm y}\;=\;\sqrt{235\;/\;345}\;=\;0,825\\{\mathrm\lambda}_1\;=\;9\;\cdot\;\mathrm\varepsilon\;=\;9\;\cdot\;0,825\;=\;7,4\;<\;\frac{\displaystyle{\mathrm b}_\mathrm{st}}{\displaystyle{\mathrm t}_\mathrm{st}}\;=\;10\\{\mathrm\lambda}_2\;=\;10\;\cdot\;\mathrm\varepsilon\;=\;10\;\cdot\;0,825\;=\;8,2\;<\;\frac{\displaystyle{\mathrm b}_\mathrm{st}}{\displaystyle{\mathrm t}_\mathrm{st}}\;=\;10\\{\mathrm\lambda}_3\;=\;14\cdot\;\mathrm\varepsilon\;=\;14\;\cdot0,825\;=\;11,6\;>\;\frac{\displaystyle{\mathrm b}_\mathrm{st}}{\displaystyle{\mathrm t}_\mathrm{st}}\;=\;10\end{array}$

Der Steg ist der Querschnittsklasse 3 zuzuordnen. Es ist somit kein lokales Beulen maßgebend und damit auch keine Abminderung dieses Einzelfeldes erforderlich.

Effektive Breiten

Das Einzelfeld 1 ist der Querschnittsklasse 3 zugeordnet, sodass lokales Beulen nicht maßgebend ist. Damit entsprechen die effektiven Querschnittswerte den Bruttoquerschnittswerten. Gemäß [1], Tabelle 4.1 ergeben sich folgende wirksamen Breiten:

$\begin{array}{l}{\mathrm b}_{1,\mathrm{eff}}\;=\;{\mathrm c}_1\;=\;487,5\;\mathrm{mm}\\{\mathrm b}_{1,\mathrm{edge},\mathrm{eff}}\;=\;{\mathrm b}_{1,\mathrm{edge}}\;=\;0,5\;\cdot\;{\mathrm c}_1\;=\;0,5\;\cdot\;487,5\;=\;243,8\;\mathrm{mm}\\{\mathrm b}_{1,\inf,\mathrm{eff}}\;=\;{\mathrm b}_{1,\inf}\;=\;0,5\;\cdot\;{\mathrm c}_1\;=\;0,5\;\cdot\;487,5\;=\;243,8\;\mathrm{mm}\end{array}$

Das Einzelfeld 2 ist der Querschnittsklasse 4 zugeordnet, sodass lokales Beulen maßgebend ist. Somit sind die effektiven Breiten des Einzelfeldes 2 gemäß [1], Abschnitt 4.4 zu bestimmen.

Die Spannungsverteilung im Einzelfeld 2 ist konstant. Somit ergibt sich ein Spannungsverhältnis ψ = 1 und gemäß Tabelle 4.1 ein Beulwert kσ = 4,0. Damit ergibt sich für den Schlankheitsgrad ${\overline{\mathrm\lambda}}_{\mathrm p2}$ nach [1], Abschnitt 4.4(2):

${\overline{\mathrm\lambda}}_{\mathrm p2}\;=\;\frac{\displaystyle\frac{{\mathrm c}_2}{{\mathrm t}_\mathrm w}}{28,4\;\cdot\;\mathrm\varepsilon\;\cdot\;\sqrt{{\mathrm k}_\mathrm\sigma}}\;=\;\frac{165,8}{28,4\;\cdot\;0,814\;\cdot\;\sqrt4}\;=\;3,588$$>\;0,5\;+\;\sqrt{0,085\;-\;0,055\;\cdot\;\mathrm\psi}$
 $>\;0,5\;+\;\sqrt{0,085\;-\;0,055\;\cdot\;1}\;=\;0,673$

Der lokale Abminderungsfaktor ρ wird nach [1], Gleichung (4.2) ermittelt:

${\mathrm\rho}_2\;=\;\frac{{\overline{\mathrm\lambda}}_{\mathrm p2}\;-\;0,055\;\cdot\;\left(3\;+\;\mathrm\psi\right)}{\overline{\mathrm\lambda}_{\mathrm p2}^2}\;=\;\frac{3,588\;-\;0,055\;\cdot\;\left(3\;+\;1\right)}{3,588^2}\;=\;0,262\;<\;1$

Die effektiven Breiten des Einzelfeldes 2 unter Berücksichtigung des lokalen Beulens werden gemäß [1], Tabelle 4.1 berechnet:

$\begin{array}{l}{\mathrm b}_{2,\mathrm{eff}}\;=\;{\mathrm\rho}_2\;\cdot\;{\mathrm c}_2\;=\;0,262\;\cdot\;2.487,5\;=\;650,7\;\mathrm{mm}\\{\mathrm b}_{2,\mathrm{edge},\mathrm{eff}}\;=\;0,5\;\cdot\;{\mathrm b}_{2,\mathrm{eff}}\;=\;0,5\;\cdot\;650,7\;=\;325,4\;\mathrm{mm}\\{\mathrm b}_{2,\sup,\mathrm{eff}}\;=\;0,5\;\cdot\;{\mathrm b}_{2,\mathrm{eff}}\;=\;0,5\;\cdot\;650,7\;=\;325,4\;\mathrm{mm}\end{array}$

Die Breiten des Bruttoquerschnittes ergeben sich zu:

$\begin{array}{l}{\mathrm b}_{2,\mathrm{edge}}\;=\;0,5\;\cdot\;{\mathrm c}_2\;=\;0,5\;\cdot\;2.487,5\;=\;1.243,8\;\mathrm{mm}\\{\mathrm b}_{2,\sup}\;=\;0,5\;\cdot\;{\mathrm c}_2\;=\;0,5\;\cdot\;2.487,5\;=\;1.243,8\;\mathrm{mm}\end{array}$

Plattenartiges Verhalten

Die elastische kritische Knickspannung der Steife σcr,sl wird gemäß [1], Anhang A.2.2 berechnet. Es ist zunächst die Knicklänge der Steife ac zu berechnen:

${\mathrm a}_\mathrm c\;=\;4,33\;\cdot\;\sqrt[4]{\frac{{\mathrm I}_{\mathrm{sl},1}\;\cdot\;\mathrm b_1^2\;\cdot\;\mathrm b_2^2}{\mathrm t^3\;\cdot\;\mathrm b}}\;=\;4,33\;\cdot\;\sqrt[4]{\frac{11.900\;\cdot\;50^2\;\cdot\;250^2}{1,5^3\;\cdot\;\left(50\;+\;250\right)}}\;=\;896,4\;\mathrm{cm}\;>\;\mathrm a\;=\;300\;\mathrm{cm}$

Die elastische kritische Knickspannung der Steife σcr,sl ergibt sich mit a < ac zu:

$\begin{array}{l}{\mathrm\sigma}_{\mathrm{cr},\mathrm{sl}}\;=\;\frac{\mathrm\pi^2\;\cdot\;\mathrm E\;\cdot\;{\mathrm I}_{\mathrm{sl},1}}{{\mathrm A}_{\mathrm{sl},1}\;\cdot\;\mathrm a^2}\;+\;\frac{\mathrm E\;\cdot\;\mathrm t^3\;\cdot\;\mathrm b\;\cdot\;\mathrm a^2}{4\;\cdot\;\mathrm\pi^2\;\cdot\;\left(1\;-\;\mathrm\nu^2\right)\;\cdot\;{\mathrm A}_{\mathrm{sl},1}\;\cdot\;\mathrm b_1^2\;\cdot\;\mathrm b_2^2}\;\mathrm{für}\;\mathrm a\;<\;{\mathrm a}_\mathrm c\\{\mathrm\sigma}_{\mathrm{cr},\mathrm{sl}}\;=\;\frac{\mathrm\pi^2\;\cdot\;21.000\;\cdot\;11.900}{289,4\;\cdot\;300^2}+\frac{21.000\;\cdot\;1,5^3\;\cdot\;\left(50\;+\;250\right)\;\cdot\;300^2}{4\;\cdot\;\mathrm\pi^2\;\cdot\;\left(1\;-\;0,3^2\right)\;\cdot\;289,4\;\cdot\;50^2\;\cdot\;250^2}\;=\;95,9\;\mathrm{kN}/\mathrm{cm}^2\end{array}$

Darin beschreiben Isl,1 und Asl,1 das Flächenträgheitsmoment des Bruttoquerschnitts und die Bruttoquerschnittsfläche des Ersatzdruckstabes nach [1], A.2.1(2) für Knicken quer zur Blechebene sowie b1 und b2 die Abstände der Steifen zu den Längsrändern (b1 + b2 = b).

Der Spannungsverlauf ist konstant. Daher entspricht die elastische Plattenbeulspannung σcr,p der elastischen kritischen Knickspannung σcr,sl.

${\mathrm\sigma}_{\mathrm{cr},\mathrm p}\;=\;{\mathrm\sigma}_{\mathrm{cr},\mathrm{sl}}\;=\;95,9\;\mathrm{kN}/\mathrm{cm}^2$

Bild 03 - Bruttoquerschnitt Ersatzdruckstab

Die Bruttoquerschnittsfläche Ac des längs ausgesteiften Blechfeldes ohne Berücksichtigung der durch ein angrenzendes Plattenbauteil gestützten Randbleche und die effektive Querschnittsfläche Ac,eff,loc,p des zuvor beschriebenen Bereiches berechnen sich wie folgt:

${\mathrm A}_\mathrm c\;=\;\left({\mathrm b}_{1,\inf}\;+\;{\mathrm b}_{2,\sup}\;+\;{\mathrm t}_\mathrm{st}\right)\;\cdot\;{\mathrm t}_\mathrm w\;+\;{\mathrm b}_\mathrm{st}\;\cdot\;{\mathrm t}_\mathrm{st}\;=\;\left(24,38\;+\;124,38\;+\;2,5\right)\;\cdot\;1,5\;+\;25\;\cdot\;2,5\;=\;289,4\;\mathrm{cm}^2$

Die Steife fällt in die Querschnittsklasse 3, sodass die effektive Querschnittsfläche der Steife der Bruttoquerschnittsfläche der Steife entspricht.

${\mathrm A}_{\mathrm c,\mathrm{eff},\mathrm{loc},\mathrm p}\;=\;\left({\mathrm b}_{1,\inf,\mathrm{eff}}\;+\;{\mathrm b}_{2,\sup,\mathrm{eff}}\;+\;{\mathrm t}_\mathrm{st}\right)\;\cdot\;{\mathrm t}_\mathrm w\;+\;{\mathrm b}_{\mathrm{st},\mathrm{eff}}\;\cdot\;{\mathrm t}_\mathrm{st}\;=\;\left(24,38\;+\;32,54\;+\;2,5\right)\;\cdot\;1,5\;+\;25\;\cdot\;2,5\;=\;151,6\;\mathrm{cm}^2$

Die Querschnittswerte sind in Bild 04 dargestellt.

Bild 04 - Brutto- und effektiver Querschnitt infolge lokalen Beulens

Der Abminderungsfaktor βa,c,p berechnet sich nach [1], Abschnitt 4.5.2 zu:

$\begin{array}{l}{\mathrm\beta}_{\mathrm a,\mathrm c,\mathrm p}\;=\;\frac{{\mathrm A}_{\mathrm c,\mathrm{eff},\mathrm{loc},\mathrm p}}{{\mathrm A}_\mathrm c}\\{\mathrm\beta}_{\mathrm a,\mathrm c,\mathrm p}\;=\;\frac{151,6}{289,4}\;=\;0,524\end{array}$

Der globale Schlankheitsgrad ${\overline{\mathrm\lambda}}_\mathrm p$ der ausgesteiften Platte ergibt sich nach [1], Gleichung (4.7) zu:

${\overline{\mathrm\lambda}}_\mathrm p\;=\;\sqrt{\frac{{\mathrm\beta}_{\mathrm a,\mathrm c,\mathrm p}\;\cdot\;{\mathrm f}_\mathrm y}{{\mathrm\sigma}_{\mathrm{cr},\mathrm p}}}=\sqrt{\frac{0,524\;\cdot\;35,5}{95,9}}\;=\;0,440$$<\;0,5\;+\;\sqrt{0,085\;-\;0,055\;\cdot\;\mathrm\psi}$
 $<\;0,5\;+\;\sqrt{0,085\;-\;0,055\;\cdot\;1}\;=\;0,673$

Der Schlankheitsgrad ${\overline{\mathrm\lambda}}_\mathrm p$ ist kleiner als der Grenzwert 0,673 nach [1], 4.4(2). Es ist somit keine Abminderung infolge plattenartigen Verhaltens notwendig, d. h. ρp = 1,0.

Knickstabähnliches Verhalten

Die elastische kritische Knickspannung σcr,c wird gemäß [1], Abschnitt 4.5.3(3) ermittelt. Es wird hierzu zunächst die Knickspannung σcr,c,sl der am höchstbelasteten Druckrand liegenden Steife nach [1], Gleichung (4.9) ermittelt:

${\mathrm\sigma}_{\mathrm{cr},\mathrm c,\mathrm{sl}}\;=\;\frac{\mathrm\pi^2\;\cdot\;\mathrm E\;\cdot\;{\mathrm I}_\mathrm{sl}}{{\mathrm A}_\mathrm{sl}\;\cdot\;\mathrm a^2}\;=\;\frac{\mathrm\pi^2\;\cdot\;21.000\;\cdot\;11.900}{289,4\;\cdot\;300^2}\;=\;94,7\;\mathrm{kN}/\mathrm{cm}^2$

Der Spannungsverlauf ist konstant. Daher entspricht die elastische kritische Knickspannung σcr,c der elastischen Knickspannung σcr,c,sl der am höchstbelasteten Druckrand liegenden Steife:

σcr,c = σcr,c,sl = 94,7 kN/cm²

Der Abminderungsfaktor βa,c,c berechnet sich nach [1], Abschnitt 4.5.3(4) zu:

${\mathrm\beta}_{\mathrm a,\mathrm c,\mathrm c}\;=\;\frac{{\mathrm A}_{\mathrm{sl},\mathrm{eff}}}{{\mathrm A}_\mathrm{sl}}\;=\;\frac{151,6}{289,4}\;=\;0,524$

Der Schlankheitsgrad ${\overline{\mathrm\lambda}}_\mathrm c$ des Ersatzdruckstabes ergibt sich nach [1], Gleichung (4.11) zu:

${\overline{\mathrm\lambda}}_\mathrm c\;=\;\sqrt{\frac{{\mathrm\beta}_{\mathrm a,\mathrm c,\mathrm c}\;\cdot\;{\mathrm f}_\mathrm y}{{\mathrm\sigma}_{\mathrm{cr},\mathrm c}}}\;=\;\sqrt{\frac{0,524\;\cdot\;35,5}{94,7}}\;=\;0,443$

Gemäß [1], Abschnitt 4.5.3(5) errechnet sich der Trägheitsradius i zu:

$\mathrm i\;=\;\sqrt{\frac{{\mathrm I}_\mathrm{sl}}{{\mathrm A}_\mathrm{sl}}}\;=\;\sqrt{\frac{11.900}{289,4}}\;=\;6,41\;\mathrm{cm}$

Der Abstand e ist der größere der beiden Abstände nach [1], Bild A.1, das heißt: entweder der Abstand e1 zwischen dem Schwerpunkt der vom Blech isoliert betrachteten, angebrachten Einzelsteife ohne mitwirkende Breite zur Schwerachse des ausgesteiften Blechfeldes oder der Abstand e2 der Schwerachse des ausgesteiften Blechfeldes zur Mittelebene des Bleches. Die Abstände sind in Bild 05 dargestellt.

Bild 05 - Ersatzdruckstab und Steife: Abstände e1, e2

e = max (e1, e2) = max(10,39 cm, 2,86 cm) = 10,39 cm

Der Imperfektionsbeiwert αe ermittelt sich gemäß [1], Gleichung (4.12) mit α = 0,49 für offene Steifenquerschnitte zu:

${\mathrm\alpha}_\mathrm e\;=\;\mathrm\alpha\;+\;\frac{0,09}{\mathrm i\;/\;\mathrm e}\;=\;0,49\;+\;\frac{0,09}{6,41\;/\;10,39}\;=\;0,636$

Der Abminderungsfaktor χc wird nach [3], 6.3.1.2 bestimmt:

$\begin{array}{l}\mathrm\phi\;=\;0,5\;\cdot\;\left(1,0\;+\;{\mathrm\alpha}_\mathrm e\;\cdot\;\left({\overline{\mathrm\lambda}}_\mathrm c\;-\;0,2\right)\;+\;\overline{\mathrm\lambda}_\mathrm c^2\right)\;=\;0,5\;\cdot\;\left(1,0\;+\;0,636\;\cdot\;\left(0,443\;-\;0,2\right)\;+\;0,443^2\right)\;=\;0,675\\{\mathrm\chi}_\mathrm c\;=\;\frac1{\mathrm\phi\;+\;\sqrt{\mathrm\phi^2\;-\;\overline{\mathrm\lambda}_\mathrm c^2}}\;=\;\frac1{0,675\;+\;\sqrt{0,675^2\;-\;0,443^2}}\;=\;0,844\;<\;1\end{array}$

Interaktion zwischen knickstabähnlichem und plattenartigem Verhalten

Das Tragverhalten des Gesamtfeldes wird über den Beiwert ξ nach [1], Abschnitt 4.5.4(1) bestimmt:

$\begin{array}{l}\mathrm\xi\;=\;\frac{{\mathrm\sigma}_{\mathrm{cr},\mathrm p}}{{\mathrm\sigma}_{\mathrm{cr},\mathrm c}}\;-\;1\;\mathrm{jedoch}\;0\;\leq\;\mathrm\xi\;\leq\;1\\\mathrm\xi\;=\;\frac{95,9}{94,7}\;-\;1\;=\;0,013\end{array}$

Der endgültige Abminderungsfaktor ρc wird mit der Interaktionsgleichung nach [1], Gleichung (4.13) bestimmt:

${\mathrm\rho}_\mathrm c\;=\;({\mathrm\rho}_\mathrm p\;-\;{\mathrm\chi}_\mathrm c)\;\cdot\;\mathrm\xi\;\cdot\;(2\;-\;\mathrm\xi)\;+\;{\mathrm\chi}_\mathrm c\;=\;\left(1\;-\;0,844\right)\;\cdot\;0,013\;\cdot\;\left(2\;-\;0,013\right)\;+\;0,844\;=\;0,848$

Effektive Querschnittswerte

Die wirksame Fläche der Druckzone Ac,eff des ausgesteiften Blechfeldes wird gemäß [1], Gleichung (4.5) berechnet:

${\mathrm A}_{\mathrm c,\mathrm{eff}}\;=\;{\mathrm\rho}_\mathrm c\;\cdot\;{\mathrm A}_{\mathrm c,\mathrm{eff},\mathrm{loc},\mathrm p}\;+\;{\textstyle\sum}{\mathrm b}_{\mathrm{edge},\mathrm{eff}}\;\cdot\;\mathrm t\;=\;0,848\;\cdot\;151,6\;+\;24,38\;\cdot\;1,5\;+\;32,54\;\cdot\;1,5\;=\;214,1\;\mathrm{cm}²$

Die effektive Querschnittsfläche Aeff ergibt sich zu:

${\mathrm A}_\mathrm{eff}\;=\;{\mathrm A}_{\mathrm c,\mathrm{eff}}\;+\;2\;\cdot\;{\mathrm b}_\mathrm f\;\cdot\;{\mathrm t}_\mathrm f\;=\;214,1\;+\;2\;\cdot\;80\;\cdot\;4\;=\;854,1\;\mathrm{cm}²$

Bild 06 - Effektiver Querschnitt infolge lokalen und globalen Beulens

Nachweis des ausgesteiften Beulfeldes

Die Schwerachsen des Bruttoquerschnitts und des wirksamen Querschnitts fallen nicht zusammen, sodass hier zusätzliche einwirkende Biegemomente infolge der Verschiebung der Schwerachse des wirksamen Querschnitts bezogen auf die Schwerachse des Bruttoquerschnitts berücksichtigt werden müssen. Diese zusätzlichen Biegemomente berechnen sich zu:

$\begin{array}{l}{\mathrm e}_\mathrm y\;=\;0,82\;-\;0,72\;=\;0,10\;\mathrm{cm}\\{\mathrm e}_\mathrm z\;=\;164,97\;-\;157,42\;=\;7,55\;\mathrm{cm}\\{\mathrm M}_\mathrm y\;=\;\mathrm N\;\cdot\;{\mathrm e}_\mathrm z\;=\;\:4.000\;\cdot\;7,55\;=\;30.202,4\;\mathrm{kNcm}\\{\mathrm M}_\mathrm z\;=\;\mathrm N\;\cdot\;{\mathrm e}_\mathrm y\;=\;-4.000\;\cdot\;0,10\;=\;-414,3\;\mathrm{kNcm}\\{\mathrm M}_\mathrm u\;=\;30.203,7\;\mathrm{KNcm}\\{\mathrm M}_\mathrm v\;=\;-306,4\;\mathrm{KNcm}\end{array}$

Die maximale Spannung ergibt sich zu:

${\mathrm\sigma}_\mathrm{eff}\;=\;\frac{\mathrm N}{{\mathrm A}_\mathrm{eff}}\;+\;\frac{{\mathrm M}_\mathrm u\;\cdot\;{\mathrm e}_\mathrm v}{{\mathrm I}_{\mathrm u,\mathrm{eff}}}\;-\;\frac{{\mathrm M}_\mathrm v\;\cdot\;{\mathrm e}_\mathrm u}{{\mathrm I}_{\mathrm v,\mathrm{eff}}}\;=\;\frac{4.000}{854,1}\;+\;\frac{30.203,7\;\cdot\;165,12}{17.466.764}\;-\;\frac{-306,4\;\cdot\;40,23}{352.626}\;=\;5,01\;\mathrm{kN}/\mathrm{cm}²$

Der Nachweis erfolgt nach [1], Gleichung (4.15) zu:

${\mathrm\eta}_1\;=\;\frac{{\mathrm\sigma}_\mathrm{eff}}{\displaystyle\frac{{\mathrm f}_\mathrm y}{{\mathrm\gamma}_{\mathrm M0}}}\;=\;\frac{5,01}{\displaystyle\frac{34,5}{1,0}}\;=\;0,15$

Nachweis der Drillknicksicherheit

Gemäß [1], Abschnitt 9.2.1(8) ist in der Regel das folgende Kriterium zu erfüllen, um Drillknicken von Steifen mit offenen Querschnitten zu vermeiden:

$\begin{array}{l}{\mathrm\eta}_1\;=\;\frac{5,3\;\cdot\;{\mathrm f}_\mathrm y\;\cdot\;{\mathrm I}_\mathrm p}{\mathrm E\;\cdot\;{\mathrm I}_{\mathrm{St}.\;\mathrm{Ven}}}\;\leq\;1\\{\mathrm\eta}_1\;=\;\frac{5,3\;\cdot\;34,5\;\cdot\;13.053}{21.000\;\cdot\;122}\;=\;0,93\;\leq\;1\end{array}$

Darin bezeichnen Ip und ISt. Ven das polare Trägheitsmoment und St. Venant'sche Torsionsträgheitsmoment des Steifenquerschnitts alleine (ohne Blech), gerechnet um den Anschlusspunkt an das Blech.

Wird die Wölbsteifigkeit berücksichtigt, ist zunächst die kritische Drillknickspannung σcr zu ermitteln. Diese berechnet sich nach [4], Gleichung (2.119) beziehungsweise Gleichung (2.120) wie folgt:

$\begin{array}{l}{\mathrm\sigma}_{\mathrm{cr}1}\;=\;\frac1{{\mathrm I}_\mathrm p}\;\cdot\;\left(\frac{\mathrm\pi^2\;\cdot\;\mathrm E\;\cdot\;{\mathrm I}_\mathrm\omega}{\mathrm l^2}\;+\;\mathrm G\;\cdot\;{\mathrm I}_{\mathrm{St}.\;\;\mathrm{Ven}}\right)\;\mathrm{für}\;\mathrm l\;<\;\mathrm L\;_\mathrm{cr}\\{\mathrm\sigma}_{\mathrm{cr}2}\;=\;\frac1{{\mathrm I}_\mathrm p}\;\cdot\;\left(2\;\cdot\;\sqrt{{\mathrm C}_\mathrm\theta\;\cdot\;\mathrm E\;\cdot\;{\mathrm I}_\mathrm\omega}\;+\;\mathrm G\;\cdot\;{\mathrm I}_{\mathrm{St}.\;\;\mathrm{Ven}}\right)\;\mathrm{für}\;\mathrm l\;>\;{\mathrm L}_\mathrm{cr}\end{array}$

Die Steife hat einen Wölbwiderstand Iω = 0 cm6. Die kritische Drillknickspannung σcr vereinfacht sich damit zu:

$\begin{array}{l}{\mathrm\sigma}_{\mathrm{cr}1}\;=\;{\mathrm\sigma}_{\mathrm{cr}2}\;=\;\frac1{{\mathrm I}_\mathrm p}\;\cdot\;\mathrm G\;\cdot\;{\mathrm I}_{\mathrm{St}.\;\;\mathrm{Ven}}\\{\mathrm\sigma}_{\mathrm{cr}1}\;=\;{\mathrm\sigma}_{\mathrm{cr}2}\;=\;\frac1{13.053}\;\cdot\;8.077\;\cdot\;122\;=\;75,5\;\mathrm{kN}/\mathrm{cm}²\end{array}$

Darin bezeichnen Ip und ISt. Ven das polare Trägheitsmoment und St. Venant'sche Torsionsträgheitsmoment des Steifenquerschnitts alleine (ohne Blech), gerechnet um den Anschlusspunkt an das Blech.

Gemäß [1], Abschnitt 9.2.1(9) ist bei Berücksichtigung der Wölbsteifigkeit in der Regel das Kriterium in 9.2.1(8) oder das folgende Kriterium zu erfüllen:

$\begin{array}{l}{\mathrm\eta}_2\;=\;\frac{\mathrm\theta\;\cdot\;{\mathrm f}_\mathrm y}{{\mathrm\sigma}_{\mathrm{cr}1}}\;\leq\;1\\{\mathrm\eta}_3\;=\;\frac{\mathrm\theta\;\cdot\;{\mathrm f}_\mathrm y}{{\mathrm\sigma}_{\mathrm{cr}2}}\;\leq\;1\end{array}$

Mit einem Beiwert zur Sicherstellung elastischen Verhaltens entsprechend der Querschnittsklasse 3 gemäß [5] von θ = 2 für Steifen mit geringer Wölbsteifigkeit (zum Beispiel Flachstahl oder Wulstflachstahl) ergibt sich:

${\mathrm\eta}_2\;=\;{\mathrm\eta}_3\;=\;\frac{2\;\cdot\;34,5}{75,5}\;=\;0,91\;\leq\;1$

Der Nachweis der Drillknicksicherheit ist damit erbracht.

DUENQ

Die Berechnung von längs ausgesteiften Blechfeldern gemäß [1], Abschnitt 4.5 kann in DUENQ durchgeführt werden. In den Basisangaben ist dazu das Kontrollfeld "c/t-Teile und wirksame Querschnittswerte" zu aktivieren. Danach ist in den Berechnungsparametern "EN 1993-1-1 und EN 1993-1-5" auszuwählen sowie das Kontrollfeld "Wirksamer Querschnitt nach EN 1993-1-5, Abschnitt 4.5" anzuhaken. Die Ermittlung der wirksamen Breiten sollte gemäß [1], Abschnitt 4.4(3) in einem iterativen Prozess erfolgen. Im Beispiel wurde nur mit einer Iteration gerechnet, sodass auch in DUENQ nur eine Iteration eingestellt wird (siehe Bild 07).

Bild 07 - Berechnungsparameter

Es sind zunächst die Elemente des Querschnitts einzugeben. Die c/t-Teile werden in der Regel automatisch aus den Geometriebedingungen erzeugt, können aber auch benutzerdefiniert in Tabelle "1.7 Querschnittsteile für Klassifizierung nach EN 1993-1" (siehe Bild 08) oder dem entsprechenden Dialog angelegt werden.

Bild 08 - Querschnittsteile für Klassifizierung

Die Beulsteifen können dann in der Tabelle "1.8 Beulsteifen" beziehungsweise dem entsprechenden Dialog definiert werden (siehe Bild 09).

Bild 09 - Beulsteifen

Des Weiteren ist das Beulfeld in Tabelle "1.9 Beulfelder" (siehe Bild 10) beziehungsweise dem entsprechenden Dialog anzugeben. Dazu sind die Elemente des Beulfelds auszuwählen und der Quersteifenabstand a einzugeben. Wird kein Quersteifenabstand definiert, so wird der Wert a = 10.000 mm für die Berechnung angesetzt. Die im Beulfeld liegenden Steifen werden automatisch erkannt. Das Beulfeld muss an seinem Anfang und Ende gestützt sein, also mit einer Lagerung versehen sein.

Bild 10 - Beulfelder

Die Ergebnisse des wirksamen Querschnitts sind mit der Schaltfläche [Effektive Breiten] zugänglich.

Bild 11 - Ergebnisse

Schlüsselwörter

Einzelfeldbeulen Gesamtfeldbeulen

Literatur

[1]   Eurocode 3: Bemessung und Konstruktion von Stahlbauten - Teil 1-5: Plattenförmige Bauteile; EN 1993-1-5:2006 + AC:2009
[2]   Kuhlmann, U.: Stahlbau-Kalender 2015 - Eurocode 3 - Grundnorm, Leichtbau. Berlin: Ernst & Sohn, 2015
[3]   Eurocode 3: Bemessung und Konstruktion von Stahlbauten − Teil 1-1: Allgemeine Bemessungsregeln und Regeln für den Hochbau. Beuth Verlag GmbH, Berlin, 2010
[4]   Beg, D.; Kuhlmann, U.; Davaine, L.; Braun, B.: Design of Plated Structures. Eurocode 3: Design of Steel Structures. Part 1-5 Design of Plated Structures. Berlin: Ernst & Sohn, 2011
[5]   Johansson, B.; Maquoi, R.; Sedlacek, G.; Müller, C.; Beg, D.: Commentary and Worked Examples to EN 1993-1-5, Plated Structural Elements. Luxemburg: Office for Official Publications of the European Communities, 2007

Downloads

Links

Querschnittswerte Dünnwandige
DUENQ 8.xx

Querschnittswerte-Programme

Querschnittswerte und Spannungen dünnwandiger Profile

Erstlizenzpreis
1.000,00 EUR
;