System und Lasten
BETON Maske '3.1 Vorhandene Längsbewehrung'
BETON Maske '1.1 Basisangaben' für Gebrauchstauglichkeit mit Details für nichtlineare Berechnung nach [2]
BETON Maske '1.3 Querschnitte' mit Einstellungen für Kriechen und Schwinden
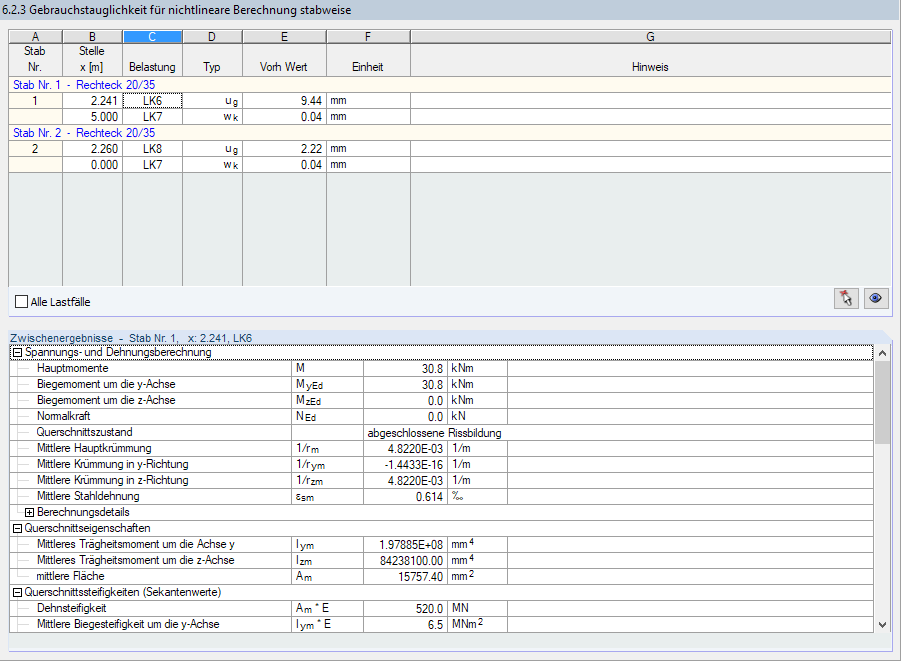
Maske '6.2.3 Gebrauchstauglichkeit für nichtlineare Berechnung stabweise'
Vergleich der Verformungen
Steifigkeitsverlauf Iym ∙ E
System und Lasten
BETON Maske '3.1 Vorhandene Längsbewehrung'
BETON Maske '1.1 Basisangaben' für Gebrauchstauglichkeit mit Details für nichtlineare Berechnung nach [2]
BETON Maske '1.3 Querschnitte' mit Einstellungen für Kriechen und Schwinden
Maske '6.2.3 Gebrauchstauglichkeit für nichtlineare Berechnung stabweise'
Vergleich der Verformungen
Steifigkeitsverlauf Iym ∙ E
30. Mai 2024
009374
  • RFEM 5
  • RSTAB 8
  • RF-BETON 5
    • BETON 8
    • RF-BETON NL 5
    • EC2 für RFEM 5
    • Stahlbetonbau
    • Nichtlineare Analyse
    • Eurocode 2

System und Lasten

Verwendet in
  • Nichtlineare Berechnung mit RF-/BETON
Teilen
30. Mai 2024
009375
  • RFEM 5
  • RSTAB 8
  • RF-BETON 5
    • BETON 8
    • RF-BETON NL 5
    • EC2 für RFEM 5
    • Stahlbetonbau
    • Nichtlineare Analyse
    • Eurocode 2
BETON Maske '3.1 Vorhandene Längsbewehrung'
Verwendet in
  • Nichtlineare Berechnung mit RF-/BETON
Teilen
30. Mai 2024
009376
  • RFEM 5
  • RSTAB 8
  • RF-BETON 5
    • BETON 8
    • RF-BETON NL 5
    • EC2 für RFEM 5
    • Stahlbetonbau
    • Nichtlineare Analyse
    • Eurocode 2
BETON Maske '1.1 Basisangaben' für Gebrauchstauglichkeit mit Details für nichtlineare Berechnung nach [2]
Verwendet in
  • Nichtlineare Berechnung mit RF-/BETON
Teilen
30. Mai 2024
009377
  • RFEM 5
  • RSTAB 8
  • RF-BETON 5
    • BETON 8
    • RF-BETON NL 5
    • EC2 für RFEM 5
    • Stahlbetonbau
    • Nichtlineare Analyse
    • Eurocode 2
BETON Maske '1.3 Querschnitte' mit Einstellungen für Kriechen und Schwinden
Verwendet in
  • Nichtlineare Berechnung mit RF-/BETON
Teilen
30. Mai 2024
009378
  • RFEM 5
  • RSTAB 8
  • RF-BETON 5
    • BETON 8
    • RF-BETON NL 5
    • EC2 für RFEM 5
    • Stahlbetonbau
    • Nichtlineare Analyse
    • Eurocode 2
Maske '6.2.3 Gebrauchstauglichkeit für nichtlineare Berechnung stabweise'
Verwendet in
  • Nichtlineare Berechnung mit RF-/BETON
Teilen
30. Mai 2024
009379
  • RFEM 5
  • RSTAB 8
  • RF-BETON 5
    • BETON 8
    • RF-BETON NL 5
    • EC2 für RFEM 5
    • Stahlbetonbau
    • Nichtlineare Analyse
    • Eurocode 2
Vergleich der Verformungen
Verwendet in
  • Nichtlineare Berechnung mit RF-/BETON
Teilen
30. Mai 2024
009380
  • RFEM 5
  • RSTAB 8
  • RF-BETON 5
    • BETON 8
    • RF-BETON NL 5
    • EC2 für RFEM 5
    • Stahlbetonbau
    • Nichtlineare Analyse
    • Eurocode 2
Steifigkeitsverlauf Iym ∙ E
Verwendet in
  • Nichtlineare Berechnung mit RF-/BETON
Teilen