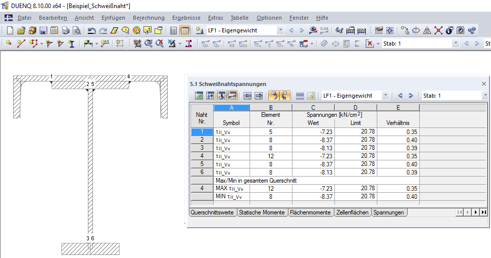
Tabelle 5.1 Schweißnahtspannungen
Tabelle 5.1 Schweißnahtspannungen
30. Mai 2024
009454
  • DUENQ 8
  • Stahlbau
  • Stahlverbindungen
    • Eurocode 3

Tabelle 5.1 Schweißnahtspannungen

Verwendet in
  • Nachweis von Kehlnähten nach EN 1993-1-8
Teilen