System
Querschnittskennwerte
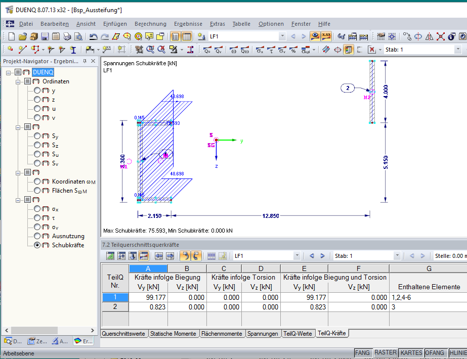
Teilquerschnittsquerkräfte
System
Querschnittskennwerte
Teilquerschnittsquerkräfte
30. Mai 2024
009631
  • RFEM 5
  • DUENQ 8

System

Verwendet in
  • Aussteifung von Tragwerken
Teilen
30. Mai 2024
009632
  • RFEM 5
  • DUENQ 8
Querschnittskennwerte
Verwendet in
  • Aussteifung von Tragwerken
Teilen
30. Mai 2024
009633
  • RFEM 5
  • DUENQ 8
Teilquerschnittsquerkräfte
Verwendet in
  • Aussteifung von Tragwerken
Teilen