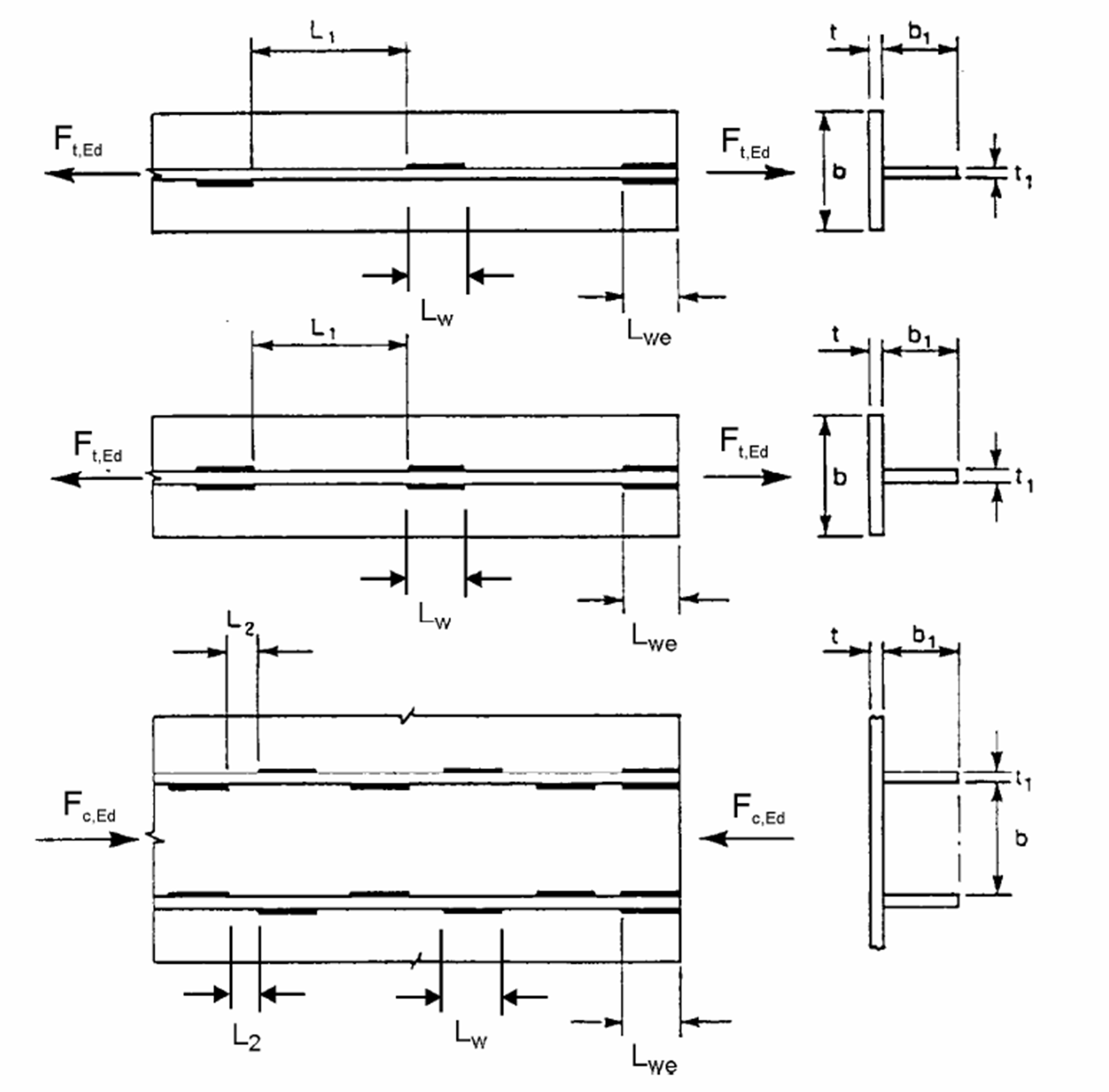
Anordnungsmöglichkeiten
Durchgehende Schweißnaht
DIN EN 1993-6 Tab. 5.1
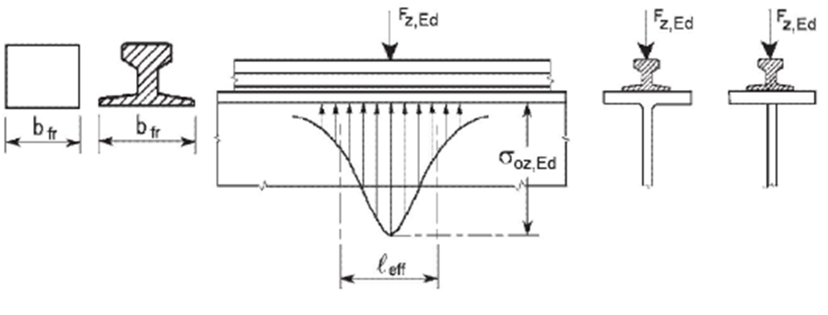
Effektive Lastausbreitungslänge
Spannungen im Grenzzustand der Tragfähigkeit
Kehlnahtabschnitte
Spannungen im Grenzzustand der Tragfähigkeit unterbrochen gegenüber
Spannungen im Grenzzustand der Tragfähigkeit unterbrochen versetzt
Anordnungsmöglichkeiten
Durchgehende Schweißnaht
DIN EN 1993-6 Tab. 5.1
Effektive Lastausbreitungslänge
Spannungen im Grenzzustand der Tragfähigkeit
Kehlnahtabschnitte
Spannungen im Grenzzustand der Tragfähigkeit unterbrochen gegenüber
Spannungen im Grenzzustand der Tragfähigkeit unterbrochen versetzt
30. Mai 2024
009717
  • KRANBAHN 8
  • Krane und Kranbahnen
  • Eurocode 3

Anordnungsmöglichkeiten

Verwendet in
  • Bemessung der Schienenschweißnähte von Kranbahnträgern nach DIN EN 1993-6 im Grenzzustand der Tragfähigkeit
Teilen
30. Mai 2024
009718
  • KRANBAHN 8
  • Krane und Kranbahnen
  • Eurocode 3
Durchgehende Schweißnaht
Verwendet in
  • Bemessung der Schienenschweißnähte von Kranbahnträgern nach DIN EN 1993-6 im Grenzzustand der Tragfähigkeit
Teilen
30. Mai 2024
009719
  • KRANBAHN 8
  • Krane und Kranbahnen
  • Eurocode 3
DIN EN 1993-6 Tab. 5.1
Verwendet in
  • Bemessung der Schienenschweißnähte von Kranbahnträgern nach DIN EN 1993-6 im Grenzzustand der Tragfähigkeit
Teilen
30. Mai 2024
009720
  • KRANBAHN 8
  • Krane und Kranbahnen
  • Eurocode 3
Effektive Lastausbreitungslänge
Verwendet in
  • Bemessung der Schienenschweißnähte von Kranbahnträgern nach DIN EN 1993-6 im Grenzzustand der Tragfähigkeit
Teilen
30. Mai 2024
009721
  • KRANBAHN 8
  • Krane und Kranbahnen
  • Eurocode 3
Spannungen im Grenzzustand der Tragfähigkeit
Verwendet in
  • Bemessung der Schienenschweißnähte von Kranbahnträgern nach DIN EN 1993-6 im Grenzzustand der Tragfähigkeit
Teilen
30. Mai 2024
009722
  • KRANBAHN 8
  • Krane und Kranbahnen
  • Eurocode 3
Kehlnahtabschnitte
Verwendet in
  • Bemessung der Schienenschweißnähte von Kranbahnträgern nach DIN EN 1993-6 im Grenzzustand der Tragfähigkeit
Teilen
30. Mai 2024
009723
  • KRANBAHN 8
  • Krane und Kranbahnen
  • Eurocode 3
Spannungen im Grenzzustand der Tragfähigkeit unterbrochen gegenüber
Verwendet in
  • Bemessung der Schienenschweißnähte von Kranbahnträgern nach DIN EN 1993-6 im Grenzzustand der Tragfähigkeit
Teilen
30. Mai 2024
009724
  • KRANBAHN 8
  • Krane und Kranbahnen
  • Eurocode 3
Spannungen im Grenzzustand der Tragfähigkeit unterbrochen versetzt
Verwendet in
  • Bemessung der Schienenschweißnähte von Kranbahnträgern nach DIN EN 1993-6 im Grenzzustand der Tragfähigkeit
Teilen