12811x
001402
13. Februar 2017

Bemessung der Schienenschweißnähte von Kranbahnträgern nach DIN EN 1993-6 im Grenzzustand der Tragfähigkeit

Sofern Kranbahnträger mit Flachstahlschienen konzipiert werden, ist auch immer die Verschweißung dieser Schienen ein Detail für die Bemessung beziehungsweise Auslegung. Generell kann hierfür zwischen durchlaufenden oder nicht durchlaufenden Kehlnähten als Befestigung gewählt werden. Der folgende Beitrag soll einen Überblick über die Nachweisführungen und deren Besonderheiten geben, speziell bei Verwendung der DIN EN 1993-6.

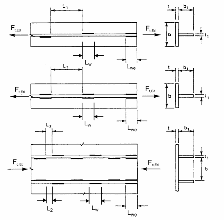
Anordnungsmöglichkeiten der Schienenkehlnähte

Für nicht durchlaufende Kehlnahtverbindungen kann weiterhin zwischen zwei Varianten gewählt werden. Diese sind auf folgendem Bild aus [2] dargestellt.

Die Schweißnahtabschnitte können entweder gegenüberliegend oder versetzt angeordnet werden. Für die Bemessung hat die versetzte Anordnung den Nachteil, dass zur Lastabtragung der Horizontallasten nur ein Nahtabschnitt herangezogen werden kann. Die dritte Variante, die im oberen Bild nicht dargestellt ist, ist natürlich die durchlaufende Kehlnaht entlang der gesamten Schienenlänge.

Effektive Lastausbreitungslänge

Für die Ermittlung der entsprechenden Schweißnahtspannungen ist die Berechnung der effektiven Lastausbreitungslänge erforderlich. Dabei unterscheidet die DIN EN 1993-6 zwischen drei Möglichkeiten und stellt die Tabelle 5.1 mit den zugehörigen Formeln für die Berechnung von leff zur Verfügung.

Dabei bezieht sich leff auf die Unterkante des Oberflansches. Für die Schweißnahtbemessung ist jedoch die Oberkante des Flansches maßgebend. Daher reduziert sich leff um die doppelte Flanschdicke tf.

Nachweise im Grenzzustand der Tragfähigkeit

Die Spannungen der Schienenschweißnähte werden mit dem richtungsbezogenen Verfahren aus [2] berechnet. Dabei beziehen sich die Spannungen auf die winkelhalbierende Fläche der Kehlnaht. Entsprechend [2], (NA) Kap. 4.5.2 sind für die Schweißnaht konstruktive Mindestdicken einzuhalten. Vorgeschrieben ist eine Naht von mindestens 3 mm oder die Anwendung folgender Formel:

Der exzentrische Radlastangriff von 1/4 der Schienenkopfbreite wird im Grenzzustand der Tragfähigkeit nach DIN EN 1993-6 nicht berücksichtigt. Daher erfolgt hierfür immer eine Bemessung infolge zentrischer Radlastbelastung.

Fall 1: durchgehende Schienenschweißnaht

Für unterbrochene Schienenkehlnähte ist noch zu untersuchen, ob die Nahtabschnittslänge lw kleiner als die berechnete Lastausbreitungslänge leff ist. Generell ist das Minimum beider Werte für die Bemessung maßgebend.

Fall 2: gegenüberliegende unterbrochene Schienenschweißnaht

Fall 3: versetzte unterbrochene Schienenschweißnaht

Da der horizontale Lastabtrag bei versetzter Anordnung der Schweißnähte nur über einen Nahtabschnitt erfolgt, entfällt im Term von HEd der Divisor 2.


Links
Referenzen


;