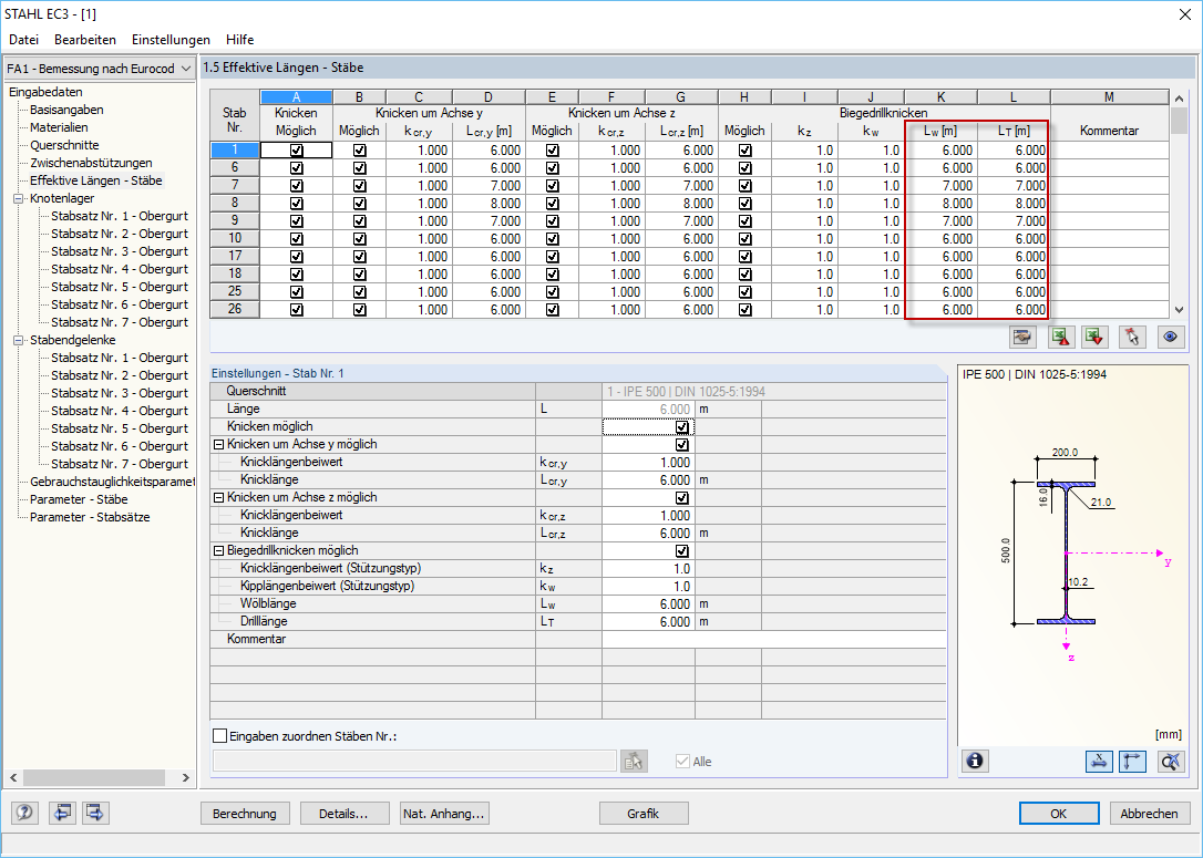
Maske 1.5 "Effektive Längen - Stäbe"
Maske 1.5 "Effektive Längen - Stäbe"
30. Mai 2024
016929
  • STAHL EC3 8
  • RF-STAHL EC3 5
  • Stahlbau
    • Eurocode 3

Maske 1.5 "Effektive Längen - Stäbe"

Verwendet in
  • Unterschied zwischen LW und LT in den Masken 1.5 und 1.6
Teilen