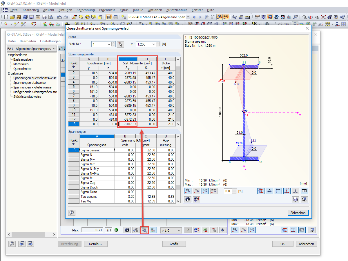
Statische Momente in RF-/STAHL
Statische Momente in RF-/STAHL
30. Mai 2024
019737
  • FE-BEUL 8
  • FE-BEUL 8 | Eigenständiges Programm
  • RF-STAHL 5
    • STAHL 8
    • RF-FE-BEUL 5
    • Stahlbau
    • Spannungsnachweis
    • Nichtlineare Beulanalyse
    • Stabilitätsnachweis
    • DIN 18800

Statische Momente in RF-/STAHL

Verwendet in
  • Schubspannung in FE-BEUL und RF-/STAHL
Teilen