1597x
004870
15. Dezember 2020

Schubspannung in FE-BEUL und RF-/STAHL

Bei einem Beulsicherheitsnachweis ermittelt FE-BEUL eine maßgebende Schubspannung von τ = 7,45 kN/cm², während sich in RF-/STAHL eine maximale Schubspannung von τ = 8,20 kN/cm² ergibt. Woher resultiert dieser Unterschied?


Antwort:

Schlanke Träger erhalten in den meisten Fällen eine im Steg des Querschnitts parabolisch verlaufende Schubspannung, welche bei doppelt symmetrischen Querschnitten im Schwerpunkt den maximalen Wert hat.

Gemäß DIN 18800 Teil 3, Abschnitt 403, gilt:

Schubspannungen, die über die Breite b des Beulfeldes veränderlich sind, sind mit dem größeren der folgenden beiden Werte zu berücksichtigen:

  • Mittelwert von τ
  • 0,5 max τ

In diesem Fall wird also der Mittelwert der Schubspannung für den Beulsicherheitsnachweis verwendet.

Da die veränderliche Schubspannung τz vom statischen Moment Sy abhängt, gibt es in FE-BEUL eine Tabelle über Details der c/t-Teile des Querschnitts. Diese beinhaltet auch die mittleren statischen Momente, mit welchen in Fällen wie hier die entsprechenden Schubspannungen für den Beulsicherheitsnachweis nach der üblichen Formel, aber mit gemitteltem statischen Moment, ermittelt werden, siehe Formel und Bild 1.


Dementsprechend ergibt sich folgende Schubspannung in FE-BEUL, siehe Bild 2.

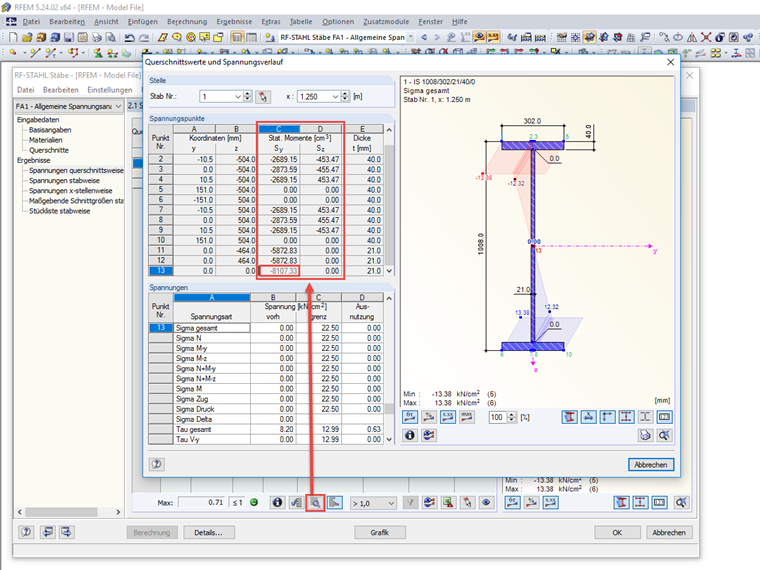
Die jeweiligen statischen Momente, mit welchen die Schubspannungen in RF-/STAHL zur Spannungsanalyse ermittelt werden, sind innerhalb der Ergebnismaske über die Schaltfläche "Querschnittswerte und Spannungen erweitert anzeigen" einzusehen, siehe Bild 3.


Autor

Herr Ackermann ist Ansprechpartner für vertriebliche Anfragen.

Downloads


;