Stahlhalle
  • 3D-Viewer
  • 3D Viewer | Babylon
  • Virtuelle Realität
Umwandlung in parametrisches Profil
  • 3D-Viewer
  • 3D Viewer | Babylon
  • Virtuelle Realität
Anpassung des parametrischen Profils
  • 3D-Viewer
  • 3D Viewer | Babylon
  • Virtuelle Realität
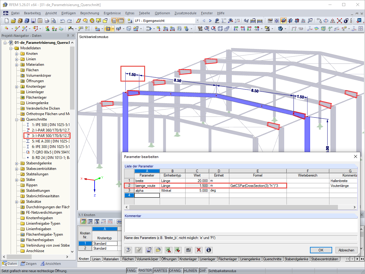
Parametrisierung der Voutenlänge in Abhängigkeit von der Querschnittshöhe
  • 3D-Viewer
  • 3D Viewer | Babylon
  • Virtuelle Realität
Your browser does not support the video tag.
  • 3D-Viewer
  • 3D Viewer | Babylon
  • Virtuelle Realität
Stahlhalle
Umwandlung in parametrisches Profil
Anpassung des parametrischen Profils
Parametrisierung der Voutenlänge in Abhängigkeit von der Querschnittshöhe
Your browser does not support the video tag.
30. Mai 2024
021862
  • RFEM 5
  • Stahlbau

Stahlhalle

Verwendet in
  • Parametrisierung von Walzquerschnitten
3D-Modell
Mehr über 3D-Modell
  • Stahlhalle Walzquerschnitt Parametrisierung
Spezifikationen
Anzahl Knoten 65
Anzahl Linien 112
Anzahl Stäbe 112
Anzahl Lastfälle 16
Anzahl Lastkombinationen 328
Anzahl Ergebniskombinationen 2
Gesamtgewicht 19,204 t
Abmessungen (metrisch) 20.587 x 30.587 x 7.169 m
Abmessungen (imperial) 67.54 x 100.35 x 23.52 feet
Programmversion 5.23.02
Teilen
30. Mai 2024
010270
  • RFEM 5
  • RSTAB 8
  • Stahlbau
Umwandlung in parametrisches Profil
Verwendet in
  • Parametrisierung von Walzquerschnitten
3D-Modell
Mehr über 3D-Modell
  • Stahlhalle Walzquerschnitt Parametrisierung
Spezifikationen
Anzahl Knoten 65
Anzahl Linien 112
Anzahl Stäbe 112
Anzahl Lastfälle 16
Anzahl Lastkombinationen 328
Anzahl Ergebniskombinationen 2
Gesamtgewicht 19,204 t
Abmessungen (metrisch) 20.587 x 30.587 x 7.169 m
Abmessungen (imperial) 67.54 x 100.35 x 23.52 feet
Programmversion 5.23.02
Teilen
30. Mai 2024
021860
  • RFEM 5
  • RSTAB 8
  • Stahlbau
Anpassung des parametrischen Profils
Verwendet in
  • Parametrisierung von Walzquerschnitten
3D-Modell
Mehr über 3D-Modell
  • Stahlhalle Walzquerschnitt Parametrisierung
Spezifikationen
Anzahl Knoten 65
Anzahl Linien 112
Anzahl Stäbe 112
Anzahl Lastfälle 16
Anzahl Lastkombinationen 328
Anzahl Ergebniskombinationen 2
Gesamtgewicht 19,204 t
Abmessungen (metrisch) 20.587 x 30.587 x 7.169 m
Abmessungen (imperial) 67.54 x 100.35 x 23.52 feet
Programmversion 5.23.02
Teilen
30. Mai 2024
021861
  • RFEM 5
  • RSTAB 8
  • Stahlbau
Parametrisierung der Voutenlänge in Abhängigkeit von der Querschnittshöhe
Verwendet in
  • Parametrisierung von Walzquerschnitten
3D-Modell
Mehr über 3D-Modell
  • Stahlhalle Walzquerschnitt Parametrisierung
Spezifikationen
Anzahl Knoten 65
Anzahl Linien 112
Anzahl Stäbe 112
Anzahl Lastfälle 16
Anzahl Lastkombinationen 328
Anzahl Ergebniskombinationen 2
Gesamtgewicht 19,204 t
Abmessungen (metrisch) 20.587 x 30.587 x 7.169 m
Abmessungen (imperial) 67.54 x 100.35 x 23.52 feet
Programmversion 5.23.02
Teilen
9. März 2024
021920
  • RFEM 5
  • Stahlbau
  • Stabilitätsnachweis
Verformung einer Halle durch Windlast, Animation
Verformung einer Halle durch Windlast

3D-Modell
Mehr über 3D-Modell
  • Stahlhalle Walzquerschnitt Parametrisierung
Spezifikationen
Anzahl Knoten 65
Anzahl Linien 112
Anzahl Stäbe 112
Anzahl Lastfälle 16
Anzahl Lastkombinationen 328
Anzahl Ergebniskombinationen 2
Gesamtgewicht 19,204 t
Abmessungen (metrisch) 20.587 x 30.587 x 7.169 m
Abmessungen (imperial) 67.54 x 100.35 x 23.52 feet
Programmversion 5.23.02
Teilen