3358x
000879
29. Juni 2021

Parametrisierung von Walzquerschnitten

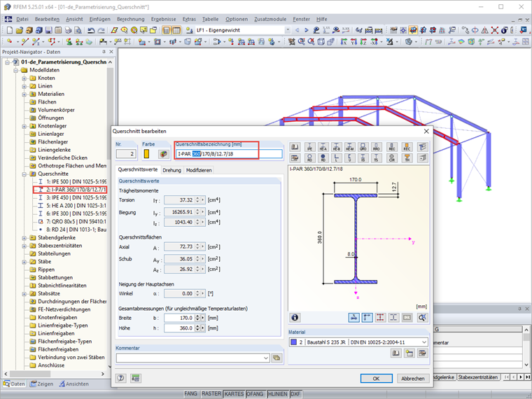
Die meisten in RFEM und RSTAB vorhandenen Walzprofile können auch mit eigenen Parametern versehen werden. Dazu wird der zu verändernde Querschnitt in der Bibliothek ausgewählt und im Anschluss auf den Button [Parametrische Eingabe...] geklickt.

Im sich daraufhin öffnenden Dialog können die Parameter angepasst und nach Bestätigung mit [OK] übernommen werden. Sollen im Nachhinein noch Parameter geändert werden, so kann dies direkt in der Querschnittsbezeichnung geschehen oder auch in der Tabelle 1.13.

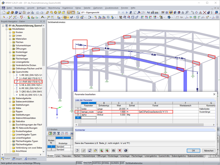
Eine weitere sehr effektive und vielfältige Option bietet die Verwendung von Parametern aus der der Parameterliste unter Berücksichtigung von Querschnittsparametern. Es können dort beliebige Variablen angelegt werden, auch über Formeln mit Bezug zu anderen Variablen oder wie beschrieben mit dem Auslesen von Querschnittsparametern.

Damit kann zum Beispiel eine Voutenlänge in Abhängigkeit von der Querschnittshöhe in der Struktur modelliert werden.


Links


;