Verifikationsbeispiel 1024 | Schubkraftübertragung in Fugen
Verifikationsbeispiel 1024 | Schubkraftübertragung in Fugen
13. August 2024
042002
  • RFEM 6

Verifikationsbeispiel 1024 | Schubkraftübertragung in Fugen

Verwendet in
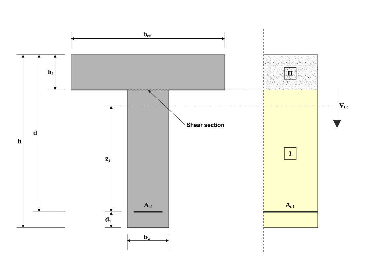
  • VE 1024 | Schubkraftübertragung in Fugen nach DIN EN 1992-1-1
Teilen