System and Loading (Dimensions in mm, Force in kN)
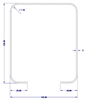
External Dimensions of Cross-Section in mm
Notional Flat Widths in mm
Effective Edge Stiffness
Determination of Spring Stiffness
Effective Stiffening of Cross-Section
Determination of Spring Stiffness
General Data
Calculation Parameters
Table 1.7 Notional Flat Widths | EN 1993-1-3
Table 1.8 Stiffeners
Table 1.9 Panels
Table 2.1 Load Cases
Table 3.1 Internal Forces
Effective Cross-Section Properties
General Data
Parameters of National Annex
Details, Cold-Formed Sections Tab
Details, Stability Tab
Figure 20 - Results
System and Loading (Dimensions in mm, Force in kN)
External Dimensions of Cross-Section in mm
Notional Flat Widths in mm
Effective Edge Stiffness
Determination of Spring Stiffness
Effective Stiffening of Cross-Section
Determination of Spring Stiffness
General Data
Calculation Parameters
Table 1.7 Notional Flat Widths | EN 1993-1-3
Table 1.8 Stiffeners
Table 1.9 Panels
Table 2.1 Load Cases
Table 3.1 Internal Forces
Effective Cross-Section Properties
General Data
Parameters of National Annex
Details, Cold-Formed Sections Tab
Details, Stability Tab
Figure 20 - Results
2024-05-30
008649
  • SHAPE THIN 9
  • RFEM 5
  • RF-STEEL Cold-Formed Sections 5
    • RSTAB 8
    • STEEL Cold-Formed Sections 8
    • Steel Structures
    • Structural Analysis & Design
    • Stress Analysis
    • Eurocode 3

System and Loading (Dimensions in mm, Force in kN)

Used in
  • Design of Thin-Walled, Cold-Formed C-Section According to EN 1993-1-3
Share
2024-05-30
008650
  • SHAPE THIN 9
  • RFEM 5
  • RF-STEEL Cold-Formed Sections 5
    • RSTAB 8
    • STEEL Cold-Formed Sections 8
    • Steel Structures
    • Structural Analysis & Design
    • Stress Analysis
    • Eurocode 3
External Dimensions of Cross-Section in mm
Used in
  • Design of Thin-Walled, Cold-Formed C-Section According to EN 1993-1-3
Share
2024-05-30
008651
  • SHAPE THIN 9
  • RFEM 5
  • RF-STEEL Cold-Formed Sections 5
    • RSTAB 8
    • STEEL Cold-Formed Sections 8
    • Steel Structures
    • Structural Analysis & Design
    • Stress Analysis
    • Eurocode 3
Notional Flat Widths in mm
Used in
  • Design of Thin-Walled, Cold-Formed C-Section According to EN 1993-1-3
Share
2024-05-30
008652
  • SHAPE THIN 9
  • RFEM 5
  • RF-STEEL Cold-Formed Sections 5
    • RSTAB 8
    • STEEL Cold-Formed Sections 8
    • Steel Structures
    • Structural Analysis & Design
    • Stress Analysis
    • Eurocode 3
Effective Edge Stiffness
Used in
  • Design of Thin-Walled, Cold-Formed C-Section According to EN 1993-1-3
Share
2024-05-30
008653
  • SHAPE THIN 9
  • RFEM 5
  • RF-STEEL Cold-Formed Sections 5
    • RSTAB 8
    • STEEL Cold-Formed Sections 8
    • Steel Structures
    • Structural Analysis & Design
    • Stress Analysis
    • Eurocode 3
Determination of Spring Stiffness
Used in
  • Design of Thin-Walled, Cold-Formed C-Section According to EN 1993-1-3
Share
2024-05-30
008654
  • SHAPE THIN 9
  • RFEM 5
  • RF-STEEL Cold-Formed Sections 5
    • RSTAB 8
    • STEEL Cold-Formed Sections 8
    • Steel Structures
    • Structural Analysis & Design
    • Stress Analysis
    • Eurocode 3
Effective Stiffening of Cross-Section
Used in
  • Design of Thin-Walled, Cold-Formed C-Section According to EN 1993-1-3
Share
2024-05-30
008655
  • SHAPE THIN 9
  • RFEM 5
  • RF-STEEL Cold-Formed Sections 5
    • RSTAB 8
    • STEEL Cold-Formed Sections 8
    • Steel Structures
    • Structural Analysis & Design
    • Stress Analysis
    • Eurocode 3
Determination of Spring Stiffness
Used in
  • Design of Thin-Walled, Cold-Formed C-Section According to EN 1993-1-3
Share
2024-05-30
008656
  • SHAPE THIN 9
  • RFEM 5
  • RF-STEEL Cold-Formed Sections 5
    • RSTAB 8
    • STEEL Cold-Formed Sections 8
    • Steel Structures
    • Structural Analysis & Design
    • Stress Analysis
    • Eurocode 3
General Data
Used in
  • Design of Thin-Walled, Cold-Formed C-Section According to EN 1993-1-3
Share
2024-05-30
008657
  • SHAPE THIN 9
  • RFEM 5
  • RF-STEEL Cold-Formed Sections 5
    • RSTAB 8
    • STEEL Cold-Formed Sections 8
    • Steel Structures
    • Structural Analysis & Design
    • Stress Analysis
    • Eurocode 3
Calculation Parameters
Used in
  • Design of Thin-Walled, Cold-Formed C-Section According to EN 1993-1-3
Share
2024-05-30
013155
  • RFEM 5
  • RSTAB 8
Table 1.7 Notional Flat Widths | EN 1993-1-3
Used in
  • Design of Thin-Walled, Cold-Formed C-Section According to EN 1993-1-3
Share
2024-05-30
008658
  • SHAPE THIN 9
  • RFEM 5
  • RF-STEEL Cold-Formed Sections 5
    • RSTAB 8
    • STEEL Cold-Formed Sections 8
    • Steel Structures
    • Structural Analysis & Design
    • Stress Analysis
    • Eurocode 3
Table 1.8 Stiffeners
Used in
  • Design of Thin-Walled, Cold-Formed C-Section According to EN 1993-1-3
3D Model
More About 3D Model
  • C-Section
Share
2024-05-30
008659
  • SHAPE THIN 9
  • RFEM 5
  • RF-STEEL Cold-Formed Sections 5
    • RSTAB 8
    • STEEL Cold-Formed Sections 8
    • Steel Structures
    • Structural Analysis & Design
    • Stress Analysis
    • Eurocode 3
Table 1.9 Panels
Used in
  • Design of Thin-Walled, Cold-Formed C-Section According to EN 1993-1-3
3D Model
More About 3D Model
  • C-Section
Share
2024-05-30
008660
  • SHAPE THIN 9
  • RFEM 5
  • RF-STEEL Cold-Formed Sections 5
    • RSTAB 8
    • STEEL Cold-Formed Sections 8
    • Steel Structures
    • Structural Analysis & Design
    • Stress Analysis
    • Eurocode 3
Table 2.1 Load Cases
Used in
  • Design of Thin-Walled, Cold-Formed C-Section According to EN 1993-1-3
3D Model
More About 3D Model
  • C-Section
Share
2024-05-30
008661
  • SHAPE THIN 9
  • RFEM 5
  • RF-STEEL Cold-Formed Sections 5
    • RSTAB 8
    • STEEL Cold-Formed Sections 8
    • Steel Structures
    • Structural Analysis & Design
    • Stress Analysis
    • Eurocode 3
Table 3.1 Internal Forces
Used in
  • Design of Thin-Walled, Cold-Formed C-Section According to EN 1993-1-3
3D Model
More About 3D Model
  • C-Section
Share
2024-05-30
008662
  • SHAPE THIN 9
  • RFEM 5
  • RF-STEEL Cold-Formed Sections 5
    • RSTAB 8
    • STEEL Cold-Formed Sections 8
    • Steel Structures
    • Structural Analysis & Design
    • Stress Analysis
    • Eurocode 3
Effective Cross-Section Properties
Used in
  • Design of Thin-Walled, Cold-Formed C-Section According to EN 1993-1-3
3D Model
More About 3D Model
  • C-Section
Share
2024-05-30
008663
  • SHAPE THIN 9
  • RFEM 5
  • RF-STEEL Cold-Formed Sections 5
    • RSTAB 8
    • STEEL Cold-Formed Sections 8
    • Steel Structures
    • Structural Analysis & Design
    • Stress Analysis
    • Eurocode 3
General Data
Used in
  • Design of Thin-Walled, Cold-Formed C-Section According to EN 1993-1-3
Share
2024-05-30
008664
  • SHAPE THIN 9
  • RFEM 5
  • RF-STEEL Cold-Formed Sections 5
    • RSTAB 8
    • STEEL Cold-Formed Sections 8
    • Steel Structures
    • Structural Analysis & Design
    • Stress Analysis
    • Eurocode 3
Parameters of National Annex
Used in
  • Design of Thin-Walled, Cold-Formed C-Section According to EN 1993-1-3
Share
2024-05-30
008665
  • SHAPE THIN 9
  • RFEM 5
  • RF-STEEL Cold-Formed Sections 5
    • RSTAB 8
    • STEEL Cold-Formed Sections 8
    • Steel Structures
    • Structural Analysis & Design
    • Stress Analysis
    • Eurocode 3
Details, Cold-Formed Sections Tab
Used in
  • Design of Thin-Walled, Cold-Formed C-Section According to EN 1993-1-3
Share
2024-05-30
008666
  • SHAPE THIN 9
  • RFEM 5
  • RF-STEEL Cold-Formed Sections 5
    • RSTAB 8
    • STEEL Cold-Formed Sections 8
    • Steel Structures
    • Structural Analysis & Design
    • Stress Analysis
    • Eurocode 3
Details, Stability Tab
Used in
  • Design of Thin-Walled, Cold-Formed C-Section According to EN 1993-1-3
Share
2024-05-30
008667
  • SHAPE THIN 9
  • RFEM 5
  • RF-STEEL Cold-Formed Sections 5
    • RSTAB 8
    • STEEL Cold-Formed Sections 8
    • Steel Structures
    • Structural Analysis & Design
    • Stress Analysis
    • Eurocode 3
Figure 20 - Results
Used in
  • Design of Thin-Walled, Cold-Formed C-Section According to EN 1993-1-3
Share