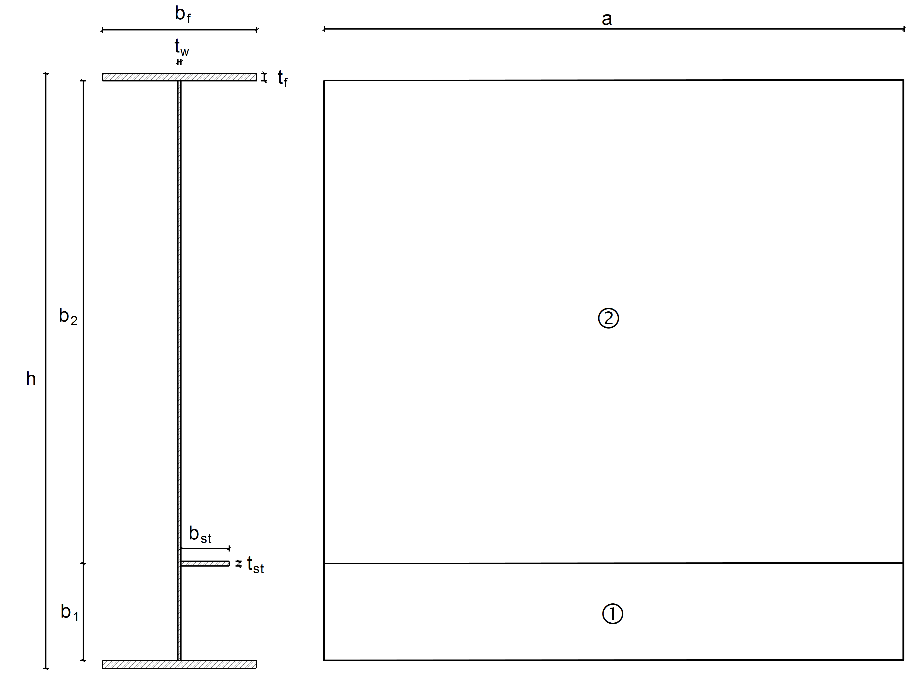
Cross-Section
Stress Distribution
Gross Cross-Section Equivalent Compression Member
Gross and Effective Cross-Section Due to Local Buckling
Equivalent Compression Member and Stiffener: Distances e1, e2
Effective Cross-Section Due to Local and Global Buckling
Calculation Parameters
Cross-Section Parts for Classification
Stiffeners
Buckling Panels
Results
Cross-Section
Stress Distribution
Gross Cross-Section Equivalent Compression Member
Gross and Effective Cross-Section Due to Local Buckling
Equivalent Compression Member and Stiffener: Distances e1, e2
Effective Cross-Section Due to Local and Global Buckling
Calculation Parameters
Cross-Section Parts for Classification
Stiffeners
Buckling Panels
Results
2024-05-30
009113
  • SHAPE-THIN 8
  • Steel Structures
  • Stress Analysis
    • Stability Analysis
    • Eurocode 3

Cross-Section

Used in
  • Stiffened Buckling Panels According to EN 1993-1-5, Section 4.5
Share
2024-05-30
009114
  • SHAPE-THIN 8
  • Steel Structures
  • Stress Analysis
    • Stability Analysis
    • Eurocode 3
Stress Distribution
Used in
  • Stiffened Buckling Panels According to EN 1993-1-5, Section 4.5
Share
2024-05-30
009115
  • SHAPE-THIN 8
  • Steel Structures
  • Stress Analysis
    • Stability Analysis
    • Eurocode 3
Gross Cross-Section Equivalent Compression Member
Used in
  • Stiffened Buckling Panels According to EN 1993-1-5, Section 4.5
Share
2024-05-30
009116
  • SHAPE-THIN 8
  • Steel Structures
  • Stress Analysis
    • Stability Analysis
    • Eurocode 3
Gross and Effective Cross-Section Due to Local Buckling
Used in
  • Stiffened Buckling Panels According to EN 1993-1-5, Section 4.5
Share
2024-05-30
009117
  • SHAPE-THIN 8
  • Steel Structures
  • Stress Analysis
    • Stability Analysis
    • Eurocode 3
Equivalent Compression Member and Stiffener: Distances e1, e2
Used in
  • Stiffened Buckling Panels According to EN 1993-1-5, Section 4.5
Share
2024-05-30
009118
  • SHAPE-THIN 8
  • Steel Structures
  • Stress Analysis
    • Stability Analysis
    • Eurocode 3
Effective Cross-Section Due to Local and Global Buckling
Used in
  • Stiffened Buckling Panels According to EN 1993-1-5, Section 4.5
Share
2024-05-30
009119
  • SHAPE-THIN 8
  • Steel Structures
  • Stress Analysis
    • Stability Analysis
    • Eurocode 3
Calculation Parameters
Used in
  • Stiffened Buckling Panels According to EN 1993-1-5, Section 4.5
Share
2024-05-30
009120
  • SHAPE-THIN 8
  • Steel Structures
  • Stress Analysis
    • Stability Analysis
    • Eurocode 3
Cross-Section Parts for Classification
Used in
  • Stiffened Buckling Panels According to EN 1993-1-5, Section 4.5
Share
2024-05-30
009121
  • SHAPE-THIN 8
  • Steel Structures
  • Stress Analysis
    • Stability Analysis
    • Eurocode 3
Stiffeners
Used in
  • Stiffened Buckling Panels According to EN 1993-1-5, Section 4.5
Share
2024-05-30
009122
  • SHAPE-THIN 8
  • Steel Structures
  • Stress Analysis
    • Stability Analysis
    • Eurocode 3
Buckling Panels
Used in
  • Stiffened Buckling Panels According to EN 1993-1-5, Section 4.5
Share
2024-05-30
009123
  • SHAPE-THIN 8
  • Steel Structures
  • Stress Analysis
    • Stability Analysis
    • Eurocode 3
Results
Used in
  • Stiffened Buckling Panels According to EN 1993-1-5, Section 4.5
Share