Stiffened Buckling Panels According to EN 1993-1-5, Section 4.5

Technical Article

In SHAPE-THIN, it is possible to perform the calculation of stiffened buckling panels according to Section 4.5 of EN 1993-1-5. For stiffened buckling panels, the effective surfaces due to local buckling of the single panels in the plate and in the stiffeners as well as the effective surfaces from the entire panel buckling of the stiffened entire panel have to be considered.

First of all, the effective surfaces of the single panels are determined by using the reduction factor according to EN 1993-1-5 [1], Section 4.4 to take into account the buckling of single panels. In the second step, the buckling safety of the entire panel is determined taking into account the buckling behavior similar to the one of buckling members. With the reduction factor of the entire panel buckling, the effective widths of the single panels are reduced again. This results in an effective cross-section which can be handeled as cross-section of cross-section class 3.

Example

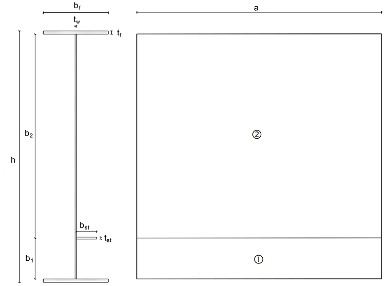
The following example is taken from the Steel Structures Yearbook 2015 [2]. The cross-section consists of an I-beam whose web is stiffened by rigid transverse stiffeners and a longitudinal stiffener. The transverse stiffeneres are arranged at a distance of 3,000 mm to each other and the longitudinal stiffener is welded at a distance of 500 mm from the bottom flange. The welds are neglected. A compression axial force of NEd = 4,000 kN is acting.

Figure 01 - Cross-Section

Material:
S355 J0
fy = 35.5 kN/cm² (for t ≤ 3 mm and t ≤ 16 mm)
fy = 34.5 kN/cm² (for t >16 mm and t ≤ 40 mm)
E = 21,000 kN/cm²
G = 8,076.92 kN/cm²
γM0 = 1.0

a = 3,000 mm
b1 = 500 mm
b2 = 2,500 mm
bf = 800 mm
bst = 250 mm
tw = 15 mm
tf = 40 mm
tst = 25 mm
h = 3,080 mm

Gross Cross-Section and Stress Distribution 

The stress is calculated as follows:

${\mathrm\sigma}_1\;=\;{\mathrm\sigma}_\mathrm{sl}\;=\;{\mathrm\sigma}_2\;=\;\frac{{\mathrm N}_\mathrm{Ed}}{\mathrm A}\;=\;\frac{4,000}{1,152.5}\;=\;3.47\;\mathrm{kN}/\mathrm{cm}²$

The gross cross-section and the stress distribution are shown in Figure 02.

Figure 02 - Stress Distribution

Cross-Section Classification

During a cross-section classification, it is evaluated if a buckling design is necessary for the single panels. If the single panel is at least cross-section class 3, local buckling is not governing.

Flange

$\begin{array}{l}{\mathrm c}_\mathrm f\;=\;\frac{{\mathrm b}_\mathrm f\;-\;{\mathrm t}_\mathrm w}2\;=\;\frac{800\;-\;15}2\;=\;392.5\;\mathrm{mm}\\\frac{\displaystyle{\mathrm c}_\mathrm f}{\displaystyle{\mathrm t}_\mathrm f}\;=\;\frac{\displaystyle392.5}{\displaystyle40}\;=\;9.8\end{array}$

The maximum c/t ratio λi is determined according to EN 1993-1-1 [3], Table 5.2.

$\begin{array}{l}\mathrm\varepsilon\;=\;\sqrt{235\;/\;{\mathrm f}_\mathrm y}\;=\;\sqrt{235\;/\;345}\;=\;0.825\\{\mathrm\lambda}_1\;=\;9\;\cdot\;\mathrm\varepsilon\;=\;9\;\cdot\;0.825\;=\;7.4\;<\;\frac{{\mathrm c}_\mathrm f}{{\mathrm t}_\mathrm f}\;=\;9.8\\{\mathrm\lambda}_2\;=\;10\;\cdot\;\mathrm\varepsilon\;=\;10\;\cdot\;0.825\;=\;8.2\;<\;\frac{{\mathrm c}_\mathrm f}{{\mathrm t}_\mathrm f}\;=\;9.8\\{\mathrm\lambda}_3\;=\;14\;\cdot\;\mathrm\varepsilon\;=\;14\;\cdot\;0.825\;=\;11.6\;>\;\frac{{\mathrm c}_\mathrm f}{{\mathrm t}_\mathrm f}\;=\;9.8\end{array}$

The flange has to be assigned to cross-section class 3. Local buckling is thus not governing and no reduction of the single panels of the flange is thus necessary.

Web

$\begin{array}{l}{\mathrm c}_1\;=\;{\mathrm b}_1\;-\;\frac{{\mathrm t}_\mathrm{st}}2\;=\;500\;-\;\frac{25}2\;=\;487.5\;\mathrm{mm}\\\frac{\displaystyle{\mathrm c}_1}{\displaystyle{\mathrm t}_\mathrm w}\;=\;\frac{\displaystyle487.5}{\displaystyle15}\;=\;32.5\end{array}$

The maximum c/t ratio λi is determined according to [3], Table 5.2.

$\begin{array}{l}\mathrm\varepsilon\;=\;\sqrt{235\;/\;{\mathrm f}_\mathrm y}\;=\;\sqrt{235\;/\;355}\;=\;0.814\\{\mathrm\lambda}_1\;=\;33\;\cdot\;\mathrm\varepsilon\;=\;33\;\cdot\;0.814\;=\;26.8\;<\;\frac{{\mathrm c}_1}{{\mathrm t}_\mathrm w}\;=\;32.5\\{\mathrm\lambda}_2\;=\;38\;\cdot\;\mathrm\varepsilon\;=\;38\;\cdot\;0.814\;=\;30.9\;<\;\frac{{\mathrm c}_1}{{\mathrm t}_\mathrm w}\;=\;32.5\\{\mathrm\lambda}_3\;=\;42\;\cdot\;\mathrm\varepsilon\;=\;42\;\cdot\;0.814\;=\;34.2\;>\;\frac{{\mathrm c}_1}{{\mathrm t}_\mathrm w}\;=\;32.5\end{array}$

The single panel 1 has to be assigned to cross-section class 3. Local buckling is thus not governing and no reduction of this single panel is thus necessary.

$\begin{array}{l}{\mathrm c}_2\;=\;{\mathrm b}_2\;-\;\frac{{\mathrm t}_\mathrm{st}}2\;=\;2,500\;-\;\frac{25}2\;=\;2,487.5\;\mathrm{mm}\\\frac{\displaystyle{\mathrm c}_2}{\displaystyle{\mathrm t}_\mathrm w}\;=\;\frac{\displaystyle2,487.5}{\displaystyle15}\;=\;165.8\end{array}$

The maximum c/t ratio λi is determined according to [3], Table 5.2.

$\begin{array}{l}\mathrm\varepsilon\;=\;\sqrt{235\;/\;{\mathrm f}_\mathrm y}\;=\;\sqrt{235\;/\;355}\;=\;0.814\\{\mathrm\lambda}_1\;=\;33\;\cdot\;\mathrm\varepsilon\;=\;33\;\cdot\;0.814\;=\;26.8\;<\;\frac{{\mathrm c}_2}{{\mathrm t}_\mathrm w}\;=\;165.8\\{\mathrm\lambda}_2\;=\;38\;\cdot\;\mathrm\varepsilon\;=\;38\;\cdot\;0.814\;=\;30.9\;<\;\frac{{\mathrm c}_2}{{\mathrm t}_\mathrm w}\;=\;165.8\\{\mathrm\lambda}_3\;=\;42\;\cdot\;\mathrm\varepsilon\;=\;42\;\cdot\;0.814\;=\;34.2\;<\;\frac{{\mathrm c}_2}{{\mathrm t}_\mathrm w}\;=\;165.8\end{array}$

The single panel 2 has to be assigned to cross-section class 4. Local buckling is thus governing for this single panel and a reduction of this single panel is thus necessary.

Stiffener

$\begin{array}{l}{\mathrm b}_\mathrm{st}\;=\;250\;\mathrm{mm}\\\frac{\displaystyle{\mathrm b}_\mathrm{st}}{\displaystyle{\mathrm t}_\mathrm{st}}\;=\;\frac{\displaystyle250}{\displaystyle25}\;=\;10\end{array}$

The maximum c/t ratio λi is determined according to [3], Table 5.2.

$\begin{array}{l}\mathrm\varepsilon\;=\;\sqrt{235\;/\;{\mathrm f}_\mathrm y}\;=\;\sqrt{235\;/\;345}\;=\;0.825\\{\mathrm\lambda}_1\;=\;9\;\cdot\;\mathrm\varepsilon\;=\;9\;\cdot\;0.825\;=\;7.4\;<\;\frac{\displaystyle{\mathrm b}_\mathrm{st}}{\displaystyle{\mathrm t}_\mathrm{st}}\;=\;10\\{\mathrm\lambda}_2\;=\;10\;\cdot\;\mathrm\varepsilon\;=\;10\;\cdot\;0.825\;=\;8.2\;<\;\frac{\displaystyle{\mathrm b}_\mathrm{st}}{\displaystyle{\mathrm t}_\mathrm{st}}\;=\;10\\{\mathrm\lambda}_3\;=\;14\cdot\;\mathrm\varepsilon\;=\;14\;\cdot0.825\;=\;11.6\;>\;\frac{\displaystyle{\mathrm b}_\mathrm{st}}{\displaystyle{\mathrm t}_\mathrm{st}}\;=\;10\end{array}$

The web has to be assigned to cross-section class 3. Local buckling is thus not governing and no reduction of this single panel is thus necessary.

Effective Widths

The single panel 1 is assigned to cross-section class 3 so that local buckling is not governing. The effective cross-section values correspond to the gross cross-section values. According to [1], Table 4.1, it results in the following effective widths:

$\begin{array}{l}{\mathrm b}_{1,\mathrm{eff}}\;=\;{\mathrm c}_1\;=\;487.5\;\mathrm{mm}\\{\mathrm b}_{1,\mathrm{edge},\mathrm{eff}}\;=\;{\mathrm b}_{1,\mathrm{edge}}\;=\;0.5\;\cdot\;{\mathrm c}_1\;=\;0.5\;\cdot\;487.5\;=\;243.8\;\mathrm{mm}\\{\mathrm b}_{1,\inf,\mathrm{eff}}\;=\;{\mathrm b}_{1,\inf}\;=\;0.5\;\cdot\;{\mathrm c}_1\;=\;0.5\;\cdot\;487.5\;=\;243.8\;\mathrm{mm}\end{array}$

The single panel 2 is assigned to cross-section class 4 so that local buckling is governing. The effective widths of the single panel 2 have to be determined according to [1], Section 4.4.

The stress distribution in the single panel 2 is uniform. It results in a stress ratios ψ = 1 and according to Table 4.1 in a buckling value kσ= 4.0. For the slenderness ${\overline{\mathrm\lambda}}_{\mathrm p2}$, it results in according to [1], Section 4.4(2):

${\overline{\mathrm\lambda}}_{\mathrm p2}\;=\;\frac{\displaystyle\frac{{\mathrm c}_2}{{\mathrm t}_\mathrm w}}{28.4\;\cdot\;\mathrm\varepsilon\;\cdot\;\sqrt{{\mathrm k}_\mathrm\sigma}}\;=\;\frac{165.8}{28.4\;\cdot\;0.814\;\cdot\;\sqrt4}\;=\;3.588$$>\;0.5\;+\;\sqrt{0.085\;-\;0.055\;\cdot\;\mathrm\psi}$
 $>\;0.5\;+\;\sqrt{0.085\;-\;0.055\;\cdot\;1}\;=\;0.673$

The local reduction factor ρ is determined according to [1], Equation (4.2):

${\mathrm\rho}_2\;=\;\frac{{\overline{\mathrm\lambda}}_{\mathrm p2}\;-\;0.055\;\cdot\;\left(3\;+\;\mathrm\psi\right)}{\overline{\mathrm\lambda}_{\mathrm p2}^2}\;=\;\frac{3.588\;-\;0.055\;\cdot\;\left(3\;+\;1\right)}{3.588^2}\;=\;0.262\;<\;1$

The effective widths of the single panel 2 taking into account the local buckling are calculated according to [1], Table 4.1:

$\begin{array}{l}{\mathrm b}_{2,\mathrm{eff}}\;=\;{\mathrm\rho}_2\;\cdot\;{\mathrm c}_2\;=\;0.262\;\cdot\;2,487.5\;=\;650.7\;\mathrm{mm}\\{\mathrm b}_{2,\mathrm{edge},\mathrm{eff}}\;=\;0.5\;\cdot\;{\mathrm b}_{2,\mathrm{eff}}\;=\;0.5\;\cdot\;650.7\;=\;325.4\;\mathrm{mm}\\{\mathrm b}_{2,\sup,\mathrm{eff}}\;=\;0.5\;\cdot\;{\mathrm b}_{2,\mathrm{eff}}\;=\;0.5\;\cdot\;650.7\;=\;325.4\;\mathrm{mm}\end{array}$

The widths of the gross cross-section result in:

$\begin{array}{l}{\mathrm b}_{2,\mathrm{edge}}\;=\;0.5\;\cdot\;{\mathrm c}_2\;=\;0.5\;\cdot\;2,487.5\;=\;1,243.8\;\mathrm{mm}\\{\mathrm b}_{2,\sup}\;=\;0.5\;\cdot\;{\mathrm c}_2\;=\;0.5\;\cdot\;2,487.5\;=\;1,243.8\;\mathrm{mm}\end{array}$

Behavior of Slabs

The elastic critical buckling stress of the stiffness σcr,sl is calculated according to [1], Annex A.2.2. The effective length of the stiffness ac has to be calculated first:

${\mathrm a}_\mathrm c\;=\;4.33\;\cdot\;\sqrt[4]{\frac{{\mathrm I}_{\mathrm{sl},1}\;\cdot\;\mathrm b_1^2\;\cdot\;\mathrm b_2^2}{\mathrm t^3\;\cdot\;\mathrm b}}\;=\;4.33\;\cdot\;\sqrt[4]{\frac{11,900\;\cdot\;50^2\;\cdot\;250^2}{1.5^3\;\cdot\;\left(50\;+\;250\right)}}\;=\;896.4\;\mathrm{cm}\;>\;\mathrm a\;=\;300\;\mathrm{cm}$

The elastic critical buckling stress of the stiffness σcr,sl results with a < ac in:

$\begin{array}{l}{\mathrm\sigma}_{\mathrm{cr},\mathrm{sl}}\;=\;\frac{\mathrm\pi^2\;\cdot\;\mathrm E\;\cdot\;{\mathrm I}_{\mathrm{sl},1}}{{\mathrm A}_{\mathrm{sl},1}\;\cdot\;\mathrm a^2}\;+\;\frac{\mathrm E\;\cdot\;\mathrm t^3\;\cdot\;\mathrm b\;\cdot\;\mathrm a^2}{4\;\cdot\;\mathrm\pi^2\;\cdot\;\left(1\;-\;\mathrm\nu^2\right)\;\cdot\;{\mathrm A}_{\mathrm{sl},1}\;\cdot\;\mathrm b_1^2\;\cdot\;\mathrm b_2^2}\;\mathrm{for}\;\mathrm a\;<\;{\mathrm a}_\mathrm c\\{\mathrm\sigma}_{\mathrm{cr},\mathrm{sl}}\;=\;\frac{\mathrm\pi^2\;\cdot\;21,000\;\cdot\;11,900}{289.4\;\cdot\;300^2}+\frac{21,000\;\cdot\;1.5^3\;\cdot\;\left(50\;+\;250\right)\;\cdot\;300^2}{4\;\cdot\;\mathrm\pi^2\;\cdot\;\left(1\;-\;0.3^2\right)\;\cdot\;289.4\;\cdot\;50^2\;\cdot\;250^2}\;=\;95.9\;\mathrm{kN}/\mathrm{cm}^2\end{array}$

Isl,1 and Asl,1 represent here the second moment of area of the gross cross-section and the gross cross-section area of the equivalent compression member according to [1], A.2.1(2) for buckling perpendicular to the plate plane as well as b1 and b2 describe the distances of the stiffeners to the longitudinal edges (b1 + b2 = b).

The stress distribution is uniform. Therefore, the elastic plate buckling stress σcr,p corresponds to the critical buckling stress σcr,sl.

${\mathrm\sigma}_{\mathrm{cr},\mathrm p}\;=\;{\mathrm\sigma}_{\mathrm{cr},\mathrm{sl}}\;=\;95.9\;\mathrm{kN}/\mathrm{cm}^2$

Figure 03 - Gross Cross-Section Equivalent Compression Member

The gross cross-section area Ac of the longitudinally stiffened plate panel without taking into account the edge plates supported by an adjacent plate component and the effective cross-section area Ac,eff,loc,p of the area described above are calculated as follows:

${\mathrm A}_\mathrm c\;=\;\left({\mathrm b}_{1,\inf}\;+\;{\mathrm b}_{2,\sup}\;+\;{\mathrm t}_\mathrm{st}\right)\;\cdot\;{\mathrm t}_\mathrm w\;+\;{\mathrm b}_\mathrm{st}\;\cdot\;{\mathrm t}_\mathrm{st}\;=\;\left(24.38\;+\;124.38\;+\;2.5\right)\;\cdot\;1.5\;+\;25\;\cdot\;2.5\;=\;289.4\;\mathrm{cm}^2$

The stiffness belongs to cross-section class 3 so that the effective cross-section area of the stiffness corresponds to the gross cross-section area of the stiffness.

${\mathrm A}_{\mathrm c,\mathrm{eff},\mathrm{loc},\mathrm p}\;=\;\left({\mathrm b}_{1,\inf,\mathrm{eff}}\;+\;{\mathrm b}_{2,\sup,\mathrm{eff}}\;+\;{\mathrm t}_\mathrm{st}\right)\;\cdot\;{\mathrm t}_\mathrm w\;+\;{\mathrm b}_{\mathrm{st},\mathrm{eff}}\;\cdot\;{\mathrm t}_\mathrm{st}\;=\;\left(24.38\;+\;32.54\;+\;2.5\right)\;\cdot\;1.5\;+\;25\;\cdot\;2.5\;=\;151.6\;\mathrm{cm}^2$

The cross-section values are shown in Figure 04.

Figure 04 - Gross and Effective Cross-Section Due to Local Buckling

The reduction factor βa,c,p is calculated according to [1], Section 4.5.2 as follows:

$\begin{array}{l}{\mathrm\beta}_{\mathrm a,\mathrm c,\mathrm p}\;=\;\frac{{\mathrm A}_{\mathrm c,\mathrm{eff},\mathrm{loc},\mathrm p}}{{\mathrm A}_\mathrm c}\\{\mathrm\beta}_{\mathrm a,\mathrm c,\mathrm p}\;=\;\frac{151.6}{289.4}\;=\;0.524\end{array}$

The global slenderness ${\overline{\mathrm\lambda}}_\mathrm p$ of the stiffened plate results, according to [1], Equation (4.7) in:

${\overline{\mathrm\lambda}}_\mathrm p\;=\;\sqrt{\frac{{\mathrm\beta}_{\mathrm a,\mathrm c,\mathrm p}\;\cdot\;{\mathrm f}_\mathrm y}{{\mathrm\sigma}_{\mathrm{cr},\mathrm p}}}=\sqrt{\frac{0.524\;\cdot\;35.5}{95.9}}\;=\;0.440$$<\;0.5\;+\;\sqrt{0.085\;-\;0.055\;\cdot\;\mathrm\psi}$
 $<\;0.5\;+\;\sqrt{0.085\;-\;0.055\;\cdot\;1}\;=\;0.673$

The slenderness ${\overline{\mathrm\lambda}}_\mathrm p$ is smaller than the limit value 0.673 according to [1], 4.4(2). Therefore, no reduction due to slab behavior is necessary, i.e. ρp = 1.0.

Plate Buckling Behavior

The elastic critical buckling stress σcr,c is determined according to [1], Section 4.5.3(3). First of all, the buckling stress σcr,c,sl of the stiffener, which is positioned at the maximum loaded compression edge, is determined according to [1], Equation (4.9).

${\mathrm\sigma}_{\mathrm{cr},\mathrm c,\mathrm{sl}}\;=\;\frac{\mathrm\pi^2\;\cdot\;\mathrm E\;\cdot\;{\mathrm I}_\mathrm{sl}}{{\mathrm A}_\mathrm{sl}\;\cdot\;\mathrm a^2}\;=\;\frac{\mathrm\pi^2\;\cdot\;21,000\;\cdot\;11,900}{289.4\;\cdot\;300^2}\;=\;94.7\;\mathrm{kN}/\mathrm{cm}^2$

The stress distribution is uniform. Therefore, the elastic critical buckling stress σcr,c corresponds to the elastic buckling stress σcr,c,sl of the stiffener which is positioned at the maximum loaded compression edge.

σcr,c = σcr,c,sl = 94.7 kN/cm²

The reduction factor βa,c,p is calculated according to [1], Section 4.5.3(4) as follows:

${\mathrm\beta}_{\mathrm a,\mathrm c,\mathrm c}\;=\;\frac{{\mathrm A}_{\mathrm{sl},\mathrm{eff}}}{{\mathrm A}_\mathrm{sl}}\;=\;\frac{151.6}{289.4}\;=\;0.524$

The slenderness ${\overline{\mathrm\lambda}}_\mathrm c$ of the compression member results, according to [1], Equation (4.11) in:

${\overline{\mathrm\lambda}}_\mathrm c\;=\;\sqrt{\frac{{\mathrm\beta}_{\mathrm a,\mathrm c,\mathrm c}\;\cdot\;{\mathrm f}_\mathrm y}{{\mathrm\sigma}_{\mathrm{cr},\mathrm c}}}\;=\;\sqrt{\frac{0.524\;\cdot\;35.5}{94.7}}\;=\;0.443$

According to [1], Section 4.5.3(5), the radius of gyration i is calculated as follows:

$\mathrm i\;=\;\sqrt{\frac{{\mathrm I}_\mathrm{sl}}{{\mathrm A}_\mathrm{sl}}}\;=\;\sqrt{\frac{11,900}{289.4}}\;=\;6.41\;\mathrm{cm}$

The distance e is the bigger one of the two distances according to [1], Figure A.1, i.e.: either the distance e1 of the single stiffener, adjusted between the center of gravity and considered independently from the plate, without the effective width to the centroidal axis of the stiffened plate panel or the distance e2 of the centroidal axis of the stiffened plate panel to the middle plane of the plate. The distances are shown in Figure 05.

Figure 05 - Equivalent Compression Member and Stiffener: Distances e1, e2

e = max (e1, e2) = max (10.39 cm, 2.86 cm) = 10.39 cm

The imperfection factor αe is determined, according to [1], Equation (4.12) with α = 0.49, for open stiffener cross-sections as follows:

${\mathrm\alpha}_\mathrm e\;=\;\mathrm\alpha\;+\;\frac{0.09}{\mathrm i\;/\;\mathrm e}\;=\;0.49\;+\;\frac{0.09}{6.41\;/\;10.39}\;=\;0.636$

The reduction factor χc is determined according to [3], 6.3.1.2:

$\begin{array}{l}\mathrm\phi\;=\;0.5\;\cdot\;\left(1.0\;+\;{\mathrm\alpha}_\mathrm e\;\cdot\;\left({\overline{\mathrm\lambda}}_\mathrm c\;-\;0.2\right)\;+\;\overline{\mathrm\lambda}_\mathrm c^2\right)\;=\;0.5\;\cdot\;\left(1.0\;+\;0.636\;\cdot\;\left(0.443\;-\;0.2\right)\;+\;0.443^2\right)\;=\;0.675\\{\mathrm\chi}_\mathrm c\;=\;\frac1{\mathrm\phi\;+\;\sqrt{\mathrm\phi^2\;-\;\overline{\mathrm\lambda}_\mathrm c^2}}\;=\;\frac1{0.675\;+\;\sqrt{0.675^2\;-\;0.443^2}}\;=\;0.844\;<\;1\end{array}$

Interaction Between Plate Buckling and Slab Behavior

The structural behavior of the entire panel is determined with the factor ξ, according to [1], Section 4.5.4(1):

$\begin{array}{l}\mathrm\xi\;=\;\frac{{\mathrm\sigma}_{\mathrm{cr},\mathrm p}}{{\mathrm\sigma}_{\mathrm{cr},\mathrm c}}\;-\;1\;\mathrm{but}\;0\;\leq\;\mathrm\xi\;\leq\;1\\\mathrm\xi\;=\;\frac{95.9}{94.7}\;-\;1\;=\;0.013\end{array}$

The final reduction factor ρc is determined with the interaction equation according to [1], Equation (4.13):

${\mathrm\rho}_\mathrm c\;=\;({\mathrm\rho}_\mathrm p\;-\;{\mathrm\chi}_\mathrm c)\;\cdot\;\mathrm\xi\;\cdot\;(2\;-\;\mathrm\xi)\;+\;{\mathrm\chi}_\mathrm c\;=\;\left(1\;-\;0.844\right)\;\cdot\;0.013\;\cdot\;\left(2\;-\;0.013\right)\;+\;0.844\;=\;0.848$

Effective Cross-Section Values

The effective surface of the compression zone Ac,eff of the stiffened plate panel is calculated according to [1], Equation (4.5):

${\mathrm A}_{\mathrm c,\mathrm{eff}}\;=\;{\mathrm\rho}_\mathrm c\;\cdot\;{\mathrm A}_{\mathrm c,\mathrm{eff},\mathrm{loc},\mathrm p}\;+\;{\textstyle\sum}{\mathrm b}_{\mathrm{edge},\mathrm{eff}}\;\cdot\;\mathrm t\;=\;0.848\;\cdot\;151.6\;+\;24.38\;\cdot\;1.5\;+\;32.54\;\cdot\;1.5\;=\;214.1\;\mathrm{cm}²$

The effective cross-section area Aeff results in:

${\mathrm A}_\mathrm{eff}\;=\;{\mathrm A}_{\mathrm c,\mathrm{eff}}\;+\;2\;\cdot\;{\mathrm b}_\mathrm f\;\cdot\;{\mathrm t}_\mathrm f\;=\;214.1\;+\;2\;\cdot\;80\;\cdot\;4\;=\;854.1\;\mathrm{cm}²$

Figure 06 - Effective Cross-Section Due to Local and Global Buckling

Design of the Stiffened Panel

The centroidal axes of the gross cross-section and of the effective cross-section do not coincide so that additional acting bending moments due to the displacement of the centroidal axis of the effective cross-section related to the centroidal axis of the gross cross-section have to be considered here. These additional bending moments are calculated as follows:

$\begin{array}{l}{\mathrm e}_\mathrm y\;=\;0.82\;-\;0.72\;=\;0.10\;\mathrm{cm}\\{\mathrm e}_\mathrm z\;=\;164.97\;-\;157.42\;=\;7.55\;\mathrm{cm}\\{\mathrm M}_\mathrm y\;=\;\mathrm N\;\cdot\;{\mathrm e}_\mathrm z\;=\;\:4,000\;\cdot\;7.55\;=\;30,202.4\;\mathrm{kNcm}\\{\mathrm M}_\mathrm z\;=\;\mathrm N\;\cdot\;{\mathrm e}_\mathrm y\;=\;-4,000\;\cdot\;0.10\;=\;-414.3\;\mathrm{kNcm}\\{\mathrm M}_\mathrm u\;=\;30,203.7\;\mathrm{KNcm}\\{\mathrm M}_\mathrm v\;=\;-306.4\;\mathrm{KNcm}\end{array}$

The maximum stress results in:

${\mathrm\sigma}_\mathrm{eff}\;=\;\frac{\mathrm N}{{\mathrm A}_\mathrm{eff}}\;+\;\frac{{\mathrm M}_\mathrm u\;\cdot\;{\mathrm e}_\mathrm v}{{\mathrm I}_{\mathrm u,\mathrm{eff}}}\;-\;\frac{{\mathrm M}_\mathrm v\;\cdot\;{\mathrm e}_\mathrm u}{{\mathrm I}_{\mathrm v,\mathrm{eff}}}\;=\;\frac{4,000}{854.1}\;+\;\frac{30,203.7\;\cdot\;165.12}{17,466,764}\;-\;\frac{-306.4\;\cdot\;40.23}{352,626}\;=\;5.01\;\mathrm{kN}/\mathrm{cm}²$

The design is performed according to [1], Equation (4.15) as follows:

${\mathrm\eta}_1\;=\;\frac{{\mathrm\sigma}_\mathrm{eff}}{\displaystyle\frac{{\mathrm f}_\mathrm y}{{\mathrm\gamma}_{\mathrm M0}}}\;=\;\frac{5.01}{\displaystyle\frac{34.5}{1.0}}\;=\;0.15$

Torsional Buckling Design

According to [1], Section 9.2.1(8) the following criterion has to be fulfilled in general to avoid torsional buckling of stiffeneres with open cross-sections:

$\begin{array}{l}{\mathrm\eta}_1\;=\;\frac{5.3\;\cdot\;{\mathrm f}_\mathrm y\;\cdot\;{\mathrm I}_\mathrm p}{\mathrm E\;\cdot\;{\mathrm I}_{\mathrm{St}.\;\mathrm{Ven}}}\;\leq\;1\\{\mathrm\eta}_1\;=\;\frac{5.3\;\cdot\;34.5\;\cdot\;13,053}{21,000\;\cdot\;122}\;=\;0.93\;\leq\;1\end{array}$

Ip and ISt.Ven describe the polar moment of inertia and the St. Venant moment of inertia of the stiffness cross-section alone (without plate), calculated about the connection point to the plate.

If the warping stiffness is considered, the critical torsional buckling stress σcr has to be determined first. It is calculated according to [4], Equation (2.119) and Equation (2.120) as follows:

$\begin{array}{l}{\mathrm\sigma}_{\mathrm{cr}1}\;=\;\frac1{{\mathrm I}_\mathrm p}\;\cdot\;\left(\frac{\mathrm\pi^2\;\cdot\;\mathrm E\;\cdot\;{\mathrm I}_\mathrm\omega}{\mathrm l^2}\;+\;\mathrm G\;\cdot\;{\mathrm I}_{\mathrm{St}.\;\;\mathrm{Ven}}\right)\;\mathrm{for}\;\mathrm l\;<\;\mathrm L\;_\mathrm{cr}\\{\mathrm\sigma}_{\mathrm{cr}2}\;=\;\frac1{{\mathrm I}_\mathrm p}\;\cdot\;\left(2\;\cdot\;\sqrt{{\mathrm C}_\mathrm\theta\;\cdot\;\mathrm E\;\cdot\;{\mathrm I}_\mathrm\omega}\;+\;\mathrm G\;\cdot\;{\mathrm I}_{\mathrm{St}.\;\;\mathrm{Ven}}\right)\;\mathrm{for}\;\mathrm l\;>\;{\mathrm L}_\mathrm{cr}\end{array}$

The stiffness has a warping constant of Iω = 0 cm6. The critical torsional buckling stress σcr is thus simplified to:

$\begin{array}{l}{\mathrm\sigma}_{\mathrm{cr}1}\;=\;{\mathrm\sigma}_{\mathrm{cr}2}\;=\;\frac1{{\mathrm I}_\mathrm p}\;\cdot\;\mathrm G\;\cdot\;{\mathrm I}_{\mathrm{St}.\;\;\mathrm{Ven}}\\{\mathrm\sigma}_{\mathrm{cr}1}\;=\;{\mathrm\sigma}_{\mathrm{cr}2}\;=\;\frac1{13,053}\;\cdot\;8,077\;\cdot\;122\;=\;75.5\;\mathrm{kN}/\mathrm{cm}²\end{array}$

Ip and ISt.Ven describe the polar moment of inertia and the St. Venant moment of inertia of the stiffness cross-section alone (without plate), calculated about the connection point to the plate.

According to [1], Section 9.2.1(9), the criterion in 9.2.1(8) or the following criterion has to be generally considered, when taking into account the warping stiffness:

$\begin{array}{l}{\mathrm\eta}_2\;=\;\frac{\mathrm\theta\;\cdot\;{\mathrm f}_\mathrm y}{{\mathrm\sigma}_{\mathrm{cr}1}}\;\leq\;1\\{\mathrm\eta}_3\;=\;\frac{\mathrm\theta\;\cdot\;{\mathrm f}_\mathrm y}{{\mathrm\sigma}_{\mathrm{cr}2}}\;\leq\;1\end{array}$

With a factor to ensure the elastic behavior according to the cross-section class 3 according to [5] of θ = 2 f for stiffeners with low warping stiffness (for example flat bar or bulb flat steel), it results in:

${\mathrm\eta}_2\;=\;{\mathrm\eta}_3\;=\;\frac{2\;\cdot\;34.5}{75.5}\;=\;0.91\;\leq\;1$

The torsional buckling design is thus fulfilled.

SHAPE-THIN

In SHAPE-THIN, it is possible to perform the calculation of stiffened buckling panels according to [1], Section 4.5. The control panel "c/t parts and effective cross-section properties " has to be activated in the general data. Afterwards, "EN 1993-1-1 and EN 1993-1-5" has to be selected in the calculation parameters and the control panel "Effective cross-section according to EN 1993-1-5, Section 4.5" has to be selected as well. The determination of the effective widths should be carried out in an iterative process according to [1], Section 4.4(3). In this example, only one iteration has to be used for the calculation so that also only one iteration will appear in SHAPE-THIN (see Figure 07).

Figure 07 - Calculation Parameters

The elements of the cross-section have to be entered first. The c/t parts are generally generated automatically from the geometric conditions; however, they can be created user-defined in Table "1.7 Cross-Section Parts for the Classification According to EN 1993-1" (see Figure 08) or the corresponding dialog box.

Figure 08 - Cross-Section Parts for Classification

The stiffeners can be then defined in Table "1.8 Stiffeners" or in the corresponding dialog box (see Figure 09).

Figure 09 - Stiffeners

Moreover, the stiffened panel has to be specified in Table "1.9 Stiffened Panels" (see Figure 10) or the corresponding dialog box. The elements of the stiffened panel have to be selected and the transverse stiffener distance a has to be entered. If no transverse stiffener distance is defined, the value a = 10,000 mm will be applied for the calcukation. The stiffeners located in the stiffened panel are automatically identified. The stiffened panel has to be supported at its start and end which means that a support is needed here.

Figure 10 - Stiffened Panels

The results of the effective cross-section can be viewed with the [Effective Widths" button.

Figure 11 - Results

Keywords

Subpanel Buckling Stiffened Plate Buckling

Reference

[1]   Eurocode 3: Design of steel structures - Part 1-5: General rules - Plated structural elements; EN 1993-1-5:2006 + AC:2009
[2]   Kuhlmann, U.: Stahlbau-Kalender 2015 - Eurocode 3 - Grundnorm, Leichtbau. Berlin: Ernst & Sohn, 2015
[3]   Eurocode 3: Design of steel structures - Part 1‑1: General rules and rules for buildings; EN 1993‑1‑1:2010‑12
[4]   Beg, D.; Kuhlmann, U.; Davaine, L.; Braun, B.: Design of Plated Structures. Eurocode 3: Design of Steel Structures. Part 1-5 Design of Plated Structures. Berlin: Ernst & Sohn, 2011
[5]   Johansson, B.; Maquoi, R.; Sedlacek, G.; Müller, C.; Beg, D.: Commentary and Worked Examples to EN 1993-1-5, Plated Structural Elements. Luxemburg: Office for Official Publications of the European Communities, 2007

Links

Cross-Sections Thin-Walled
SHAPE-THIN 8.xx

Cross-Section Properties Software

Section properties, stress analysis, and plastic design of open and closed thin-walled cross-sections

Price of First License
1,000.00 EUR
;