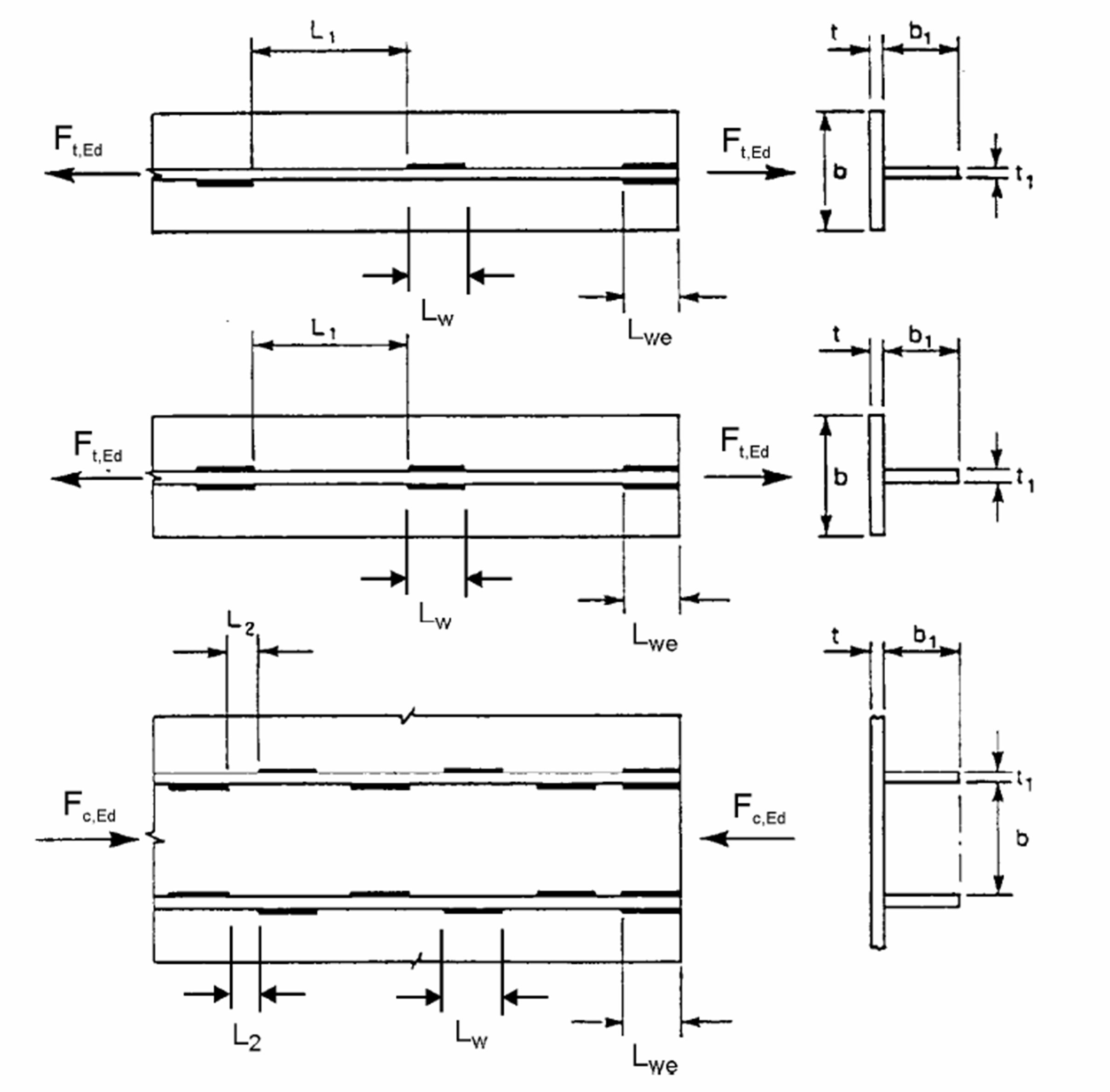
Arrangement Options
Continuous Weld
DIN EN 1993-6 Tab. 5.1
Effective Load Propagation Length
Stresses in Ultimate Limit State
Fillet Weld Sections
Stresses in Ultimate Limit State Interrupted Opposite
Stresses in Ultimate Limit State Offset Intermittently 
Arrangement Options
Continuous Weld
DIN EN 1993-6 Tab. 5.1
Effective Load Propagation Length
Stresses in Ultimate Limit State
Fillet Weld Sections
Stresses in Ultimate Limit State Interrupted Opposite
Stresses in Ultimate Limit State Offset Intermittently 
2024-05-30
009717
  • CRANEWAY 8
  • Cranes and Craneways
  • Eurocode 3

Arrangement Options

Used in
  • Ultimate Limit State Design of Rail Welds of Crane Girders According to EN 1993-6
Share
2024-05-30
009718
  • CRANEWAY 8
  • Cranes and Craneways
  • Eurocode 3
Continuous Weld
Used in
  • Ultimate Limit State Design of Rail Welds of Crane Girders According to EN 1993-6
Share
2024-05-30
009719
  • CRANEWAY 8
  • Cranes and Craneways
  • Eurocode 3
DIN EN 1993-6 Tab. 5.1
Used in
  • Ultimate Limit State Design of Rail Welds of Crane Girders According to EN 1993-6
Share
2024-05-30
009720
  • CRANEWAY 8
  • Cranes and Craneways
  • Eurocode 3
Effective Load Propagation Length
Used in
  • Ultimate Limit State Design of Rail Welds of Crane Girders According to EN 1993-6
Share
2024-05-30
009721
  • CRANEWAY 8
  • Cranes and Craneways
  • Eurocode 3
Stresses in Ultimate Limit State
Used in
  • Ultimate Limit State Design of Rail Welds of Crane Girders According to EN 1993-6
Share
2024-05-30
009722
  • CRANEWAY 8
  • Cranes and Craneways
  • Eurocode 3
Fillet Weld Sections
Used in
  • Ultimate Limit State Design of Rail Welds of Crane Girders According to EN 1993-6
Share
2024-05-30
009723
  • CRANEWAY 8
  • Cranes and Craneways
  • Eurocode 3
Stresses in Ultimate Limit State Interrupted Opposite
Used in
  • Ultimate Limit State Design of Rail Welds of Crane Girders According to EN 1993-6
Share
2024-05-30
009724
  • CRANEWAY 8
  • Cranes and Craneways
  • Eurocode 3
Stresses in Ultimate Limit State Offset Intermittently 
Used in
  • Ultimate Limit State Design of Rail Welds of Crane Girders According to EN 1993-6
Share